|
|
|
| Larry Stein Oklahoma County Assessor (405) 713-1200 - Public Access System |
|
|
|
|
|
|
| Real Property Display - Screen Produced 3/13/2026 9:06:02 AM | ||||
|---|---|---|---|---|
| Account: R150831175 | Type: Residential | Location: |
331 S SOONER RD |
|
| Building Name/Occupant: |
|
DEL CITY |
||
| Owner Name 1: | EDWARD TAYLOR & EVELYN SUE MOCKABEE 2024 REV TRUST |
Parcel PIN#: |
1417-15-083-1175 |
|
| Owner Name 2: | 1/4 section #: |
1417 |
||
| Owner Name 3: | Parent Acct: |
|
||
| Billing Address: | 331 S SOONER RD | Tax District: |
|
|
| City, State, Zip | OKLAHOMA CITY, OK 73110-2046 | School System: |
Mid-Del #52 |
|
|
Country: (If noted) |
Land Size: |
0.6887 Acres |
||
|
Land Value: 37,105 |
|
|||
|
Sect 5-T11N-R2W Qtr NE |
UNPLTD PT SEC 05 11N 2W
Block
000
Lot
000
|
|||
| Full Legal Description: UNPLTD PT NE4 SEC 05 11N 2W PT OF NE4 BEG 1057.3FT S OF NE/C TH W400FT S75FT E400FT N75FT TO BEG PT OF SEC 5 11N 2W |
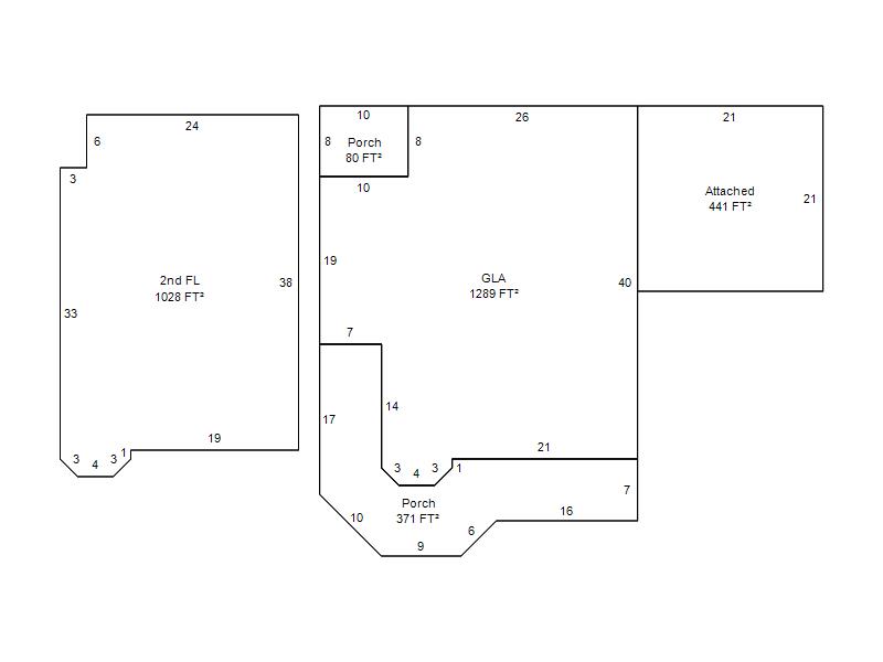
| Photo & Sketch (if available) | Comp Sales (ordered by relevancy) |
|
||||||||||||||||||
|
||||||||||||||||||||
| Value History (*The County Treasurer 405-713-1300 posts & collects actual tax amounts. Contact information HERE) | |||||||||||||
|---|---|---|---|---|---|---|---|---|---|---|---|---|---|
| Year | Market Value | Taxable Mkt Value | Gross Assessed | Exemption | Net Assessed | Millage | Est. Tax | Tax Savings | |||||
|
2025 |
333,500 |
111,564 |
12,272 |
1,000 |
11,272 |
114.72 |
$1,293 |
$2,915 |
|||||
|
2024 |
311,000 |
111,564 |
12,272 |
1,000 |
11,272 |
117.21 |
$1,321 |
$2,689 |
|||||
|
2023 |
279,000 |
111,564 |
12,272 |
1,000 |
11,272 |
112.46 |
$1,268 |
$2,184 |
|||||
|
2022 |
247,000 |
111,564 |
12,272 |
1,000 |
11,272 |
110.76 |
$1,248 |
$1,761 |
|||||
|
2021 |
209,500 |
111,564 |
12,272 |
1,000 |
11,272 |
114.70 |
$1,293 |
$1,350 |
|||||
| Property Account Status/Adjustments/Exemptions | ||
|---|---|---|
| Account # | Exemption Description | Amount |
|
R150831175 |
Freeze Senior Valuation |
0 |
|
R150831175 |
Homestead |
1,000 |
|
R150831175 |
3% Cap Homestead |
0 |
| Property Deed Transaction History (Recorded in the County Clerk's Office) | ||||||||||
|---|---|---|---|---|---|---|---|---|---|---|
| Date | Type | Book | Page | Price | Grantor | Grantee | ||||
|
4/10/2024 |
|
Deeds |
$0 |
MOCKABEE EDWARD T |
TAYLOR EDWARD & EVELYN SUE MOCKABEE 2024 REV TRUST |
|||||
|
9/9/2020 |
|
Deeds |
$0 |
MOCKABEE EVELYN S |
MOCKABEE EDWARD T |
|||||
|
10/28/1997 |
|
Historical |
$0 |
HAND BEVERLY JUNE |
MOCKABEE EDWARD T & EVELYN S |
|||||
|
12/12/1995 |
|
Historical |
$0 |
SHAWVER BILLY J |
HAND BEVERLY JUNE |
|||||
|
7/6/1990 |
|
Historical |
$0 |
HOLCOMB ALBERT A & OLETA E |
SHAWVER BILLY J |
|||||
| Last Mailed Notice of Value (N.O.V.) Information/History | ||||||||
|---|---|---|---|---|---|---|---|---|
| Year | Date | Market Value | Taxable Market Value | Gross Assessed | Exemption | Net Assessed | ||
|
2025 |
01/31/2025 |
333,500 |
111,564 |
12,272 |
1,000 |
11,272 |
||
|
2024 |
01/22/2024 |
311,000 |
111,564 |
12,272 |
1,000 |
11,272 |
||
|
2023 |
01/23/2023 |
279,000 |
111,564 |
12,272 |
1,000 |
11,272 |
||
|
2022 |
02/22/2022 |
247,000 |
111,564 |
12,272 |
1,000 |
11,272 |
||
|
2021 |
02/24/2021 |
209,500 |
111,564 |
12,272 |
1,000 |
11,272 |
||
| Property Building Permit History | ||||||
|---|---|---|---|---|---|---|
| Issued | Permit # | Provided by | Bldg # | Description | Est Construction Cost | Status |
|
6/11/1998 |
10247262 |
DEL CITY |
1 |
Main Dwellin |
102,105 |
Inactive |
|
11/7/1997 |
10247261 |
DEL CITY |
1 |
Demolish |
0 |
Inactive |
| Click button on building number to access detailed information: | ||||||
|---|---|---|---|---|---|---|
| Bldg # | Vacant/Improved Land | Bldg Description | Year Built | SqFt | # Stories | |
|
1 |
Improved |
1½ Story Fin |
1999 |
2,317 |
1.5 Stories |
|