|
|
|
| Larry Stein Oklahoma County Assessor (405) 713-1200 - Public Access System |
|
|
|
|
|
|
| Real Property Display - Screen Produced 3/13/2026 9:06:03 AM | ||||
|---|---|---|---|---|
| Account: R150831900 | Type: Residential | Location: |
421 HISEL RD |
|
| Building Name/Occupant: |
|
DEL CITY |
||
| Owner Name 1: | HILL JONATHAN |
Parcel PIN#: |
1417-15-083-1900 |
|
| Owner Name 2: | HILL LISA R | 1/4 section #: |
1417 |
|
| Owner Name 3: | Parent Acct: |
|
||
| Billing Address: | 421 HISEL RD | Tax District: |
|
|
| City, State, Zip | DEL CITY, OK 73115 | School System: |
Mid-Del #52 |
|
|
Country: (If noted) |
UNITED STATES |
Land Size: |
0.4511 Acres |
|
|
Land Value: 28,638 |
|
|||
|
Sect 5-T11N-R2W Qtr NE |
UNPLTD PT SEC 05 11N 2W
Block
000
Lot
000
|
|||
| Full Legal Description: UNPLTD PT SEC 05 11N 2W 000 000 PT NE4 SEC 5 11N 2W BEG 1129.17FT S & 480.835FT E NW/C NE4 NE4 S131.44FT E150.37FT N131.52FT W150.255FT TO BEG |
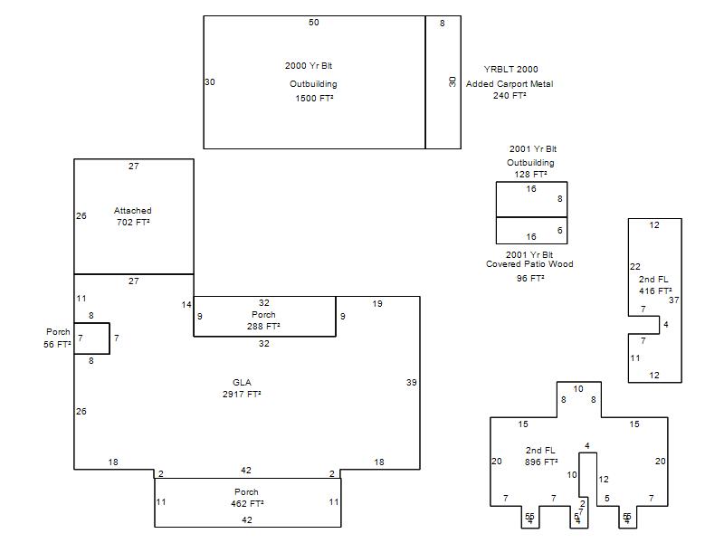
| Photo & Sketch (if available) | Comp Sales (ordered by relevancy) |
|
||||||||||||||||||
|
||||||||||||||||||||
| Value History (*The County Treasurer 405-713-1300 posts & collects actual tax amounts. Contact information HERE) | |||||||||||||
|---|---|---|---|---|---|---|---|---|---|---|---|---|---|
| Year | Market Value | Taxable Mkt Value | Gross Assessed | Exemption | Net Assessed | Millage | Est. Tax | Tax Savings | |||||
|
2025 |
573,000 |
431,793 |
47,496 |
0 |
47,496 |
114.72 |
$5,449 |
$1,782 |
|||||
|
2024 |
553,000 |
411,232 |
45,235 |
0 |
45,235 |
117.21 |
$5,302 |
$1,828 |
|||||
|
2023 |
470,500 |
391,650 |
43,081 |
0 |
43,081 |
112.46 |
$4,845 |
$975 |
|||||
|
2022 |
373,000 |
373,000 |
41,030 |
0 |
41,030 |
110.76 |
$4,544 |
$0 |
|||||
|
2021 |
373,000 |
373,000 |
41,030 |
0 |
41,030 |
114.70 |
$4,706 |
$0 |
|||||
| Property Account Status/Adjustments/Exemptions | ||
|---|---|---|
| Account # | Exemption Description | Amount |
|
R150831900 |
Homestead |
1,000 |
|
R150831900 |
3% Cap Homestead |
0 |
| Property Deed Transaction History (Recorded in the County Clerk's Office) | |||||||
|---|---|---|---|---|---|---|---|
| Date | Type | Book | Page | Price | Grantor | Grantee | |
|
7/29/2020 |
|
Deeds |
$375,000 |
OGLE JOHN H & VIRJEAN CO TRS |
HILL JONATHAN |
||
|
5/9/2005 |
|
Deeds |
$0 |
OGLE JOHN H & VIRJEAN |
OGLE JOHN H & VIRJEAN CO TRS |
||
|
4/1/1984 |
|
Historical |
$0 |
|
OGLE JOHN H & VIRJEAN |
||
| Last Mailed Notice of Value (N.O.V.) Information/History | ||||||||
|---|---|---|---|---|---|---|---|---|
| Year | Date | Market Value | Taxable Market Value | Gross Assessed | Exemption | Net Assessed | ||
|
2026 |
02/06/2026 |
577,000 |
444,746 |
48,921 |
1,000 |
47,921 |
||
|
2025 |
01/31/2025 |
573,000 |
431,793 |
47,496 |
0 |
47,496 |
||
|
2024 |
01/22/2024 |
553,000 |
411,232 |
45,235 |
0 |
45,235 |
||
|
2023 |
01/23/2023 |
470,500 |
391,650 |
43,081 |
0 |
43,081 |
||
|
2021 |
04/09/2021 |
373,000 |
373,000 |
41,030 |
0 |
41,030 |
||
| Property Building Permit History | ||||||
|---|---|---|---|---|---|---|
| Issued | Permit # | Provided by | Bldg # | Description | Est Construction Cost | Status |
|
8/8/2001 |
10247269 |
DEL CITY |
1 |
Storage Buil |
1,000 |
Inactive |
|
1/11/2000 |
10247268 |
OKLAHOMA CITY |
1 |
Main Dwellin |
200,000 |
Inactive |
|
11/29/1999 |
10247267 |
DEL CITY |
1 |
Demolish |
0 |
Inactive |
| Click button on building number to access detailed information: | ||||||
|---|---|---|---|---|---|---|
| Bldg # | Vacant/Improved Land | Bldg Description | Year Built | SqFt | # Stories | |
|
1 |
Improved |
1½ Story Fin |
2000 |
4,229 |
1.5 Stories |
|