|
|
|
| Larry Stein Oklahoma County Assessor (405) 713-1200 - Public Access System |
|
|
|
|
|
|
| Real Property Display - Screen Produced 3/13/2026 9:05:23 AM | ||||
|---|---|---|---|---|
| Account: R150832300 | Type: Residential | Location: |
609 S SOONER RD |
|
| Building Name/Occupant: |
|
DEL CITY |
||
| Owner Name 1: | LANE HOWARD P TRS |
Parcel PIN#: |
1417-15-083-2300 |
|
| Owner Name 2: | LANE HOWARD P REV TRUST | 1/4 section #: |
1417 |
|
| Owner Name 3: | Parent Acct: |
|
||
| Billing Address: | PO BOX 891782 | Tax District: |
|
|
| City, State, Zip | OKLAHOMA CITY, OK 73189-1782 | School System: |
Mid-Del #52 |
|
|
Country: (If noted) |
Land Size: |
0.6021 Acres |
||
|
Land Value: 34,175 |
|
|||
|
Sect 5-T11N-R2W Qtr NE |
UNPLTD PT SEC 05 11N 2W
Block
000
Lot
000
|
|||
| Full Legal Description: UNPLTD PT SEC 05 11N 2W 000 000 PT OF NE4 SEC 5 11N 2W E 1/2 OF N 1/2 DESC BEG 1789F S OF NE/C OF NE4 TH W632.48FT S165FT E632.81FT N165FT TO BEG |
| Photo & Sketch (if available) | Comp Sales (ordered by relevancy) |
|
||||||||||||||||||
|
||||||||||||||||||||
| Value History (*The County Treasurer 405-713-1300 posts & collects actual tax amounts. Contact information HERE) | |||||||||||||
|---|---|---|---|---|---|---|---|---|---|---|---|---|---|
| Year | Market Value | Taxable Mkt Value | Gross Assessed | Exemption | Net Assessed | Millage | Est. Tax | Tax Savings | |||||
|
2025 |
142,500 |
99,548 |
10,949 |
0 |
10,949 |
114.72 |
$1,256 |
$542 |
|||||
|
2024 |
129,000 |
94,808 |
10,428 |
0 |
10,428 |
117.21 |
$1,222 |
$441 |
|||||
|
2023 |
114,000 |
90,294 |
9,931 |
0 |
9,931 |
112.46 |
$1,117 |
$293 |
|||||
|
2022 |
103,000 |
85,995 |
9,459 |
0 |
9,459 |
110.76 |
$1,048 |
$207 |
|||||
|
2021 |
86,000 |
81,900 |
9,009 |
0 |
9,009 |
114.70 |
$1,033 |
$52 |
|||||
| Property Account Status/Adjustments/Exemptions | ||
|---|---|---|
| Account # | Exemption Description | Amount |
|
R150832300 |
5% Capped Account |
0 |
| Property Deed Transaction History (Recorded in the County Clerk's Office) | ||||||||||
|---|---|---|---|---|---|---|---|---|---|---|
| Date | Type | Book | Page | Price | Grantor | Grantee | ||||
|
3/30/2017 |
|
Hmstd Off & |
$0 |
LANE HOWARD P |
LANE HOWARD P TRS |
|||||
|
11/16/2015 |
|
Deeds |
$40,000 |
LORD DONALD L |
LANE HOWARD P |
|||||
|
7/14/2015 |
|
Hmstd Off & |
$0 |
LORD VERNA MARIE |
LORD DONALD L |
|||||
|
1/11/2008 |
|
Deeds |
$0 |
LORD VERNA MARIE |
LORD VERNA MARIE & DONALD L |
|||||
|
4/15/1999 |
|
Historical |
$0 |
LANE CARL J D |
LORD VERNA MARIE |
|||||
| Last Mailed Notice of Value (N.O.V.) Information/History | ||||||||
|---|---|---|---|---|---|---|---|---|
| Year | Date | Market Value | Taxable Market Value | Gross Assessed | Exemption | Net Assessed | ||
|
2026 |
02/06/2026 |
145,500 |
104,525 |
11,497 |
0 |
11,497 |
||
|
2025 |
01/31/2025 |
142,500 |
99,548 |
10,949 |
0 |
10,949 |
||
|
2024 |
01/22/2024 |
129,000 |
94,808 |
10,428 |
0 |
10,428 |
||
|
2023 |
01/23/2023 |
114,000 |
90,294 |
9,931 |
0 |
9,931 |
||
|
2022 |
02/22/2022 |
103,000 |
85,995 |
9,459 |
0 |
9,459 |
||
| Property Building Permit History | |||||||||||
|---|---|---|---|---|---|---|---|---|---|---|---|
| Issued | Permit # | Provided by | Bldg # | Description | Est Construction Cost | Status | |||||
| No Building Permit records returned. | |||||||||||
| Click button on building number to access detailed information: | ||||||
|---|---|---|---|---|---|---|
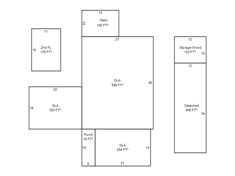
| Bldg # | Vacant/Improved Land | Bldg Description | Year Built | SqFt | # Stories | |
|
1 |
Improved |
1½ Story Fin |
1930 |
1,735 |
1.5 Stories |
|