|
|
|
| Larry Stein Oklahoma County Assessor (405) 713-1200 - Public Access System |
|
|
|
|
|
|
| Real Property Display - Screen Produced 3/13/2026 9:07:14 AM | ||||
|---|---|---|---|---|
| Account: R150832715 | Type: Residential | Location: |
750 HISEL RD |
|
| Building Name/Occupant: |
|
DEL CITY |
||
| Owner Name 1: | REIHING JOHN & KAREN |
Parcel PIN#: |
1417-15-083-2715 |
|
| Owner Name 2: | 1/4 section #: |
1417 |
||
| Owner Name 3: | Parent Acct: |
|
||
| Billing Address: | 750 HISEL RD | Tax District: |
|
|
| City, State, Zip | DEL CITY, OK 73115-4532 | School System: |
Mid-Del #52 |
|
|
Country: (If noted) |
Land Size: |
0.5822 Acres |
||
|
Land Value: 33,479 |
|
|||
|
Sect 5-T11N-R2W Qtr NE |
UNPLTD PT SEC 05 11N 2W
Block
000
Lot
000
|
|||
| Full Legal Description: UNPLTD PT SEC 05 11N 2W 000 000 PT NE4 SEC 5 11N 2W BEG 2284FT S & 316.71FT W OF NE/C OF NE4 W316.70FT S80FT E316.71FT N80FT TO BEG |
| Photo & Sketch (if available) | Comp Sales (ordered by relevancy) |
|
||||||||||||||||||
|
||||||||||||||||||||
| Value History (*The County Treasurer 405-713-1300 posts & collects actual tax amounts. Contact information HERE) | |||||||||||||
|---|---|---|---|---|---|---|---|---|---|---|---|---|---|
| Year | Market Value | Taxable Mkt Value | Gross Assessed | Exemption | Net Assessed | Millage | Est. Tax | Tax Savings | |||||
|
2025 |
187,000 |
170,170 |
18,718 |
0 |
18,718 |
114.72 |
$2,147 |
$212 |
|||||
|
2024 |
175,500 |
162,067 |
17,826 |
0 |
17,826 |
117.21 |
$2,090 |
$173 |
|||||
|
2023 |
159,500 |
154,350 |
16,978 |
0 |
16,978 |
112.46 |
$1,909 |
$64 |
|||||
|
2022 |
147,000 |
147,000 |
16,170 |
0 |
16,170 |
110.76 |
$1,791 |
$0 |
|||||
|
2021 |
127,000 |
107,500 |
11,825 |
1,000 |
10,825 |
114.70 |
$1,242 |
$361 |
|||||
| Property Account Status/Adjustments/Exemptions | ||
|---|---|---|
| Account # | Exemption Description | Amount |
|
R150832715 |
5% Capped Account |
0 |
| Property Deed Transaction History (Recorded in the County Clerk's Office) | |||||||
|---|---|---|---|---|---|---|---|
| Date | Type | Book | Page | Price | Grantor | Grantee | |
|
9/29/2021 |
|
Deeds |
$150,000 |
PROVENCE JOHN V & BETTY J TRS |
REIHING JOHN & KAREN |
||
|
7/19/2007 |
|
Deeds |
$0 |
PROVENCE JOHN V & BETTY J |
PROVENCE JOHN V & BETTY J TRS |
||
|
11/11/1911 |
|
Historical |
$0 |
|
PROVENCE JOHN V & BETTY J |
||
| Last Mailed Notice of Value (N.O.V.) Information/History | ||||||||
|---|---|---|---|---|---|---|---|---|
| Year | Date | Market Value | Taxable Market Value | Gross Assessed | Exemption | Net Assessed | ||
|
2026 |
02/06/2026 |
195,000 |
178,678 |
19,653 |
0 |
19,653 |
||
|
2025 |
01/31/2025 |
187,000 |
170,170 |
18,718 |
0 |
18,718 |
||
|
2024 |
01/22/2024 |
175,500 |
162,067 |
17,826 |
0 |
17,826 |
||
|
2023 |
01/23/2023 |
159,500 |
154,350 |
16,978 |
0 |
16,978 |
||
|
2022 |
02/22/2022 |
147,000 |
147,000 |
16,170 |
0 |
16,170 |
||
| Property Building Permit History | |||||||||||
|---|---|---|---|---|---|---|---|---|---|---|---|
| Issued | Permit # | Provided by | Bldg # | Description | Est Construction Cost | Status | |||||
| No Building Permit records returned. | |||||||||||
| Click button on building number to access detailed information: | ||||||
|---|---|---|---|---|---|---|
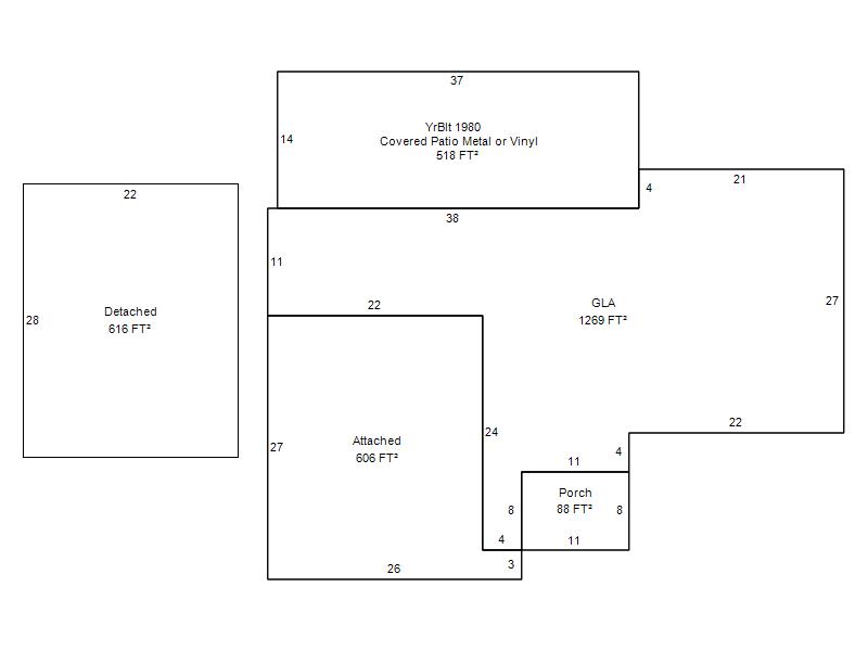
| Bldg # | Vacant/Improved Land | Bldg Description | Year Built | SqFt | # Stories | |
|
1 |
Improved |
Ranch 1 Story |
1968 |
1,269 |
1 Stories |
|