|
|
|
| Larry Stein Oklahoma County Assessor (405) 713-1200 - Public Access System |
|
|
|
|
|
|
| Real Property Display - Screen Produced 3/13/2026 9:06:03 AM | ||||
|---|---|---|---|---|
| Account: R150832815 | Type: Residential | Location: |
5525 JUDY DR |
|
| Building Name/Occupant: |
|
DEL CITY |
||
| Owner Name 1: | NORRIS BRIGGETTE |
Parcel PIN#: |
1417-15-083-2815 |
|
| Owner Name 2: | 1/4 section #: |
1417 |
||
| Owner Name 3: | Parent Acct: |
|
||
| Billing Address: | 5525 JUDY DR | Tax District: |
|
|
| City, State, Zip | OKLAHOMA CITY, OK 73115-4555 | School System: |
Mid-Del #52 |
|
|
Country: (If noted) |
Land Size: |
0.3099 Acres |
||
|
Land Value: 22,757 |
|
|||
|
Sect 5-T11N-R2W Qtr NE |
UNPLTD PT SEC 05 11N 2W
Block
000
Lot
000
|
|||
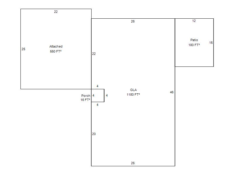
| Full Legal Description: UNPLTD PT SEC 05 11N 2W 000 000 PT OF NE4 SEC 5 11N 2W BEG 2449FT S & 183.8FT W OF NE/C OF NE4 TH W100FT S135FT E100F N135FT TO BEG |
| Photo & Sketch (if available) | Comp Sales (ordered by relevancy) |
|
||||||||||||||||||
|
||||||||||||||||||||
| Value History (*The County Treasurer 405-713-1300 posts & collects actual tax amounts. Contact information HERE) | |||||||||||||
|---|---|---|---|---|---|---|---|---|---|---|---|---|---|
| Year | Market Value | Taxable Mkt Value | Gross Assessed | Exemption | Net Assessed | Millage | Est. Tax | Tax Savings | |||||
|
2025 |
148,000 |
100,854 |
11,093 |
1,000 |
10,093 |
114.72 |
$1,158 |
$710 |
|||||
|
2024 |
138,000 |
97,917 |
10,770 |
1,000 |
9,770 |
117.21 |
$1,145 |
$634 |
|||||
|
2023 |
125,000 |
95,066 |
10,456 |
1,000 |
9,456 |
112.46 |
$1,064 |
$483 |
|||||
|
2022 |
114,500 |
92,298 |
10,152 |
1,000 |
9,152 |
110.76 |
$1,014 |
$381 |
|||||
|
2021 |
98,000 |
89,610 |
9,857 |
1,000 |
8,857 |
114.70 |
$1,016 |
$221 |
|||||
| Property Account Status/Adjustments/Exemptions | ||
|---|---|---|
| Account # | Exemption Description | Amount |
|
R150832815 |
3% Cap Homestead |
0 |
|
R150832815 |
Homestead |
1,000 |
| Property Deed Transaction History (Recorded in the County Clerk's Office) | |||||||
|---|---|---|---|---|---|---|---|
| Date | Type | Book | Page | Price | Grantor | Grantee | |
|
2/15/2012 |
|
Deeds |
$82,500 |
OMEGA INVESTMENTS LLC |
NORRIS BRIGGETTE |
||
|
8/17/2011 |
|
Deeds |
$33,500 |
WILLIAMS MARY E CROOM PATRICIA ACTING GUARDIAN OF MARY E WIL |
OMEGA INVESTMENTS LLC |
||
|
8/16/2011 |
|
Other |
$0 |
WILLIAMS MARY E |
OMEGA INVESTMENTS LLC |
||
|
3/1/1982 |
|
Historical |
$0 |
|
WILLIAMS MARY E |
||
| Last Mailed Notice of Value (N.O.V.) Information/History | ||||||||
|---|---|---|---|---|---|---|---|---|
| Year | Date | Market Value | Taxable Market Value | Gross Assessed | Exemption | Net Assessed | ||
|
2026 |
02/06/2026 |
148,500 |
103,879 |
11,425 |
1,000 |
10,425 |
||
|
2025 |
01/31/2025 |
148,000 |
100,854 |
11,093 |
1,000 |
10,093 |
||
|
2024 |
01/22/2024 |
138,000 |
97,917 |
10,770 |
1,000 |
9,770 |
||
|
2023 |
01/23/2023 |
125,000 |
95,066 |
10,456 |
1,000 |
9,456 |
||
|
2022 |
02/22/2022 |
114,500 |
92,298 |
10,152 |
1,000 |
9,152 |
||
| Property Building Permit History | |||||||||||
|---|---|---|---|---|---|---|---|---|---|---|---|
| Issued | Permit # | Provided by | Bldg # | Description | Est Construction Cost | Status | |||||
| No Building Permit records returned. | |||||||||||
| Click button on building number to access detailed information: | ||||||
|---|---|---|---|---|---|---|
| Bldg # | Vacant/Improved Land | Bldg Description | Year Built | SqFt | # Stories | |
|
1 |
Improved |
Ranch 1 Story |
1964 |
1,180 |
1 Stories |
|