|
|
|
| Larry Stein Oklahoma County Assessor (405) 713-1200 - Public Access System |
|
|
|
|
|
|
| Real Property Display - Screen Produced 4/1/2026 8:55:53 PM | ||||
|---|---|---|---|---|
| Account: R175330700 | Type: Residential | Location: |
8208 NW 39TH ST |
|
| Building Name/Occupant: |
|
BETHANY |
||
| Owner Name 1: | BELL ROBERT |
Parcel PIN#: |
2870-17-533-0700 |
|
| Owner Name 2: | 1/4 section #: |
2870 |
||
| Owner Name 3: | Parent Acct: |
|
||
| Billing Address: | 8208 NW 39TH ST | Tax District: |
|
|
| City, State, Zip | BETHANY, OK 73008 | School System: |
Putnam City #1 |
|
|
Country: (If noted) |
Land Size: |
0.1936 Acres |
||
|
Land Value: 36,679 |
|
|||
|
Sect 18-T12N-R4W Qtr SE |
ROYCE BROWNS RIVIERA
Block
006
Lot
008
|
|||
| Full Legal Description: ROYCE BROWNS RIVIERA 006 008 |
| Photo & Sketch (if available) | Comp Sales (ordered by relevancy) |
|
||||||||||||||||||
|
||||||||||||||||||||
| Value History (*The County Treasurer 405-713-1300 posts & collects actual tax amounts. Contact information HERE) | |||||||||||||
|---|---|---|---|---|---|---|---|---|---|---|---|---|---|
| Year | Market Value | Taxable Mkt Value | Gross Assessed | Exemption | Net Assessed | Millage | Est. Tax | Tax Savings | |||||
|
2026 |
174,500 |
174,500 |
19,195 |
0 |
19,195 |
122.14 |
$2,344 |
$0 |
|||||
|
2025 |
173,500 |
173,500 |
19,085 |
0 |
19,085 |
122.14 |
$2,331 |
$0 |
|||||
|
2024 |
175,000 |
174,300 |
19,173 |
0 |
19,173 |
120.52 |
$2,311 |
$9 |
|||||
|
2023 |
166,000 |
166,000 |
18,260 |
0 |
18,260 |
123.06 |
$2,247 |
$0 |
|||||
|
2022 |
146,500 |
129,543 |
14,249 |
0 |
14,249 |
112.54 |
$1,604 |
$210 |
|||||
| Property Account Status/Adjustments/Exemptions | ||
|---|---|---|
| Account # | Exemption Description | Amount |
|
R175330700 |
5% Capped Account |
0 |
| Property Deed Transaction History (Recorded in the County Clerk's Office) | |||||||
|---|---|---|---|---|---|---|---|
| Date | Type | Book | Page | Price | Grantor | Grantee | |
|
10/20/2022 |
|
Deeds |
$82,000 |
HALE KENNETH W & DARLENE F |
BELL ROBERT |
||
|
8/1/1985 |
|
Historical |
$66,266 |
|
HALE KENNETH W & DARLENE F |
||
| Last Mailed Notice of Value (N.O.V.) Information/History | ||||||||
|---|---|---|---|---|---|---|---|---|
| Year | Date | Market Value | Taxable Market Value | Gross Assessed | Exemption | Net Assessed | ||
|
2026 |
02/23/2026 |
174,500 |
174,500 |
19,195 |
0 |
19,195 |
||
|
2024 |
02/13/2024 |
175,000 |
174,300 |
19,173 |
0 |
19,173 |
||
|
2023 |
02/14/2023 |
166,000 |
166,000 |
18,260 |
0 |
18,260 |
||
|
2022 |
03/15/2022 |
146,500 |
129,543 |
14,249 |
0 |
14,249 |
||
|
2021 |
03/19/2021 |
127,500 |
123,375 |
13,571 |
0 |
13,571 |
||
| Property Building Permit History | |||||||||||
|---|---|---|---|---|---|---|---|---|---|---|---|
| Issued | Permit # | Provided by | Bldg # | Description | Est Construction Cost | Status | |||||
| No Building Permit records returned. | |||||||||||
| Click button on building number to access detailed information: | ||||||
|---|---|---|---|---|---|---|
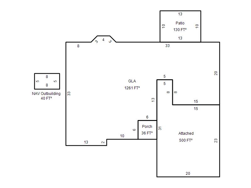
| Bldg # | Vacant/Improved Land | Bldg Description | Year Built | SqFt | # Stories | |
|
1 |
Improved |
Ranch 1 Story |
1966 |
1,261 |
1 Stories |
|