|
|
|
| Larry Stein Oklahoma County Assessor (405) 713-1200 - Public Access System |
|
|
|
|
|
|
| Real Property Display - Screen Produced 4/2/2026 2:05:11 PM | ||||
|---|---|---|---|---|
| Account: R149302120 | Type: Residential | Location: |
8023 NW 31ST TER |
|
| Building Name/Occupant: |
|
BETHANY |
||
| Owner Name 1: | VANOVER CHESTER P |
Parcel PIN#: |
2873-14-930-2120 |
|
| Owner Name 2: | 1/4 section #: |
2873 |
||
| Owner Name 3: | Parent Acct: |
|
||
| Billing Address: | 8023 NW 31ST TER | Tax District: |
|
|
| City, State, Zip | BETHANY, OK 73008-4343 | School System: |
Putnam City #1 |
|
|
Country: (If noted) |
Land Size: |
0.1791 Acres |
||
|
Land Value: 32,526 |
|
|||
|
Sect 19-T12N-R4W Qtr NE |
BRENTMARK VI
Block
002
Lot
013
|
|||
| Full Legal Description: BRENTMARK VI 002 013 |
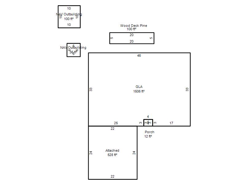
| Photo & Sketch (if available) | Comp Sales (ordered by relevancy) |
|
||||||||||||||||||
|
||||||||||||||||||||
| Value History (*The County Treasurer 405-713-1300 posts & collects actual tax amounts. Contact information HERE) | |||||||||||||
|---|---|---|---|---|---|---|---|---|---|---|---|---|---|
| Year | Market Value | Taxable Mkt Value | Gross Assessed | Exemption | Net Assessed | Millage | Est. Tax | Tax Savings | |||||
|
2026 |
247,500 |
214,415 |
23,585 |
0 |
23,585 |
122.14 |
$2,881 |
$445 |
|||||
|
2025 |
249,500 |
204,205 |
22,461 |
0 |
22,461 |
122.14 |
$2,744 |
$609 |
|||||
|
2024 |
243,500 |
194,481 |
21,392 |
0 |
21,392 |
120.52 |
$2,578 |
$650 |
|||||
|
2023 |
234,000 |
185,220 |
20,374 |
0 |
20,374 |
123.06 |
$2,507 |
$660 |
|||||
|
2022 |
206,500 |
176,400 |
19,404 |
0 |
19,404 |
112.54 |
$2,184 |
$373 |
|||||
| Property Account Status/Adjustments/Exemptions | ||
|---|---|---|
| Account # | Exemption Description | Amount |
|
R149302120 |
5% Capped Account |
0 |
| Property Deed Transaction History (Recorded in the County Clerk's Office) | ||||||||||
|---|---|---|---|---|---|---|---|---|---|---|
| Date | Type | Book | Page | Price | Grantor | Grantee | ||||
|
2/20/2012 |
|
Deeds |
$127,500 |
RATZLAFF JUSTIN |
VANOVER CHESTER P |
|||||
|
11/22/2006 |
|
Other |
$0 |
SECRETARY OF HOUSING & URBAN DEV |
RATZLAFF JUSTIN |
|||||
|
8/7/2006 |
|
Other |
$0 |
SPURLOCK SCOT M |
SECRETARY OF HOUSING & URBAN DEV |
|||||
|
9/18/2003 |
|
Deeds |
$75,500 |
EVANS DEBORAH L & JAY L C/O PRIMACY RELOCATION LLC |
SPURLOCK SCOT M |
|||||
|
8/1/1994 |
|
Historical |
$69,500 |
COFER JIMMY DEAN |
EVANS DEBORAH L & JAY L |
|||||
| Last Mailed Notice of Value (N.O.V.) Information/History | ||||||||
|---|---|---|---|---|---|---|---|---|
| Year | Date | Market Value | Taxable Market Value | Gross Assessed | Exemption | Net Assessed | ||
|
2026 |
02/23/2026 |
247,500 |
214,415 |
23,585 |
0 |
23,585 |
||
|
2025 |
02/14/2025 |
249,500 |
204,205 |
22,461 |
0 |
22,461 |
||
|
2024 |
02/13/2024 |
243,500 |
194,481 |
21,392 |
0 |
21,392 |
||
|
2023 |
02/14/2023 |
234,000 |
185,220 |
20,374 |
0 |
20,374 |
||
|
2022 |
03/15/2022 |
206,500 |
176,400 |
19,404 |
0 |
19,404 |
||
| Property Building Permit History | |||||||||||
|---|---|---|---|---|---|---|---|---|---|---|---|
| Issued | Permit # | Provided by | Bldg # | Description | Est Construction Cost | Status | |||||
| No Building Permit records returned. | |||||||||||
| Click button on building number to access detailed information: | ||||||
|---|---|---|---|---|---|---|
| Bldg # | Vacant/Improved Land | Bldg Description | Year Built | SqFt | # Stories | |
|
1 |
Improved |
Ranch 1 Story |
1978 |
1,506 |
1 Stories |
|