|
|
|
| Larry Stein Oklahoma County Assessor (405) 713-1200 - Public Access System |
|
|
|
|
|
|
| Real Property Display - Screen Produced 3/13/2026 1:24:27 PM | ||||
|---|---|---|---|---|
| Account: R153191365 | Type: Residential | Location: |
4800 LESLIE DR |
|
| Building Name/Occupant: |
|
DEL CITY |
||
| Owner Name 1: | JOHNSON RHONDA YVETTE & WILL |
Parcel PIN#: |
1417-15-319-1365 |
|
| Owner Name 2: | 1/4 section #: |
1417 |
||
| Owner Name 3: | Parent Acct: |
|
||
| Billing Address: | 4800 LESLIE DR | Tax District: |
|
|
| City, State, Zip | DEL CITY, OK 73115-3828 | School System: |
Mid-Del #52 |
|
|
Country: (If noted) |
Land Size: |
0.2137 Acres |
||
|
Land Value: 32,581 |
|
|||
|
Sect 5-T11N-R2W Qtr NE |
DEL CREST HTS 3RD ADD
Block
002
Lot
001
|
|||
| Full Legal Description: DEL CREST HTS 3RD ADD 002 001 |
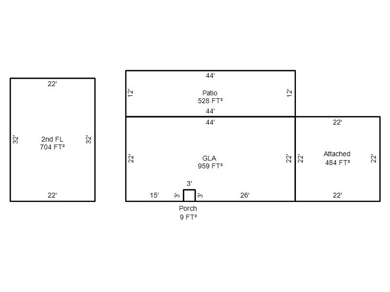
| Photo & Sketch (if available) | Comp Sales (ordered by relevancy) |
|
||||||||||||||||||
|
||||||||||||||||||||
| Value History (*The County Treasurer 405-713-1300 posts & collects actual tax amounts. Contact information HERE) | |||||||||||||
|---|---|---|---|---|---|---|---|---|---|---|---|---|---|
| Year | Market Value | Taxable Mkt Value | Gross Assessed | Exemption | Net Assessed | Millage | Est. Tax | Tax Savings | |||||
|
2025 |
170,500 |
128,902 |
14,179 |
0 |
14,179 |
114.72 |
$1,627 |
$525 |
|||||
|
2024 |
162,500 |
122,764 |
13,504 |
0 |
13,504 |
117.21 |
$1,583 |
$512 |
|||||
|
2023 |
146,500 |
116,919 |
12,860 |
0 |
12,860 |
112.46 |
$1,446 |
$366 |
|||||
|
2022 |
133,500 |
111,352 |
12,248 |
0 |
12,248 |
110.76 |
$1,357 |
$270 |
|||||
|
2021 |
114,500 |
106,050 |
11,665 |
0 |
11,665 |
114.70 |
$1,338 |
$107 |
|||||
| Property Account Status/Adjustments/Exemptions | ||
|---|---|---|
| Account # | Exemption Description | Amount |
|
R153191365 |
5% Capped Account |
0 |
| Property Deed Transaction History (Recorded in the County Clerk's Office) | |||||||
|---|---|---|---|---|---|---|---|
| Date | Type | Book | Page | Price | Grantor | Grantee | |
|
12/21/2009 |
|
Deeds |
$94,500 |
OWEN KIM DAVIDSON |
JOHNSON RHONDA YVETTE & WILL |
||
|
1/31/2005 |
|
Deeds |
$0 |
MOORE KIM R & EDWARD L |
OWEN KIM DAVIDSON |
||
|
11/16/2000 |
|
Deeds |
$0 |
OWEN KIM R |
MOORE KIM R & EDWARD L |
||
|
5/6/1991 |
|
Historical |
$0 |
OWEN TIMOTHY C & KIM R |
OWEN KIM R |
||
|
12/1/1979 |
|
Historical |
$0 |
|
OWEN TIMOTHY C & KIM R |
||
| Last Mailed Notice of Value (N.O.V.) Information/History | ||||||||
|---|---|---|---|---|---|---|---|---|
| Year | Date | Market Value | Taxable Market Value | Gross Assessed | Exemption | Net Assessed | ||
|
2026 |
02/06/2026 |
171,000 |
135,347 |
14,887 |
0 |
14,887 |
||
|
2025 |
01/31/2025 |
170,500 |
128,902 |
14,179 |
0 |
14,179 |
||
|
2024 |
01/22/2024 |
162,500 |
122,764 |
13,504 |
0 |
13,504 |
||
|
2023 |
01/23/2023 |
146,500 |
116,919 |
12,860 |
0 |
12,860 |
||
|
2022 |
02/22/2022 |
133,500 |
111,352 |
12,248 |
0 |
12,248 |
||
| Property Building Permit History | |||||||||||
|---|---|---|---|---|---|---|---|---|---|---|---|
| Issued | Permit # | Provided by | Bldg # | Description | Est Construction Cost | Status | |||||
| No Building Permit records returned. | |||||||||||
| Click button on building number to access detailed information: | ||||||
|---|---|---|---|---|---|---|
| Bldg # | Vacant/Improved Land | Bldg Description | Year Built | SqFt | # Stories | |
|
1 |
Improved |
2 Story |
1963 |
1,663 |
2 Stories |
|