|
|
|
| Larry Stein Oklahoma County Assessor (405) 713-1200 - Public Access System |
|
|
|
|
|
|
| Real Property Display - Screen Produced 3/13/2026 1:28:47 PM | ||||
|---|---|---|---|---|
| Account: R153191395 | Type: Residential | Location: |
4724 LESLIE DR |
|
| Building Name/Occupant: |
|
DEL CITY |
||
| Owner Name 1: | TURNER HAILEE |
Parcel PIN#: |
1417-15-319-1395 |
|
| Owner Name 2: | 1/4 section #: |
1417 |
||
| Owner Name 3: | Parent Acct: |
|
||
| Billing Address: | 4724 LESLIE DR | Tax District: |
|
|
| City, State, Zip | DEL CITY, OK 73115 | School System: |
Mid-Del #52 |
|
|
Country: (If noted) |
Land Size: |
0.1708 Acres |
||
|
Land Value: 26,040 |
|
|||
|
Sect 5-T11N-R2W Qtr NE |
DEL CREST HTS 3RD ADD
Block
002
Lot
004
|
|||
| Full Legal Description: DEL CREST HTS 3RD ADD 002 004 |
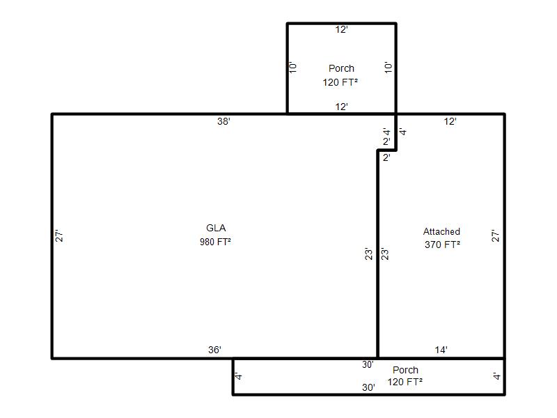
| Photo & Sketch (if available) | Comp Sales (ordered by relevancy) |
|
||||||||||||||||||
|
||||||||||||||||||||
| Value History (*The County Treasurer 405-713-1300 posts & collects actual tax amounts. Contact information HERE) | |||||||||||||
|---|---|---|---|---|---|---|---|---|---|---|---|---|---|
| Year | Market Value | Taxable Mkt Value | Gross Assessed | Exemption | Net Assessed | Millage | Est. Tax | Tax Savings | |||||
|
2025 |
130,000 |
106,540 |
11,719 |
1,000 |
10,719 |
114.72 |
$1,230 |
$411 |
|||||
|
2024 |
121,000 |
103,437 |
11,377 |
1,000 |
10,377 |
117.21 |
$1,216 |
$344 |
|||||
|
2023 |
108,000 |
100,425 |
11,046 |
1,000 |
10,046 |
112.46 |
$1,130 |
$206 |
|||||
|
2022 |
97,500 |
97,500 |
10,725 |
1,000 |
9,725 |
110.76 |
$1,077 |
$111 |
|||||
|
2021 |
83,500 |
77,175 |
8,489 |
0 |
8,489 |
114.70 |
$974 |
$80 |
|||||
| Property Account Status/Adjustments/Exemptions | ||
|---|---|---|
| Account # | Exemption Description | Amount |
|
R153191395 |
3% Cap Homestead |
0 |
|
R153191395 |
Homestead |
1,000 |
| Property Deed Transaction History (Recorded in the County Clerk's Office) | ||||||||||
|---|---|---|---|---|---|---|---|---|---|---|
| Date | Type | Book | Page | Price | Grantor | Grantee | ||||
|
3/12/2021 |
|
Deeds |
$72,500 |
WEBB GARY L & TAMARA L |
TURNER HAILEE |
|||||
|
12/1/2020 |
|
Hmstd Off & |
$0 |
WEBB ANITA J TRS |
WEBB GARY L & TAMARA L |
|||||
|
12/12/2013 |
|
Deeds |
$0 |
WEBB JIMMY C SR & ANITA J |
WEBB ANITA J TRS |
|||||
|
8/21/2001 |
|
Deeds |
$60,000 |
MCMICHAEL KEVIN D & VALINDA K |
WEBB JIMMY C SR & ANITA J |
|||||
|
10/7/1998 |
|
Historical |
$40,000 |
WEBB JIMMY C SR |
MCMICHAEL KEVIN D & VALINDA K |
|||||
| Last Mailed Notice of Value (N.O.V.) Information/History | ||||||||
|---|---|---|---|---|---|---|---|---|
| Year | Date | Market Value | Taxable Market Value | Gross Assessed | Exemption | Net Assessed | ||
|
2026 |
02/06/2026 |
130,000 |
109,736 |
12,070 |
1,000 |
11,070 |
||
|
2025 |
01/31/2025 |
130,000 |
106,540 |
11,719 |
1,000 |
10,719 |
||
|
2024 |
01/22/2024 |
121,000 |
103,437 |
11,377 |
1,000 |
10,377 |
||
|
2023 |
01/23/2023 |
108,000 |
100,425 |
11,046 |
1,000 |
10,046 |
||
|
2022 |
02/22/2022 |
97,500 |
97,500 |
10,725 |
1,000 |
9,725 |
||
| Property Building Permit History | |||||||||||
|---|---|---|---|---|---|---|---|---|---|---|---|
| Issued | Permit # | Provided by | Bldg # | Description | Est Construction Cost | Status | |||||
| No Building Permit records returned. | |||||||||||
| Click button on building number to access detailed information: | ||||||
|---|---|---|---|---|---|---|
| Bldg # | Vacant/Improved Land | Bldg Description | Year Built | SqFt | # Stories | |
|
1 |
Improved |
Ranch 1 Story |
1963 |
980 |
1 Stories |
|