|
|
|
| Larry Stein Oklahoma County Assessor (405) 713-1200 - Public Access System |
|
|
|
|
|
|
| Real Property Display - Screen Produced 3/13/2026 1:34:33 PM | ||||
|---|---|---|---|---|
| Account: R153192315 | Type: Residential | Location: |
4811 TATE DR |
|
| Building Name/Occupant: |
|
DEL CITY |
||
| Owner Name 1: | JONES ANTHONY |
Parcel PIN#: |
1417-15-319-2315 |
|
| Owner Name 2: | JONES SUMMER | 1/4 section #: |
1417 |
|
| Owner Name 3: | Parent Acct: |
|
||
| Billing Address: | 4811 TATE DR | Tax District: |
|
|
| City, State, Zip | DEL CITY, OK 73115 | School System: |
Mid-Del #52 |
|
|
Country: (If noted) |
Land Size: |
0.1708 Acres |
||
|
Land Value: 26,040 |
|
|||
|
Sect 5-T11N-R2W Qtr NE |
DEL CREST HTS 3RD ADD
Block
004
Lot
036
|
|||
| Full Legal Description: DEL CREST HTS 3RD ADD 004 036 |
| Photo & Sketch (if available) | Comp Sales (ordered by relevancy) |
|
||||||||||||||||||
|
||||||||||||||||||||
| Value History (*The County Treasurer 405-713-1300 posts & collects actual tax amounts. Contact information HERE) | |||||||||||||
|---|---|---|---|---|---|---|---|---|---|---|---|---|---|
| Year | Market Value | Taxable Mkt Value | Gross Assessed | Exemption | Net Assessed | Millage | Est. Tax | Tax Savings | |||||
|
2025 |
155,500 |
118,518 |
13,036 |
0 |
13,036 |
114.72 |
$1,496 |
$467 |
|||||
|
2024 |
145,500 |
112,875 |
12,416 |
0 |
12,416 |
117.21 |
$1,455 |
$421 |
|||||
|
2023 |
107,500 |
107,500 |
11,825 |
0 |
11,825 |
112.46 |
$1,330 |
$0 |
|||||
|
2022 |
107,500 |
107,500 |
11,825 |
0 |
11,825 |
110.76 |
$1,310 |
$0 |
|||||
|
2021 |
99,500 |
90,640 |
9,970 |
1,000 |
8,970 |
114.70 |
$1,029 |
$226 |
|||||
| Property Account Status/Adjustments/Exemptions | ||
|---|---|---|
| Account # | Exemption Description | Amount |
|
R153192315 |
5% Capped Account |
0 |
| Property Deed Transaction History (Recorded in the County Clerk's Office) | ||||||||||
|---|---|---|---|---|---|---|---|---|---|---|
| Date | Type | Book | Page | Price | Grantor | Grantee | ||||
|
4/7/2021 |
|
Deeds |
$105,000 |
PORTER DEDRIC L |
JONES ANTHONY |
|||||
|
1/8/2008 |
|
Deeds |
$90,000 |
HOLLAND JAMES HOLLAND CHRIS |
PORTER DEDRIC L |
|||||
|
7/16/2007 |
|
Deeds |
$0 |
LOOKABAUGH JOE D & S CAROL |
LOOKABAUGH SHIRLEY CAROL |
|||||
|
7/16/2007 |
|
Deeds |
$45,000 |
LOOKABAUGH SHIRLEY CAROL |
HOLLAND ROY HOLLAND BRENDA |
|||||
|
7/16/2007 |
|
Hmstd Off & |
$0 |
HOLLAND ROY HOLLAND BRENDA |
HOLLAND JAMES HOLLAND CHRIS |
|||||
| Last Mailed Notice of Value (N.O.V.) Information/History | ||||||||
|---|---|---|---|---|---|---|---|---|
| Year | Date | Market Value | Taxable Market Value | Gross Assessed | Exemption | Net Assessed | ||
|
2026 |
02/06/2026 |
155,000 |
124,443 |
13,687 |
0 |
13,687 |
||
|
2025 |
01/31/2025 |
155,500 |
118,518 |
13,036 |
0 |
13,036 |
||
|
2024 |
01/22/2024 |
145,500 |
112,875 |
12,416 |
0 |
12,416 |
||
|
2022 |
02/22/2022 |
107,500 |
107,500 |
11,825 |
0 |
11,825 |
||
|
2021 |
02/24/2021 |
99,500 |
90,640 |
9,970 |
1,000 |
8,970 |
||
| Property Building Permit History | |||||||||||
|---|---|---|---|---|---|---|---|---|---|---|---|
| Issued | Permit # | Provided by | Bldg # | Description | Est Construction Cost | Status | |||||
| No Building Permit records returned. | |||||||||||
| Click button on building number to access detailed information: | ||||||
|---|---|---|---|---|---|---|
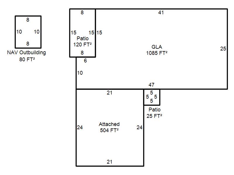
| Bldg # | Vacant/Improved Land | Bldg Description | Year Built | SqFt | # Stories | |
|
1 |
Improved |
Ranch 1 Story |
1963 |
1,085 |
1 Stories |
|