|
|
|
| Larry Stein Oklahoma County Assessor (405) 713-1200 - Public Access System |
|
|
|
|
|
|
| Real Property Display - Screen Produced 4/6/2026 4:03:54 AM | ||||
|---|---|---|---|---|
| Account: R175471475 | Type: Residential | Location: |
3004 N ALEXANDER LN |
|
| Building Name/Occupant: |
|
BETHANY |
||
| Owner Name 1: | MEDINA VERONICA |
Parcel PIN#: |
2878-17-547-1475 |
|
| Owner Name 2: | 1/4 section #: |
2878 |
||
| Owner Name 3: | Parent Acct: |
|
||
| Billing Address: | 3004 N ALEXANDER LN | Tax District: |
|
|
| City, State, Zip | BETHANY, OK 73008-4516 | School System: |
Putnam City #1 |
|
|
Country: (If noted) |
Land Size: |
0.1779 Acres |
||
|
Land Value: 34,875 |
|
|||
|
Sect 20-T12N-R4W Qtr SE |
CARLSON ESTATES
Block
004
Lot
003
|
|||
| Full Legal Description: CARLSON ESTATES 004 003 |
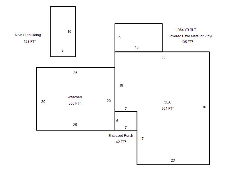
| Photo & Sketch (if available) | Comp Sales (ordered by relevancy) |
|
||||||||||||||||||
|
||||||||||||||||||||
| Value History (*The County Treasurer 405-713-1300 posts & collects actual tax amounts. Contact information HERE) | |||||||||||||
|---|---|---|---|---|---|---|---|---|---|---|---|---|---|
| Year | Market Value | Taxable Mkt Value | Gross Assessed | Exemption | Net Assessed | Millage | Est. Tax | Tax Savings | |||||
|
2026 |
148,500 |
109,592 |
12,055 |
1,000 |
11,055 |
122.14 |
$1,350 |
$645 |
|||||
|
2025 |
148,500 |
106,400 |
11,703 |
1,000 |
10,703 |
122.14 |
$1,307 |
$688 |
|||||
|
2024 |
146,000 |
103,301 |
11,362 |
1,000 |
10,362 |
120.52 |
$1,249 |
$687 |
|||||
|
2023 |
139,000 |
100,293 |
11,031 |
1,000 |
10,031 |
123.06 |
$1,235 |
$647 |
|||||
|
2022 |
122,500 |
97,372 |
10,709 |
1,000 |
9,709 |
112.54 |
$1,093 |
$424 |
|||||
| Property Account Status/Adjustments/Exemptions | ||
|---|---|---|
| Account # | Exemption Description | Amount |
|
R175471475 |
3% Cap Homestead |
0 |
|
R175471475 |
Homestead |
1,000 |
| Property Deed Transaction History (Recorded in the County Clerk's Office) | |||||||
|---|---|---|---|---|---|---|---|
| Date | Type | Book | Page | Price | Grantor | Grantee | |
|
8/7/2007 |
|
Deeds |
$79,000 |
GOMEZ OPHELIA M |
MEDINA VERONICA |
||
|
11/1/1991 |
|
Historical |
$37,500 |
DAVISON MERLE & JAMES C |
GOMEZ OPHELIA M |
||
|
1/1/1977 |
|
Historical |
$0 |
|
DAVISON MERLE & JAMES C |
||
| Last Mailed Notice of Value (N.O.V.) Information/History | ||||||||
|---|---|---|---|---|---|---|---|---|
| Year | Date | Market Value | Taxable Market Value | Gross Assessed | Exemption | Net Assessed | ||
|
2026 |
02/23/2026 |
148,500 |
109,592 |
12,055 |
1,000 |
11,055 |
||
|
2025 |
02/14/2025 |
148,500 |
106,400 |
11,703 |
1,000 |
10,703 |
||
|
2024 |
02/13/2024 |
146,000 |
103,301 |
11,362 |
1,000 |
10,362 |
||
|
2023 |
02/14/2023 |
139,000 |
100,293 |
11,031 |
1,000 |
10,031 |
||
|
2022 |
03/15/2022 |
122,500 |
97,372 |
10,709 |
1,000 |
9,709 |
||
| Property Building Permit History | |||||||||||
|---|---|---|---|---|---|---|---|---|---|---|---|
| Issued | Permit # | Provided by | Bldg # | Description | Est Construction Cost | Status | |||||
| No Building Permit records returned. | |||||||||||
| Click button on building number to access detailed information: | ||||||
|---|---|---|---|---|---|---|
| Bldg # | Vacant/Improved Land | Bldg Description | Year Built | SqFt | # Stories | |
|
1 |
Improved |
Ranch 1 Story |
1963 |
961 |
1 Stories |
|