|
|
|
| Larry Stein Oklahoma County Assessor (405) 713-1200 - Public Access System |
|
|
|
|
|
|
| Real Property Display - Screen Produced 3/13/2026 1:33:22 PM | ||||
|---|---|---|---|---|
| Account: R153192435 | Type: Residential | Location: |
4817 MICHAEL DR |
|
| Building Name/Occupant: |
|
DEL CITY |
||
| Owner Name 1: | MAULDIN DAVID & PAULA |
Parcel PIN#: |
1417-15-319-2435 |
|
| Owner Name 2: | DEAL REYNA | 1/4 section #: |
1417 |
|
| Owner Name 3: | Parent Acct: |
|
||
| Billing Address: | 4817 MICHAEL DR | Tax District: |
|
|
| City, State, Zip | DEL CITY, OK 73115 | School System: |
Mid-Del #52 |
|
|
Country: (If noted) |
Land Size: |
0.1957 Acres |
||
|
Land Value: 29,836 |
|
|||
|
Sect 5-T11N-R2W Qtr NE |
DEL CREST HTS 3RD ADD
Block
005
Lot
006
|
|||
| Full Legal Description: DEL CREST HTS 3RD ADD 005 006 |
| Photo & Sketch (if available) | Comp Sales (ordered by relevancy) |
|
||||||||||||||||||
|
||||||||||||||||||||
| Value History (*The County Treasurer 405-713-1300 posts & collects actual tax amounts. Contact information HERE) | |||||||||||||
|---|---|---|---|---|---|---|---|---|---|---|---|---|---|
| Year | Market Value | Taxable Mkt Value | Gross Assessed | Exemption | Net Assessed | Millage | Est. Tax | Tax Savings | |||||
|
2025 |
206,500 |
154,428 |
16,986 |
0 |
16,986 |
114.72 |
$1,949 |
$657 |
|||||
|
2024 |
194,500 |
147,075 |
16,177 |
0 |
16,177 |
117.21 |
$1,896 |
$611 |
|||||
|
2023 |
175,500 |
140,072 |
15,407 |
0 |
15,407 |
112.46 |
$1,733 |
$438 |
|||||
|
2022 |
160,000 |
133,402 |
14,673 |
0 |
14,673 |
110.76 |
$1,625 |
$324 |
|||||
|
2021 |
137,000 |
127,050 |
13,975 |
0 |
13,975 |
114.70 |
$1,603 |
$126 |
|||||
| Property Account Status/Adjustments/Exemptions | ||
|---|---|---|
| Account # | Exemption Description | Amount |
|
R153192435 |
5% Capped Account |
0 |
| Property Deed Transaction History (Recorded in the County Clerk's Office) | ||||||||||
|---|---|---|---|---|---|---|---|---|---|---|
| Date | Type | Book | Page | Price | Grantor | Grantee | ||||
|
10/8/2018 |
|
Deeds |
$0 |
MAULDIN DAVID |
MAULDIN DAVID & PAULA |
|||||
|
7/9/2018 |
|
Deeds |
$130,000 |
HOLLAND MARIANN LYNETTE |
MAULDIN DAVID |
|||||
|
2/7/2003 |
|
Deeds |
$0 |
DUSENBERRY MARIANN L |
HOLLAND MARIANN LYNETTE |
|||||
|
9/8/1998 |
|
Historical |
$0 |
DUSENBERRY JERRY DON & MARIANN |
DUSENBERRY MARIANN L |
|||||
|
5/16/1988 |
|
Historical |
$68,000 |
THOMAS LONNIE J |
DUSENBERRY JERRY DON & MARIANN |
|||||
| Last Mailed Notice of Value (N.O.V.) Information/History | ||||||||
|---|---|---|---|---|---|---|---|---|
| Year | Date | Market Value | Taxable Market Value | Gross Assessed | Exemption | Net Assessed | ||
|
2026 |
02/06/2026 |
205,000 |
162,149 |
17,836 |
0 |
17,836 |
||
|
2025 |
01/31/2025 |
206,500 |
154,428 |
16,986 |
0 |
16,986 |
||
|
2024 |
01/22/2024 |
194,500 |
147,075 |
16,177 |
0 |
16,177 |
||
|
2023 |
01/23/2023 |
175,500 |
140,072 |
15,407 |
0 |
15,407 |
||
|
2022 |
02/22/2022 |
160,000 |
133,402 |
14,673 |
0 |
14,673 |
||
| Property Building Permit History | |||||||||||
|---|---|---|---|---|---|---|---|---|---|---|---|
| Issued | Permit # | Provided by | Bldg # | Description | Est Construction Cost | Status | |||||
| No Building Permit records returned. | |||||||||||
| Click button on building number to access detailed information: | ||||||
|---|---|---|---|---|---|---|
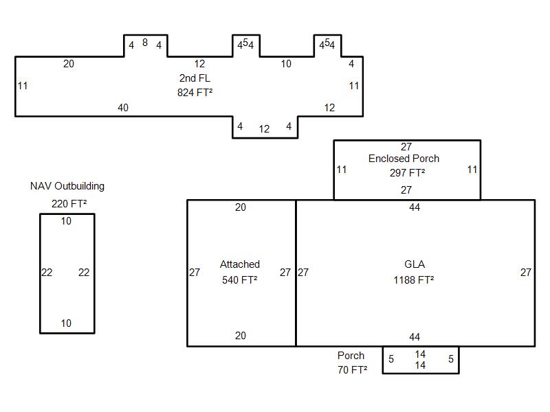
| Bldg # | Vacant/Improved Land | Bldg Description | Year Built | SqFt | # Stories | |
|
1 |
Improved |
2 Story |
1963 |
2,012 |
2 Stories |
|