|
|
|
| Larry Stein Oklahoma County Assessor (405) 713-1200 - Public Access System |
|
|
|
|
|
|
| Real Property Display - Screen Produced 3/13/2026 1:33:22 PM | ||||
|---|---|---|---|---|
| Account: R153192465 | Type: Residential | Location: |
205 HOWARD DR |
|
| Building Name/Occupant: |
|
DEL CITY |
||
| Owner Name 1: | OSBORNE MANAGEMENT LLC |
Parcel PIN#: |
1417-15-319-2465 |
|
| Owner Name 2: | 1/4 section #: |
1417 |
||
| Owner Name 3: | Parent Acct: |
|
||
| Billing Address: | 3912 SMOKING OAKS DR | Tax District: |
|
|
| City, State, Zip | OKLAHOMA CITY, OK 73150 | School System: |
Mid-Del #52 |
|
|
Country: (If noted) |
UNITED STATES |
Land Size: |
0.2134 Acres |
|
|
Land Value: 32,533 |
|
|||
|
Sect 5-T11N-R2W Qtr NE |
DEL CREST HTS 3RD ADD
Block
005
Lot
009
|
|||
| Full Legal Description: DEL CREST HTS 3RD ADD 005 009 |
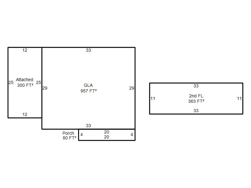
| Photo & Sketch (if available) | Comp Sales (ordered by relevancy) |
|
||||||||||||||||||
|
||||||||||||||||||||
| Value History (*The County Treasurer 405-713-1300 posts & collects actual tax amounts. Contact information HERE) | |||||||||||||
|---|---|---|---|---|---|---|---|---|---|---|---|---|---|
| Year | Market Value | Taxable Mkt Value | Gross Assessed | Exemption | Net Assessed | Millage | Est. Tax | Tax Savings | |||||
|
2025 |
133,000 |
104,654 |
11,511 |
0 |
11,511 |
114.72 |
$1,321 |
$358 |
|||||
|
2024 |
125,000 |
99,671 |
10,963 |
0 |
10,963 |
117.21 |
$1,285 |
$327 |
|||||
|
2023 |
114,500 |
94,925 |
10,441 |
0 |
10,441 |
112.46 |
$1,174 |
$242 |
|||||
|
2022 |
104,500 |
90,405 |
9,944 |
0 |
9,944 |
110.76 |
$1,101 |
$172 |
|||||
|
2021 |
89,500 |
86,100 |
9,471 |
0 |
9,471 |
114.70 |
$1,086 |
$43 |
|||||
| Property Account Status/Adjustments/Exemptions | ||
|---|---|---|
| Account # | Exemption Description | Amount |
|
R153192465 |
5% Capped Account |
0 |
| Property Deed Transaction History (Recorded in the County Clerk's Office) | ||||||||||
|---|---|---|---|---|---|---|---|---|---|---|
| Date | Type | Book | Page | Price | Grantor | Grantee | ||||
|
7/25/2022 |
|
Hmstd Off & |
$0 |
OSBORNE DAVID R |
OSBORNE MANAGEMENT LLC |
|||||
|
7/18/2022 |
|
Hmstd Off & |
$0 |
OSBORNE CLARA M & DAVID R TRS |
OSBORNE DAVID R SUCC TRS |
|||||
|
7/18/2022 |
|
Hmstd Off & |
$0 |
OSBORNE DAVID R SUCC TRS |
OSBORNE DAVID R |
|||||
|
2/10/2017 |
|
Hmstd Off & |
$0 |
WAINSCOTT CLIFFORD R & EILEEN C/O JUDITH KLEBER |
WAINSCOTT EILEEN |
|||||
|
2/10/2017 |
|
Deeds |
$60,000 |
WAINSCOTT EILEEN |
OSBORNE DAVID |
|||||
| Last Mailed Notice of Value (N.O.V.) Information/History | ||||||||
|---|---|---|---|---|---|---|---|---|
| Year | Date | Market Value | Taxable Market Value | Gross Assessed | Exemption | Net Assessed | ||
|
2026 |
02/06/2026 |
134,000 |
109,886 |
12,086 |
0 |
12,086 |
||
|
2025 |
01/31/2025 |
133,000 |
104,654 |
11,511 |
0 |
11,511 |
||
|
2024 |
01/22/2024 |
125,000 |
99,671 |
10,963 |
0 |
10,963 |
||
|
2023 |
01/23/2023 |
114,500 |
94,925 |
10,441 |
0 |
10,441 |
||
|
2022 |
02/22/2022 |
104,500 |
90,405 |
9,944 |
0 |
9,944 |
||
| Property Building Permit History | |||||||||||
|---|---|---|---|---|---|---|---|---|---|---|---|
| Issued | Permit # | Provided by | Bldg # | Description | Est Construction Cost | Status | |||||
| No Building Permit records returned. | |||||||||||
| Click button on building number to access detailed information: | ||||||
|---|---|---|---|---|---|---|
| Bldg # | Vacant/Improved Land | Bldg Description | Year Built | SqFt | # Stories | |
|
1 |
Improved |
1½ Story Fin |
1964 |
1,320 |
1.5 Stories |
|