|
|
|
| Larry Stein Oklahoma County Assessor (405) 713-1200 - Public Access System |
|
|
|
|
|
|
| Real Property Display - Screen Produced 4/28/2026 9:55:07 PM | ||||
|---|---|---|---|---|
| Account: R173901100 | Type: Residential | Location: |
7613 NW 27TH ST |
|
| Building Name/Occupant: |
|
BETHANY |
||
| Owner Name 1: | H & H ALLIANCE LLC |
Parcel PIN#: |
2879-17-390-1100 |
|
| Owner Name 2: | 1/4 section #: |
2879 |
||
| Owner Name 3: | Parent Acct: |
|
||
| Billing Address: | 8721 NW 72ND CT | Tax District: |
|
|
| City, State, Zip | OKLAHOMA CITY, OK 73132 | School System: |
Putnam City #1 |
|
|
Country: (If noted) |
Land Size: |
0.2307 Acres |
||
|
Land Value: 40,200 |
|
|||
|
Sect 20-T12N-R4W Qtr SW |
DEVILLE PARK 2ND
Block
001
Lot
000
|
|||
| Full Legal Description: DEVILLE PARK 2ND 001 000 W59FT LOT 11 & E8FT LOT 12 |
| Value History (*The County Treasurer 405-713-1300 posts & collects actual tax amounts. Contact information HERE) | |||||||||||||
|---|---|---|---|---|---|---|---|---|---|---|---|---|---|
| Year | Market Value | Taxable Mkt Value | Gross Assessed | Exemption | Net Assessed | Millage | Est. Tax | Tax Savings | |||||
|
2026 |
168,500 |
151,964 |
16,716 |
0 |
16,716 |
122.14 |
$2,042 |
$222 |
|||||
|
2025 |
169,000 |
144,728 |
15,920 |
0 |
15,920 |
122.14 |
$1,944 |
$326 |
|||||
|
2024 |
167,000 |
137,837 |
15,162 |
0 |
15,162 |
120.52 |
$1,827 |
$387 |
|||||
| Property Account Status/Adjustments/Exemptions | ||
|---|---|---|
| Account # | Exemption Description | Amount |
|
R173901100 |
5% Capped Account |
0 |
| Property Deed Transaction History (Recorded in the County Clerk's Office) | |||||||
|---|---|---|---|---|---|---|---|
| Date | Type | Book | Page | Price | Grantor | Grantee | |
|
6/30/2015 |
|
Deeds |
$75,500 |
THOMAS CURT J & DEBORAH Q |
H & H ALLIANCE LLC |
||
|
7/11/1988 |
|
Historical |
$60,500 |
HEARN GREGORY K & ELIZABETH S |
THOMAS CURT J & DEBORAH Q |
||
|
11/1/1985 |
|
Historical |
$60,000 |
|
HEARN GREGORY K & ELIZABETH S |
||
| Last Mailed Notice of Value (N.O.V.) Information/History | ||||||||
|---|---|---|---|---|---|---|---|---|
| Year | Date | Market Value | Taxable Market Value | Gross Assessed | Exemption | Net Assessed | ||
|
2026 |
02/23/2026 |
168,500 |
151,964 |
16,716 |
0 |
16,716 |
||
|
2025 |
02/14/2025 |
169,000 |
144,728 |
15,920 |
0 |
15,920 |
||
|
2024 |
02/13/2024 |
167,000 |
137,837 |
15,162 |
0 |
15,162 |
||
| Property Building Permit History | |||||||||||
|---|---|---|---|---|---|---|---|---|---|---|---|
| Issued | Permit # | Provided by | Bldg # | Description | Est Construction Cost | Status | |||||
| No Building Permit records returned. | |||||||||||
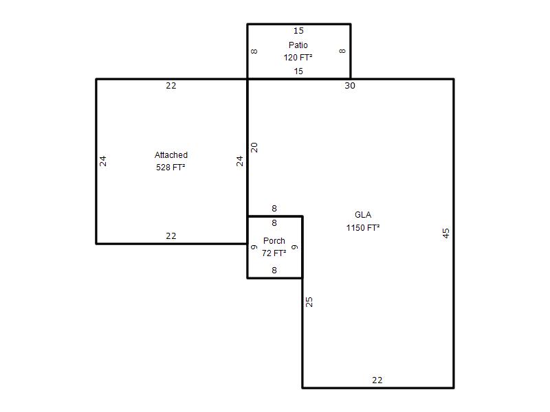
| Click button below to access detailed information and additional property photos: | ||||||
|---|---|---|---|---|---|---|
| Bldg # | Vacant/Improved Land | Bldg Description | Year Built | SqFt | # Stories | |
|
1 |
Improved |
Ranch 1 Story |
1964 |
1,150 |
1 Stories |
|