|
|
|
| Larry Stein Oklahoma County Assessor (405) 713-1200 - Public Access System |
|
|
|
|
|
|
| Real Property Display - Screen Produced 2/27/2026 7:33:51 PM | ||||
|---|---|---|---|---|
| Account: R173901400 | Type: Residential | Location: |
7716 NW 27TH ST |
|
| Building Name/Occupant: |
|
BETHANY |
||
| Owner Name 1: | MOCK DENNIS K |
Parcel PIN#: |
2879-17-390-1400 |
|
| Owner Name 2: | 1/4 section #: |
2879 |
||
| Owner Name 3: | Parent Acct: |
|
||
| Billing Address: | 7716 NW 27TH ST | Tax District: |
|
|
| City, State, Zip | BETHANY, OK 73008-4412 | School System: |
Putnam City #1 |
|
|
Country: (If noted) |
Land Size: |
0.2182 Acres |
||
|
Land Value: 38,016 |
|
|||
|
Sect 20-T12N-R4W Qtr SW |
DEVILLE PARK 2ND
Block
003
Lot
005
|
|||
| Full Legal Description: DEVILLE PARK 2ND 003 005 |
| Photo & Sketch (if available) | Comp Sales (ordered by relevancy) |
|
||||||||||||||||||
|
||||||||||||||||||||
| Value History (*The County Treasurer 405-713-1300 posts & collects actual tax amounts. Contact information HERE) | |||||||||||||
|---|---|---|---|---|---|---|---|---|---|---|---|---|---|
| Year | Market Value | Taxable Mkt Value | Gross Assessed | Exemption | Net Assessed | Millage | Est. Tax | Tax Savings | |||||
|
2025 |
181,000 |
107,119 |
11,783 |
2,000 |
9,783 |
122.14 |
$1,195 |
$1,237 |
|||||
|
2024 |
179,000 |
107,119 |
11,783 |
2,000 |
9,783 |
120.52 |
$1,179 |
$1,194 |
|||||
|
2023 |
170,000 |
107,119 |
11,783 |
2,000 |
9,783 |
123.06 |
$1,204 |
$1,097 |
|||||
|
2022 |
151,500 |
107,119 |
11,783 |
2,000 |
9,783 |
112.54 |
$1,101 |
$774 |
|||||
|
2021 |
133,000 |
107,119 |
11,783 |
2,000 |
9,783 |
112.07 |
$1,096 |
$543 |
|||||
| Property Account Status/Adjustments/Exemptions | ||
|---|---|---|
| Account # | Exemption Description | Amount |
|
R173901400 |
Freeze Senior Valuation |
0 |
|
R173901400 |
Homestead |
1,000 |
|
R173901400 |
Senior Additional Homestead |
1,000 |
|
R173901400 |
3% Cap Homestead |
0 |
| Property Deed Transaction History (Recorded in the County Clerk's Office) | |||||||
|---|---|---|---|---|---|---|---|
| Date | Type | Book | Page | Price | Grantor | Grantee | |
|
4/23/2007 |
|
Hmstd Off & |
$0 |
MOCK VERGIE E TRS MOCK VERGIE E REV TRUST |
MOCK DENNIS K |
||
|
12/27/1991 |
|
Historical |
$0 |
MOCK VERGIE |
MOCK VERGIE E TRS |
||
|
11/11/1911 |
|
Historical |
$0 |
|
MOCK VERGIE |
||
| Last Mailed Notice of Value (N.O.V.) Information/History | ||||||||
|---|---|---|---|---|---|---|---|---|
| Year | Date | Market Value | Taxable Market Value | Gross Assessed | Exemption | Net Assessed | ||
|
2025 |
02/14/2025 |
181,000 |
107,119 |
11,783 |
2,000 |
9,783 |
||
|
2024 |
02/13/2024 |
179,000 |
107,119 |
11,783 |
2,000 |
9,783 |
||
|
2023 |
02/14/2023 |
170,000 |
107,119 |
11,783 |
2,000 |
9,783 |
||
|
2022 |
03/15/2022 |
151,500 |
107,119 |
11,783 |
2,000 |
9,783 |
||
|
2021 |
03/19/2021 |
133,000 |
107,119 |
11,783 |
2,000 |
9,783 |
||
| Property Building Permit History | |||||||||||
|---|---|---|---|---|---|---|---|---|---|---|---|
| Issued | Permit # | Provided by | Bldg # | Description | Est Construction Cost | Status | |||||
| No Building Permit records returned. | |||||||||||
| Click button on building number to access detailed information: | ||||||
|---|---|---|---|---|---|---|
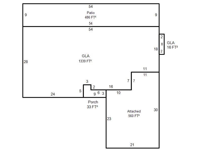
| Bldg # | Vacant/Improved Land | Bldg Description | Year Built | SqFt | # Stories | |
|
1 |
Improved |
Ranch 1 Story |
1963 |
1,355 |
1 Stories |
|