|
|
|
| Larry Stein Oklahoma County Assessor (405) 713-1200 - Public Access System |
|
|
|
|
|
|
| Real Property Display - Screen Produced 4/28/2026 9:55:08 PM | ||||
|---|---|---|---|---|
| Account: R173901410 | Type: Residential | Location: |
7720 NW 27TH ST |
|
| Building Name/Occupant: |
|
BETHANY |
||
| Owner Name 1: | NIXON TABITHA J |
Parcel PIN#: |
2879-17-390-1410 |
|
| Owner Name 2: | 1/4 section #: |
2879 |
||
| Owner Name 3: | Parent Acct: |
|
||
| Billing Address: | 7720 NW 27TH ST | Tax District: |
|
|
| City, State, Zip | BETHANY, OK 73008 | School System: |
Putnam City #1 |
|
|
Country: (If noted) |
Land Size: |
0.2182 Acres |
||
|
Land Value: 38,016 |
|
|||
|
Sect 20-T12N-R4W Qtr SW |
DEVILLE PARK 2ND
Block
003
Lot
006
|
|||
| Full Legal Description: DEVILLE PARK 2ND 003 006 |
| Value History (*The County Treasurer 405-713-1300 posts & collects actual tax amounts. Contact information HERE) | |||||||||||||
|---|---|---|---|---|---|---|---|---|---|---|---|---|---|
| Year | Market Value | Taxable Mkt Value | Gross Assessed | Exemption | Net Assessed | Millage | Est. Tax | Tax Savings | |||||
|
2026 |
190,500 |
177,561 |
19,531 |
0 |
19,531 |
122.14 |
$2,386 |
$174 |
|||||
|
2025 |
192,000 |
169,106 |
18,600 |
0 |
18,600 |
122.14 |
$2,272 |
$308 |
|||||
|
2024 |
190,500 |
161,054 |
17,715 |
0 |
17,715 |
120.52 |
$2,135 |
$390 |
|||||
| Property Account Status/Adjustments/Exemptions | ||
|---|---|---|
| Account # | Exemption Description | Amount |
|
R173901410 |
5% Capped Account |
0 |
| Property Deed Transaction History (Recorded in the County Clerk's Office) | |||||||
|---|---|---|---|---|---|---|---|
| Date | Type | Book | Page | Price | Grantor | Grantee | |
|
2/11/2022 |
|
Hmstd Off & |
$0 |
NIXON DENNIS MICHAEL |
NIXON TABITHA J |
||
|
8/31/2007 |
|
Deeds |
$117,000 |
LIGON LANE E & JACQUELINE S |
NIXON DENNIS MICHAEL |
||
|
1/1/1974 |
|
Historical |
$0 |
|
LIGON LANE E & JACQUELINE S |
||
| Last Mailed Notice of Value (N.O.V.) Information/History | ||||||||
|---|---|---|---|---|---|---|---|---|
| Year | Date | Market Value | Taxable Market Value | Gross Assessed | Exemption | Net Assessed | ||
|
2026 |
02/23/2026 |
190,500 |
177,561 |
19,531 |
0 |
19,531 |
||
|
2025 |
02/14/2025 |
192,000 |
169,106 |
18,600 |
0 |
18,600 |
||
|
2024 |
02/13/2024 |
190,500 |
161,054 |
17,715 |
0 |
17,715 |
||
| Property Building Permit History | |||||||||||
|---|---|---|---|---|---|---|---|---|---|---|---|
| Issued | Permit # | Provided by | Bldg # | Description | Est Construction Cost | Status | |||||
| No Building Permit records returned. | |||||||||||
| Click button below to access detailed information and additional property photos: | ||||||
|---|---|---|---|---|---|---|
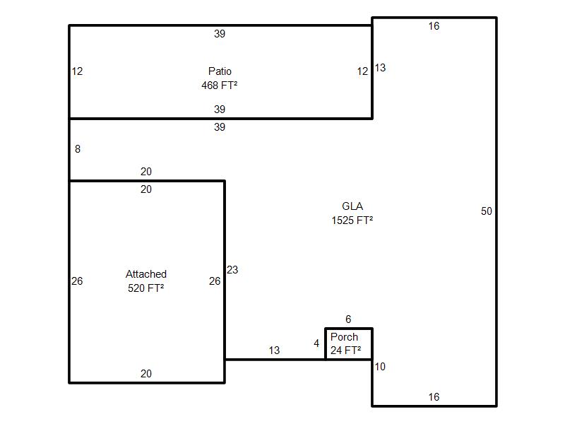
| Bldg # | Vacant/Improved Land | Bldg Description | Year Built | SqFt | # Stories | |
|
1 |
Improved |
Ranch 1 Story |
1963 |
1,525 |
1 Stories |
|