|
|
|
| Larry Stein Oklahoma County Assessor (405) 713-1200 - Public Access System |
|
|
|
|
|
|
| Real Property Display - Screen Produced 2/27/2026 7:32:30 PM | ||||
|---|---|---|---|---|
| Account: R173901660 | Type: Residential | Location: |
7624 NW 27TH ST |
|
| Building Name/Occupant: |
|
BETHANY |
||
| Owner Name 1: | ESCOBAR GABRIELA |
Parcel PIN#: |
2879-17-390-1660 |
|
| Owner Name 2: | 1/4 section #: |
2879 |
||
| Owner Name 3: | Parent Acct: |
|
||
| Billing Address: | 7624 NW 27TH ST | Tax District: |
|
|
| City, State, Zip | BETHANY, OK 73008 | School System: |
Putnam City #1 |
|
|
Country: (If noted) |
Land Size: |
0.1939 Acres |
||
|
Land Value: 33,792 |
|
|||
|
Sect 20-T12N-R4W Qtr SW |
DEVILLE PARK 2ND
Block
004
Lot
014
|
|||
| Full Legal Description: DEVILLE PARK 2ND 004 014 |
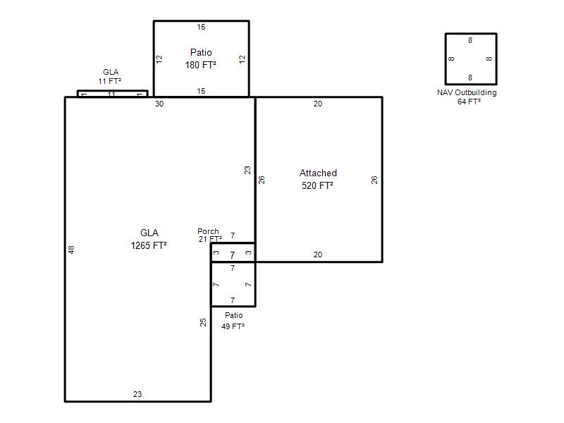
| Photo & Sketch (if available) | Comp Sales (ordered by relevancy) |
|
||||||||||||||||||
|
||||||||||||||||||||
| Value History (*The County Treasurer 405-713-1300 posts & collects actual tax amounts. Contact information HERE) | |||||||||||||
|---|---|---|---|---|---|---|---|---|---|---|---|---|---|
| Year | Market Value | Taxable Mkt Value | Gross Assessed | Exemption | Net Assessed | Millage | Est. Tax | Tax Savings | |||||
|
2025 |
172,000 |
132,536 |
14,578 |
1,000 |
13,578 |
122.14 |
$1,659 |
$652 |
|||||
|
2024 |
170,000 |
128,676 |
14,154 |
1,000 |
13,154 |
120.52 |
$1,585 |
$668 |
|||||
|
2023 |
161,500 |
124,929 |
13,742 |
1,000 |
12,742 |
123.06 |
$1,568 |
$618 |
|||||
|
2022 |
142,500 |
121,291 |
13,341 |
1,000 |
12,341 |
112.54 |
$1,389 |
$375 |
|||||
|
2021 |
124,000 |
117,759 |
12,953 |
1,000 |
11,953 |
112.07 |
$1,340 |
$189 |
|||||
| Property Account Status/Adjustments/Exemptions | ||
|---|---|---|
| Account # | Exemption Description | Amount |
|
R173901660 |
3% Cap Homestead |
0 |
|
R173901660 |
Homestead |
1,000 |
| Property Deed Transaction History (Recorded in the County Clerk's Office) | ||||||||||
|---|---|---|---|---|---|---|---|---|---|---|
| Date | Type | Book | Page | Price | Grantor | Grantee | ||||
|
4/13/2018 |
|
Deeds |
$115,000 |
LULLA BARAJAS JULIE |
ESCOBAR GABRIELA |
|||||
|
2/24/2012 |
|
Deeds |
$93,500 |
STEGMANN DWIGHT & DIANNA TRS STEGMANN DWIGHT F & DIANNA L LI |
LULLA BARAJAS JULIE |
|||||
|
12/15/2009 |
|
Hmstd Off & |
$0 |
STEGMANN HAZEL W TRS STEGMANN HAZEL W TRUST |
STEGMANN DWIGHT & DIANNA TRS STEGMANN DWIGHT F & DIANNA L LI |
|||||
|
3/25/1993 |
|
Historical |
$0 |
STEGMANN HAZEL W |
STEGMANN HAZEL W TRS |
|||||
|
7/29/1988 |
|
Historical |
$0 |
STEGMANN BENNIE & H |
STEGMANN HAZEL W |
|||||
| Last Mailed Notice of Value (N.O.V.) Information/History | ||||||||
|---|---|---|---|---|---|---|---|---|
| Year | Date | Market Value | Taxable Market Value | Gross Assessed | Exemption | Net Assessed | ||
|
2026 |
02/23/2026 |
171,500 |
136,512 |
15,015 |
1,000 |
14,015 |
||
|
2025 |
02/14/2025 |
172,000 |
132,536 |
14,578 |
1,000 |
13,578 |
||
|
2024 |
02/13/2024 |
170,000 |
128,676 |
14,154 |
1,000 |
13,154 |
||
|
2023 |
02/14/2023 |
161,500 |
124,929 |
13,742 |
1,000 |
12,742 |
||
|
2022 |
03/15/2022 |
142,500 |
121,291 |
13,341 |
1,000 |
12,341 |
||
| Property Building Permit History | |||||||||||
|---|---|---|---|---|---|---|---|---|---|---|---|
| Issued | Permit # | Provided by | Bldg # | Description | Est Construction Cost | Status | |||||
| No Building Permit records returned. | |||||||||||
| Click button on building number to access detailed information: | ||||||
|---|---|---|---|---|---|---|
| Bldg # | Vacant/Improved Land | Bldg Description | Year Built | SqFt | # Stories | |
|
1 |
Improved |
Ranch 1 Story |
1963 |
1,276 |
1 Stories |
|