|
|
|
| Larry Stein Oklahoma County Assessor (405) 713-1200 - Public Access System |
|
|
|
|
|
|
| Real Property Display - Screen Produced 3/13/2026 2:51:59 PM | ||||
|---|---|---|---|---|
| Account: R153221365 | Type: Residential | Location: |
4812 TRAPP DR |
|
| Building Name/Occupant: |
|
DEL CITY |
||
| Owner Name 1: | DIVA HOMES LLC |
Parcel PIN#: |
1417-15-322-1365 |
|
| Owner Name 2: | 1/4 section #: |
1417 |
||
| Owner Name 3: | Parent Acct: |
|
||
| Billing Address: | 3124 WINDY HILL LN | Tax District: |
|
|
| City, State, Zip | EDMOND , OK 73034 | School System: |
Mid-Del #52 |
|
|
Country: (If noted) |
Land Size: |
0.1791 Acres |
||
|
Land Value: 27,300 |
|
|||
|
Sect 5-T11N-R2W Qtr NE |
DEL CREST HTS 2ND
Block
002
Lot
001
|
|||
| Full Legal Description: DEL CREST HTS 2ND 002 001 |
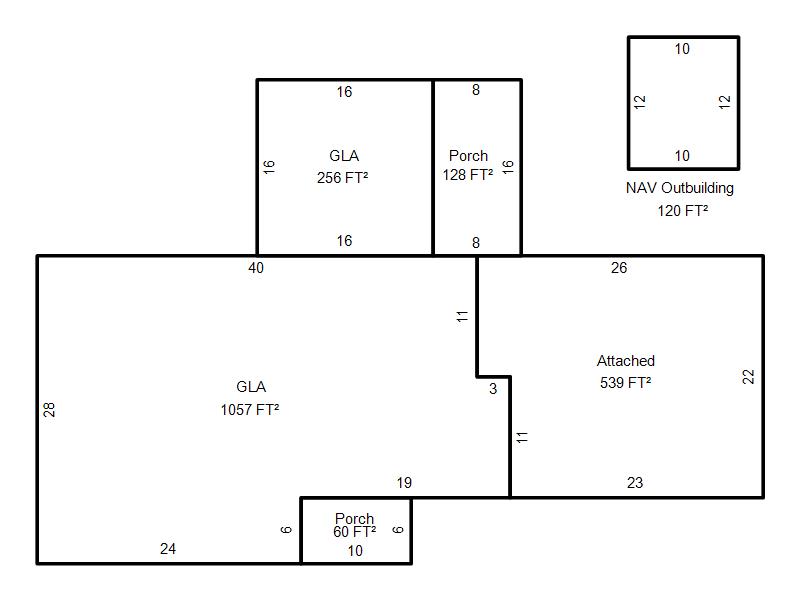
| Photo & Sketch (if available) | Comp Sales (ordered by relevancy) |
|
||||||||||||||||||
|
||||||||||||||||||||
| Value History (*The County Treasurer 405-713-1300 posts & collects actual tax amounts. Contact information HERE) | |||||||||||||
|---|---|---|---|---|---|---|---|---|---|---|---|---|---|
| Year | Market Value | Taxable Mkt Value | Gross Assessed | Exemption | Net Assessed | Millage | Est. Tax | Tax Savings | |||||
|
2025 |
147,500 |
137,812 |
15,158 |
0 |
15,158 |
114.72 |
$1,739 |
$122 |
|||||
|
2024 |
137,500 |
131,250 |
14,437 |
0 |
14,437 |
117.21 |
$1,692 |
$81 |
|||||
|
2023 |
125,000 |
125,000 |
13,750 |
0 |
13,750 |
112.46 |
$1,546 |
$0 |
|||||
|
2022 |
112,500 |
112,500 |
12,375 |
0 |
12,375 |
110.76 |
$1,371 |
$0 |
|||||
|
2021 |
98,000 |
89,610 |
9,857 |
1,000 |
8,857 |
114.70 |
$1,016 |
$221 |
|||||
| Property Account Status/Adjustments/Exemptions | ||
|---|---|---|
| Account # | Exemption Description | Amount |
|
R153221365 |
5% Capped Account |
0 |
| Property Deed Transaction History (Recorded in the County Clerk's Office) | |||||||
|---|---|---|---|---|---|---|---|
| Date | Type | Book | Page | Price | Grantor | Grantee | |
|
1/12/2022 |
|
Deeds |
$39,000 |
WE BUY HOUSES LLC |
DIVA HOMES LLC |
||
|
11/15/2021 |
|
Deeds |
$10,000 |
DOWDY GARY B |
WE BUY HOUSES LLC |
||
|
6/10/2005 |
|
Deeds |
$0 |
DOWDY GARY B |
DOWDY GARY B |
||
|
8/30/2001 |
|
Deeds |
$64,500 |
HARRISON BONNIE L |
DOWDY GARY B |
||
|
12/1/1982 |
|
Historical |
$0 |
|
HARRISON BONNIE L |
||
| Last Mailed Notice of Value (N.O.V.) Information/History | ||||||||
|---|---|---|---|---|---|---|---|---|
| Year | Date | Market Value | Taxable Market Value | Gross Assessed | Exemption | Net Assessed | ||
|
2026 |
02/06/2026 |
148,500 |
144,702 |
15,916 |
0 |
15,916 |
||
|
2025 |
01/31/2025 |
147,500 |
137,812 |
15,158 |
0 |
15,158 |
||
|
2024 |
01/22/2024 |
137,500 |
131,250 |
14,437 |
0 |
14,437 |
||
|
2023 |
01/23/2023 |
125,000 |
125,000 |
13,750 |
0 |
13,750 |
||
|
2022 |
02/22/2022 |
112,500 |
112,500 |
12,375 |
0 |
12,375 |
||
| Property Building Permit History | |||||||||||
|---|---|---|---|---|---|---|---|---|---|---|---|
| Issued | Permit # | Provided by | Bldg # | Description | Est Construction Cost | Status | |||||
| No Building Permit records returned. | |||||||||||
| Click button on building number to access detailed information: | ||||||
|---|---|---|---|---|---|---|
| Bldg # | Vacant/Improved Land | Bldg Description | Year Built | SqFt | # Stories | |
|
1 |
Improved |
Ranch 1 Story |
1962 |
1,313 |
1 Stories |
|