|
|
|
| Larry Stein Oklahoma County Assessor (405) 713-1200 - Public Access System |
|
|
|
|
|
|
| Real Property Display - Screen Produced 3/13/2026 2:56:20 PM | ||||
|---|---|---|---|---|
| Account: R153221465 | Type: Residential | Location: |
613 LESLIE DR |
|
| Building Name/Occupant: |
|
DEL CITY |
||
| Owner Name 1: | THOMPSON TINA T |
Parcel PIN#: |
1417-15-322-1465 |
|
| Owner Name 2: | 1/4 section #: |
1417 |
||
| Owner Name 3: | Parent Acct: |
|
||
| Billing Address: | 613 LESLIE DR | Tax District: |
|
|
| City, State, Zip | DEL CITY, OK 73115 | School System: |
Mid-Del #52 |
|
|
Country: (If noted) |
Land Size: |
0.1667 Acres |
||
|
Land Value: 25,410 |
|
|||
|
Sect 5-T11N-R2W Qtr NE |
DEL CREST HTS 2ND
Block
002
Lot
011
|
|||
| Full Legal Description: DEL CREST HTS 2ND 002 011 |
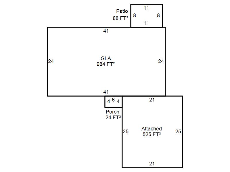
| Photo & Sketch (if available) | Comp Sales (ordered by relevancy) |
|
||||||||||||||||||
|
||||||||||||||||||||
| Value History (*The County Treasurer 405-713-1300 posts & collects actual tax amounts. Contact information HERE) | |||||||||||||
|---|---|---|---|---|---|---|---|---|---|---|---|---|---|
| Year | Market Value | Taxable Mkt Value | Gross Assessed | Exemption | Net Assessed | Millage | Est. Tax | Tax Savings | |||||
|
2025 |
148,500 |
113,006 |
12,429 |
0 |
12,429 |
114.72 |
$1,426 |
$448 |
|||||
|
2024 |
139,000 |
107,625 |
11,838 |
0 |
11,838 |
117.21 |
$1,388 |
$405 |
|||||
|
2023 |
102,500 |
102,500 |
11,275 |
0 |
11,275 |
112.46 |
$1,268 |
$0 |
|||||
|
2022 |
102,500 |
102,500 |
11,275 |
0 |
11,275 |
110.76 |
$1,249 |
$0 |
|||||
|
2021 |
95,000 |
87,675 |
9,644 |
0 |
9,644 |
114.70 |
$1,106 |
$92 |
|||||
| Property Account Status/Adjustments/Exemptions | ||
|---|---|---|
| Account # | Exemption Description | Amount |
|
R153221465 |
5% Capped Account |
0 |
| Property Deed Transaction History (Recorded in the County Clerk's Office) | ||||||||||
|---|---|---|---|---|---|---|---|---|---|---|
| Date | Type | Book | Page | Price | Grantor | Grantee | ||||
|
4/2/2021 |
|
Deeds |
$100,000 |
ISENHOUR THERESA S |
THOMPSON TINA T |
|||||
|
11/7/2014 |
|
Deeds |
$83,000 |
ISENHOUR KYLE |
ISENHOUR THERESA S |
|||||
|
5/30/2008 |
|
Deeds |
$72,000 |
COMPTON CLOIS O |
ISENHOUR KYLE |
|||||
|
10/7/2004 |
|
Deeds |
$0 |
COMPTON RAMONA E |
COMPTON CLOIS O |
|||||
|
5/15/1996 |
|
Historical |
$0 |
COMPTON CLOIS O & R |
COMPTON CLOIS O |
|||||
| Last Mailed Notice of Value (N.O.V.) Information/History | ||||||||
|---|---|---|---|---|---|---|---|---|
| Year | Date | Market Value | Taxable Market Value | Gross Assessed | Exemption | Net Assessed | ||
|
2026 |
02/06/2026 |
148,500 |
118,656 |
13,051 |
0 |
13,051 |
||
|
2025 |
01/31/2025 |
148,500 |
113,006 |
12,429 |
0 |
12,429 |
||
|
2024 |
01/22/2024 |
139,000 |
107,625 |
11,838 |
0 |
11,838 |
||
|
2022 |
02/22/2022 |
102,500 |
102,500 |
11,275 |
0 |
11,275 |
||
|
2021 |
02/24/2021 |
95,000 |
87,675 |
9,644 |
0 |
9,644 |
||
| Property Building Permit History | |||||||||||
|---|---|---|---|---|---|---|---|---|---|---|---|
| Issued | Permit # | Provided by | Bldg # | Description | Est Construction Cost | Status | |||||
| No Building Permit records returned. | |||||||||||
| Click button on building number to access detailed information: | ||||||
|---|---|---|---|---|---|---|
| Bldg # | Vacant/Improved Land | Bldg Description | Year Built | SqFt | # Stories | |
|
1 |
Improved |
Ranch 1 Story |
1962 |
984 |
1 Stories |
|