|
|
|
| Larry Stein Oklahoma County Assessor (405) 713-1200 - Public Access System |
|
|
|
|
|
|
| Real Property Display - Screen Produced 2/28/2026 3:42:17 AM | ||||
|---|---|---|---|---|
| Account: R149101210 | Type: Residential | Location: |
6505 NW 30TH TER |
|
| Building Name/Occupant: |
|
BETHANY |
||
| Owner Name 1: | ANDERSON LANDON KEITH |
Parcel PIN#: |
2881-14-910-1210 |
|
| Owner Name 2: | 1/4 section #: |
2881 |
||
| Owner Name 3: | Parent Acct: |
|
||
| Billing Address: | 6505 NW 30TH TER | Tax District: |
|
|
| City, State, Zip | BETHANY, OK 73008-4153 | School System: |
Putnam City #1 |
|
|
Country: (If noted) |
Land Size: |
0.2014 Acres |
||
|
Land Value: 30,713 |
|
|||
|
Sect 21-T12N-R4W Qtr NE |
BRENTMARK IV SEC 2
Block
003
Lot
014
|
|||
| Full Legal Description: BRENTMARK IV SEC 2 003 014 |
| Photo & Sketch (if available) | Comp Sales (ordered by relevancy) |
|
||||||||||||||||||
|
||||||||||||||||||||
| Value History (*The County Treasurer 405-713-1300 posts & collects actual tax amounts. Contact information HERE) | |||||||||||||
|---|---|---|---|---|---|---|---|---|---|---|---|---|---|
| Year | Market Value | Taxable Mkt Value | Gross Assessed | Exemption | Net Assessed | Millage | Est. Tax | Tax Savings | |||||
|
2025 |
194,000 |
194,000 |
21,340 |
1,000 |
20,340 |
122.14 |
$2,484 |
$122 |
|||||
|
2024 |
195,500 |
163,485 |
17,983 |
0 |
17,983 |
120.52 |
$2,167 |
$424 |
|||||
|
2023 |
188,500 |
155,700 |
17,126 |
0 |
17,126 |
123.06 |
$2,108 |
$444 |
|||||
|
2022 |
166,000 |
148,286 |
16,310 |
0 |
16,310 |
112.54 |
$1,836 |
$219 |
|||||
|
2021 |
144,500 |
141,225 |
15,534 |
0 |
15,534 |
112.07 |
$1,741 |
$40 |
|||||
| Property Account Status/Adjustments/Exemptions | ||
|---|---|---|
| Account # | Exemption Description | Amount |
|
R149101210 |
3% Cap Homestead |
0 |
|
R149101210 |
Homestead |
1,000 |
| Property Deed Transaction History (Recorded in the County Clerk's Office) | |||||||
|---|---|---|---|---|---|---|---|
| Date | Type | Book | Page | Price | Grantor | Grantee | |
|
12/23/2024 |
|
Deeds |
$222,500 |
BOWEN NISSEN CHERYL L |
ANDERSON LANDON KEITH |
||
|
4/21/2015 |
|
Hmstd Off & |
$0 |
SPEAKS HENRY C SORRELS CARMEN D |
SORRELS CARMEN D |
||
|
4/17/2015 |
|
Deeds |
$121,500 |
SORRELS CARMEN D |
BOWEN NISSEN CHERYL L |
||
|
10/25/1999 |
|
Deeds |
$81,500 |
PEARCE RULON E JR & PATSY |
SORRELS CARMEN D |
||
|
5/1/1977 |
|
Historical |
$0 |
|
PEARCE RULON E JR & PATSY |
||
| Last Mailed Notice of Value (N.O.V.) Information/History | ||||||||
|---|---|---|---|---|---|---|---|---|
| Year | Date | Market Value | Taxable Market Value | Gross Assessed | Exemption | Net Assessed | ||
|
2025 |
02/14/2025 |
194,000 |
194,000 |
21,340 |
0 |
21,340 |
||
|
2024 |
02/13/2024 |
195,500 |
163,485 |
17,983 |
0 |
17,983 |
||
|
2023 |
02/14/2023 |
188,500 |
155,700 |
17,126 |
0 |
17,126 |
||
|
2022 |
03/15/2022 |
166,000 |
148,286 |
16,310 |
0 |
16,310 |
||
|
2021 |
03/19/2021 |
144,500 |
141,225 |
15,534 |
0 |
15,534 |
||
| Property Building Permit History | |||||||||||
|---|---|---|---|---|---|---|---|---|---|---|---|
| Issued | Permit # | Provided by | Bldg # | Description | Est Construction Cost | Status | |||||
| No Building Permit records returned. | |||||||||||
| Click button on building number to access detailed information: | ||||||
|---|---|---|---|---|---|---|
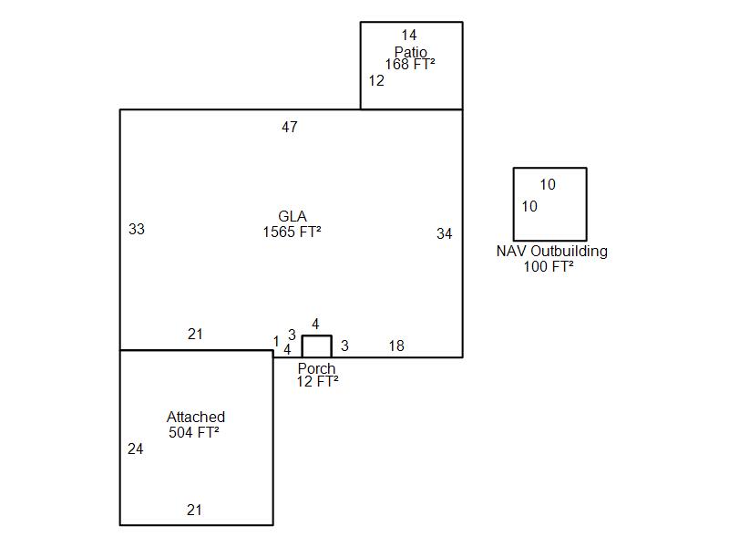
| Bldg # | Vacant/Improved Land | Bldg Description | Year Built | SqFt | # Stories | |
|
1 |
Improved |
Ranch 1 Story |
1977 |
1,565 |
1 Stories |
|