|
|
|
| Larry Stein Oklahoma County Assessor (405) 713-1200 - Public Access System |
|
|
|
|
|
|
| Real Property Display - Screen Produced 2/27/2026 9:08:25 PM | ||||
|---|---|---|---|---|
| Account: R171231270 | Type: Residential | Location: |
6201 NW 31ST ST |
|
| Building Name/Occupant: |
|
BETHANY |
||
| Owner Name 1: | LOERA SERGIO L |
Parcel PIN#: |
2881-17-123-1270 |
|
| Owner Name 2: | 1/4 section #: |
2881 |
||
| Owner Name 3: | Parent Acct: |
|
||
| Billing Address: | 6201 NW 31ST ST | Tax District: |
|
|
| City, State, Zip | BETHANY, OK 73008-4214 | School System: |
Putnam City #1 |
|
|
Country: (If noted) |
Land Size: |
0.2250 Acres |
||
|
Land Value: 34,300 |
|
|||
|
Sect 21-T12N-R4W Qtr NE |
BRENTMARK 4TH
Block
001
Lot
028
|
|||
| Full Legal Description: BRENTMARK 4TH 001 028 |
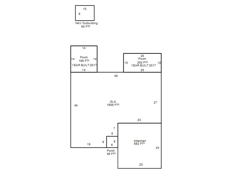
| Photo & Sketch (if available) | Comp Sales (ordered by relevancy) |
|
||||||||||||||||||
|
||||||||||||||||||||
| Value History (*The County Treasurer 405-713-1300 posts & collects actual tax amounts. Contact information HERE) | |||||||||||||
|---|---|---|---|---|---|---|---|---|---|---|---|---|---|
| Year | Market Value | Taxable Mkt Value | Gross Assessed | Exemption | Net Assessed | Millage | Est. Tax | Tax Savings | |||||
|
2025 |
207,500 |
181,231 |
19,935 |
0 |
19,935 |
122.14 |
$2,435 |
$353 |
|||||
|
2024 |
210,500 |
172,601 |
18,986 |
0 |
18,986 |
120.52 |
$2,288 |
$502 |
|||||
|
2023 |
199,500 |
164,382 |
18,082 |
0 |
18,082 |
123.06 |
$2,225 |
$475 |
|||||
|
2022 |
176,000 |
156,555 |
17,221 |
0 |
17,221 |
112.54 |
$1,938 |
$241 |
|||||
|
2021 |
153,000 |
149,100 |
16,401 |
0 |
16,401 |
112.07 |
$1,838 |
$48 |
|||||
| Property Account Status/Adjustments/Exemptions | ||
|---|---|---|
| Account # | Exemption Description | Amount |
|
R171231270 |
5% Capped Account |
0 |
| Property Deed Transaction History (Recorded in the County Clerk's Office) | |||||||
|---|---|---|---|---|---|---|---|
| Date | Type | Book | Page | Price | Grantor | Grantee | |
|
5/25/2006 |
|
Deeds |
$112,000 |
WENTE JEREMY MICHAEL & KRISTY LYNETTE |
LOERA SERGIO L |
||
|
9/30/2002 |
|
Deeds |
$93,000 |
MILLER RICHARD D & TRACY ANN |
WENTE JEREMY MICHAEL & KRISTY LYNETTE |
||
|
1/19/1993 |
|
Historical |
$63,500 |
NORVELL JAMES E & GOLDIE N |
MILLER RICHARD D & TRACY ANN |
||
|
1/3/1992 |
|
Historical |
$0 |
NORVELL JAMES E & GOLDIE N |
NORVELL JAMES E & GOLDIE N |
||
|
7/1/1980 |
|
Historical |
$0 |
|
NORVELL JAMES E & GOLDIE N |
||
| Last Mailed Notice of Value (N.O.V.) Information/History | ||||||||
|---|---|---|---|---|---|---|---|---|
| Year | Date | Market Value | Taxable Market Value | Gross Assessed | Exemption | Net Assessed | ||
|
2026 |
02/23/2026 |
204,500 |
190,292 |
20,931 |
0 |
20,931 |
||
|
2025 |
02/14/2025 |
207,500 |
181,231 |
19,935 |
0 |
19,935 |
||
|
2024 |
02/13/2024 |
210,500 |
172,601 |
18,986 |
0 |
18,986 |
||
|
2023 |
02/14/2023 |
199,500 |
164,382 |
18,082 |
0 |
18,082 |
||
|
2022 |
03/15/2022 |
176,000 |
156,555 |
17,221 |
0 |
17,221 |
||
| Property Building Permit History | ||||||
|---|---|---|---|---|---|---|
| Issued | Permit # | Provided by | Bldg # | Description | Est Construction Cost | Status |
|
4/13/1998 |
10255259 |
BETHANY |
1 |
Storage Buil |
800 |
Inactive |
| Click button on building number to access detailed information: | ||||||
|---|---|---|---|---|---|---|
| Bldg # | Vacant/Improved Land | Bldg Description | Year Built | SqFt | # Stories | |
|
1 |
Improved |
Ranch 1 Story |
1976 |
1,585 |
1 Stories |
|