|
|
|
| Larry Stein Oklahoma County Assessor (405) 713-1200 - Public Access System |
|
|
|
|
|
|
| Real Property Display - Screen Produced 2/27/2026 9:08:24 PM | ||||
|---|---|---|---|---|
| Account: R171231290 | Type: Residential | Location: |
3115 N HAMMOND AVE |
|
| Building Name/Occupant: |
|
BETHANY |
||
| Owner Name 1: | IMHOFF LYNDA & RANDY REV TRUST |
Parcel PIN#: |
2881-17-123-1290 |
|
| Owner Name 2: | IMHOFF LYNDA & RANDY CO TRS | 1/4 section #: |
2881 |
|
| Owner Name 3: | Parent Acct: |
|
||
| Billing Address: | 3115 N HAMMOND AVE | Tax District: |
|
|
| City, State, Zip | BETHANY, OK 73008-4242 | School System: |
Putnam City #1 |
|
|
Country: (If noted) |
Land Size: |
0.1584 Acres |
||
|
Land Value: 24,150 |
|
|||
|
Sect 21-T12N-R4W Qtr NE |
BRENTMARK 4TH
Block
002
Lot
002
|
|||
| Full Legal Description: BRENTMARK 4TH 002 002 |
| Photo & Sketch (if available) | Comp Sales (ordered by relevancy) |
|
||||||||||||||||||
|
||||||||||||||||||||
| Value History (*The County Treasurer 405-713-1300 posts & collects actual tax amounts. Contact information HERE) | |||||||||||||
|---|---|---|---|---|---|---|---|---|---|---|---|---|---|
| Year | Market Value | Taxable Mkt Value | Gross Assessed | Exemption | Net Assessed | Millage | Est. Tax | Tax Savings | |||||
|
2025 |
190,500 |
169,744 |
18,671 |
0 |
18,671 |
122.14 |
$2,281 |
$279 |
|||||
|
2024 |
191,500 |
161,661 |
17,781 |
0 |
17,781 |
120.52 |
$2,143 |
$396 |
|||||
|
2023 |
184,500 |
153,963 |
16,935 |
0 |
16,935 |
123.06 |
$2,084 |
$413 |
|||||
|
2022 |
163,500 |
146,632 |
16,129 |
0 |
16,129 |
112.54 |
$1,815 |
$209 |
|||||
|
2021 |
142,500 |
139,650 |
15,361 |
0 |
15,361 |
112.07 |
$1,722 |
$35 |
|||||
| Property Account Status/Adjustments/Exemptions | ||
|---|---|---|
| Account # | Exemption Description | Amount |
|
R171231290 |
5% Capped Account |
0 |
| Property Deed Transaction History (Recorded in the County Clerk's Office) | |||||||
|---|---|---|---|---|---|---|---|
| Date | Type | Book | Page | Price | Grantor | Grantee | |
|
5/2/2014 |
|
Deeds |
$0 |
IMHOFF RANDY M & LYNDA |
IMHOFF LYNDA & RANDY REV TRUST |
||
|
1/30/2013 |
|
Deeds |
$0 |
IMHOFF RANDY M |
IMHOFF RANDY M & LYNDA |
||
|
1/16/1998 |
|
Historical |
$0 |
HARRIS LYNDA K |
IMHOFF RANDY M |
||
|
9/25/1996 |
|
Historical |
$0 |
HARRIS HAROLD H & LYNDA |
HARRIS LYNDA K |
||
|
7/1/1977 |
|
Historical |
$0 |
|
HARRIS HAROLD H & LYNDA |
||
| Last Mailed Notice of Value (N.O.V.) Information/History | ||||||||
|---|---|---|---|---|---|---|---|---|
| Year | Date | Market Value | Taxable Market Value | Gross Assessed | Exemption | Net Assessed | ||
|
2026 |
02/23/2026 |
187,500 |
178,231 |
19,604 |
0 |
19,604 |
||
|
2025 |
02/14/2025 |
190,500 |
169,744 |
18,671 |
0 |
18,671 |
||
|
2024 |
02/13/2024 |
191,500 |
161,661 |
17,781 |
0 |
17,781 |
||
|
2023 |
02/14/2023 |
184,500 |
153,963 |
16,935 |
0 |
16,935 |
||
|
2022 |
03/15/2022 |
163,500 |
146,632 |
16,129 |
0 |
16,129 |
||
| Property Building Permit History | |||||||||||
|---|---|---|---|---|---|---|---|---|---|---|---|
| Issued | Permit # | Provided by | Bldg # | Description | Est Construction Cost | Status | |||||
| No Building Permit records returned. | |||||||||||
| Click button on building number to access detailed information: | ||||||
|---|---|---|---|---|---|---|
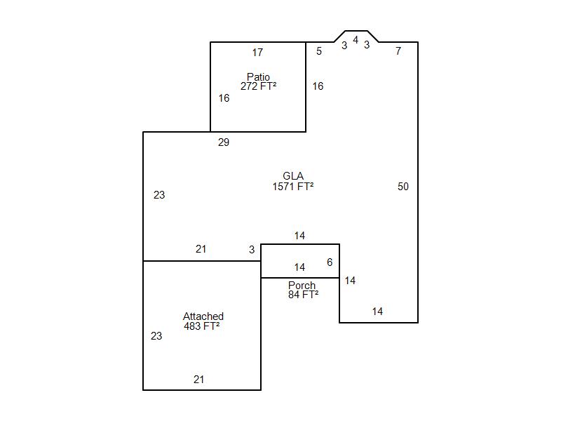
| Bldg # | Vacant/Improved Land | Bldg Description | Year Built | SqFt | # Stories | |
|
1 |
Improved |
Ranch 1 Story |
1977 |
1,571 |
1 Stories |
|