|
|
|
| Larry Stein Oklahoma County Assessor (405) 713-1200 - Public Access System |
|
|
|
|
|
|
| Real Property Display - Screen Produced 2/27/2026 9:08:25 PM | ||||
|---|---|---|---|---|
| Account: R171231300 | Type: Residential | Location: |
3117 N HAMMOND AVE |
|
| Building Name/Occupant: |
|
BETHANY |
||
| Owner Name 1: | PUGH WATERBURY AVIS D REV LIV TRUST |
Parcel PIN#: |
2881-17-123-1300 |
|
| Owner Name 2: | 1/4 section #: |
2881 |
||
| Owner Name 3: | Parent Acct: |
|
||
| Billing Address: | 3117 N HAMMOND AVE | Tax District: |
|
|
| City, State, Zip | BETHANY, OK 73008-4242 | School System: |
Putnam City #1 |
|
|
Country: (If noted) |
Land Size: |
0.1584 Acres |
||
|
Land Value: 24,150 |
|
|||
|
Sect 21-T12N-R4W Qtr NE |
BRENTMARK 4TH
Block
002
Lot
003
|
|||
| Full Legal Description: BRENTMARK 4TH 002 003 |
| Photo & Sketch (if available) | Comp Sales (ordered by relevancy) |
|
||||||||||||||||||
|
||||||||||||||||||||
| Value History (*The County Treasurer 405-713-1300 posts & collects actual tax amounts. Contact information HERE) | |||||||||||||
|---|---|---|---|---|---|---|---|---|---|---|---|---|---|
| Year | Market Value | Taxable Mkt Value | Gross Assessed | Exemption | Net Assessed | Millage | Est. Tax | Tax Savings | |||||
|
2025 |
176,500 |
136,122 |
14,973 |
1,000 |
13,973 |
122.14 |
$1,707 |
$665 |
|||||
|
2024 |
177,000 |
132,158 |
14,536 |
1,000 |
13,536 |
120.52 |
$1,632 |
$715 |
|||||
|
2023 |
182,000 |
128,309 |
14,113 |
1,000 |
13,113 |
123.06 |
$1,614 |
$850 |
|||||
|
2022 |
160,500 |
124,572 |
13,702 |
1,000 |
12,702 |
112.54 |
$1,430 |
$557 |
|||||
|
2021 |
139,000 |
120,944 |
13,303 |
1,000 |
12,303 |
112.07 |
$1,379 |
$335 |
|||||
| Property Account Status/Adjustments/Exemptions | ||
|---|---|---|
| Account # | Exemption Description | Amount |
|
R171231300 |
3% Cap Homestead |
0 |
|
R171231300 |
Homestead |
1,000 |
| Property Deed Transaction History (Recorded in the County Clerk's Office) | |||||||
|---|---|---|---|---|---|---|---|
| Date | Type | Book | Page | Price | Grantor | Grantee | |
|
10/26/2011 |
|
Deeds |
$94,500 |
CHENEY NOLA DEAN |
PUGH WATERBURY AVIS D REV LIV TRUST |
||
|
9/1/1982 |
|
Historical |
$0 |
|
CHENEY NOLA DEAN |
||
| Last Mailed Notice of Value (N.O.V.) Information/History | ||||||||
|---|---|---|---|---|---|---|---|---|
| Year | Date | Market Value | Taxable Market Value | Gross Assessed | Exemption | Net Assessed | ||
|
2026 |
02/23/2026 |
173,500 |
140,205 |
15,422 |
1,000 |
14,422 |
||
|
2025 |
02/14/2025 |
176,500 |
136,122 |
14,973 |
1,000 |
13,973 |
||
|
2024 |
02/13/2024 |
177,000 |
132,158 |
14,536 |
1,000 |
13,536 |
||
|
2023 |
02/14/2023 |
182,000 |
128,309 |
14,113 |
1,000 |
13,113 |
||
|
2022 |
03/15/2022 |
160,500 |
124,572 |
13,702 |
1,000 |
12,702 |
||
| Property Building Permit History | |||||||||||
|---|---|---|---|---|---|---|---|---|---|---|---|
| Issued | Permit # | Provided by | Bldg # | Description | Est Construction Cost | Status | |||||
| No Building Permit records returned. | |||||||||||
| Click button on building number to access detailed information: | ||||||
|---|---|---|---|---|---|---|
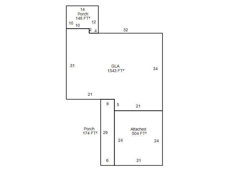
| Bldg # | Vacant/Improved Land | Bldg Description | Year Built | SqFt | # Stories | |
|
1 |
Improved |
Ranch 1 Story |
1976 |
1,343 |
1 Stories |
|