|
|
|
| Larry Stein Oklahoma County Assessor (405) 713-1200 - Public Access System |
|
|
|
|
|
|
| Real Property Display - Screen Produced 3/22/2026 2:02:44 PM | ||||
|---|---|---|---|---|
| Account: R172741350 | Type: Residential | Location: |
3603 N REDMOND AVE |
|
| Building Name/Occupant: |
|
BETHANY |
||
| Owner Name 1: | BABCOCK EDWARD WILLIAM & STARLET SEIMONE |
Parcel PIN#: |
2881-17-274-1350 |
|
| Owner Name 2: | 1/4 section #: |
2881 |
||
| Owner Name 3: | Parent Acct: |
|
||
| Billing Address: | 9604 BLUE BONNET PL | Tax District: |
|
|
| City, State, Zip | OKLAHOMA CITY, OK 73128-4810 | School System: |
Putnam City #1 |
|
|
Country: (If noted) |
Land Size: |
0.1109 Acres |
||
|
Land Value: 16,905 |
|
|||
|
Sect 21-T12N-R4W Qtr NE |
FRUITLAND GARDEN ADD
Block
001
Lot
000
|
|||
| Full Legal Description: FRUITLAND GARDEN ADD 001 000 N 1/2 OF LOTS 26 & 27 |
| Photo & Sketch (if available) | Comp Sales (ordered by relevancy) |
|
||||||||||||||||||
|
||||||||||||||||||||
| Value History (*The County Treasurer 405-713-1300 posts & collects actual tax amounts. Contact information HERE) | |||||||||||||
|---|---|---|---|---|---|---|---|---|---|---|---|---|---|
| Year | Market Value | Taxable Mkt Value | Gross Assessed | Exemption | Net Assessed | Millage | Est. Tax | Tax Savings | |||||
|
2025 |
122,500 |
88,422 |
9,726 |
0 |
9,726 |
122.14 |
$1,188 |
$458 |
|||||
|
2024 |
116,500 |
84,212 |
9,263 |
0 |
9,263 |
120.52 |
$1,116 |
$428 |
|||||
|
2023 |
107,000 |
80,202 |
8,822 |
0 |
8,822 |
123.06 |
$1,086 |
$363 |
|||||
|
2022 |
92,000 |
76,383 |
8,402 |
0 |
8,402 |
112.54 |
$946 |
$193 |
|||||
|
2021 |
77,000 |
72,746 |
8,002 |
0 |
8,002 |
112.07 |
$897 |
$52 |
|||||
| Property Account Status/Adjustments/Exemptions | ||
|---|---|---|
| Account # | Exemption Description | Amount |
|
R172741350 |
5% Capped Account |
0 |
| Property Deed Transaction History (Recorded in the County Clerk's Office) | ||||||||||
|---|---|---|---|---|---|---|---|---|---|---|
| Date | Type | Book | Page | Price | Grantor | Grantee | ||||
|
3/31/2000 |
|
Deeds |
$0 |
MARTINEZ EVELYN M NICHOLS ADDIE JEAN |
BABCOCK EDWARD WILLIAM & STARLET SEIMONE |
|||||
|
8/31/1999 |
|
Deeds |
$2,000 |
NICHOLS TROY L NICHOLS FRANK L |
MARTINEZ EVELYN M |
|||||
|
4/10/1995 |
|
Historical |
$0 |
NICHOLS FRANK MARTINEZ EVELYN M |
MARTINEZ EVELYN M NICHOLS ADDIE JEAN |
|||||
|
11/7/1989 |
|
Historical |
$0 |
SEALS BRENDA |
NICHOLS TROY L |
|||||
|
3/30/1989 |
|
Historical |
$28,000 |
PAQUE MICHEL J |
SEALS BRENDA |
|||||
| Last Mailed Notice of Value (N.O.V.) Information/History | ||||||||
|---|---|---|---|---|---|---|---|---|
| Year | Date | Market Value | Taxable Market Value | Gross Assessed | Exemption | Net Assessed | ||
|
2026 |
02/23/2026 |
123,500 |
92,843 |
10,212 |
0 |
10,212 |
||
|
2025 |
02/14/2025 |
122,500 |
88,422 |
9,726 |
0 |
9,726 |
||
|
2024 |
02/13/2024 |
116,500 |
84,212 |
9,263 |
0 |
9,263 |
||
|
2023 |
02/14/2023 |
107,000 |
80,202 |
8,822 |
0 |
8,822 |
||
|
2022 |
03/15/2022 |
92,000 |
76,383 |
8,402 |
0 |
8,402 |
||
| Property Building Permit History | |||||||||||
|---|---|---|---|---|---|---|---|---|---|---|---|
| Issued | Permit # | Provided by | Bldg # | Description | Est Construction Cost | Status | |||||
| No Building Permit records returned. | |||||||||||
| Click button on building number to access detailed information: | ||||||
|---|---|---|---|---|---|---|
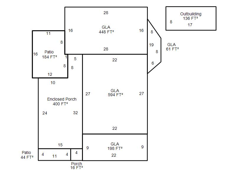
| Bldg # | Vacant/Improved Land | Bldg Description | Year Built | SqFt | # Stories | |
|
1 |
Improved |
Ranch 1 Story |
1928 |
1,301 |
1 Stories |
|