|
|
|
| Larry Stein Oklahoma County Assessor (405) 713-1200 - Public Access System |
|
|
|
|
|
|
| Real Property Display - Screen Produced 3/22/2026 2:02:45 PM | ||||
|---|---|---|---|---|
| Account: R172744315 | Type: Residential | Location: |
6504 NW 34TH ST |
|
| Building Name/Occupant: |
|
BETHANY |
||
| Owner Name 1: | ALVAREZ WILMAR RONY VICENTE |
Parcel PIN#: |
2881-17-274-4315 |
|
| Owner Name 2: | 1/4 section #: |
2881 |
||
| Owner Name 3: | Parent Acct: |
|
||
| Billing Address: | 6504 NW 34TH ST | Tax District: |
|
|
| City, State, Zip | BETHANY, OK 73008-4101 | School System: |
Putnam City #1 |
|
|
Country: (If noted) |
Land Size: |
0.8100 Acres |
||
|
Land Value: 25,033 |
|
|||
|
Sect 21-T12N-R4W Qtr NE |
FRUITLAND GARDEN ADD
Block
009
Lot
000
|
|||
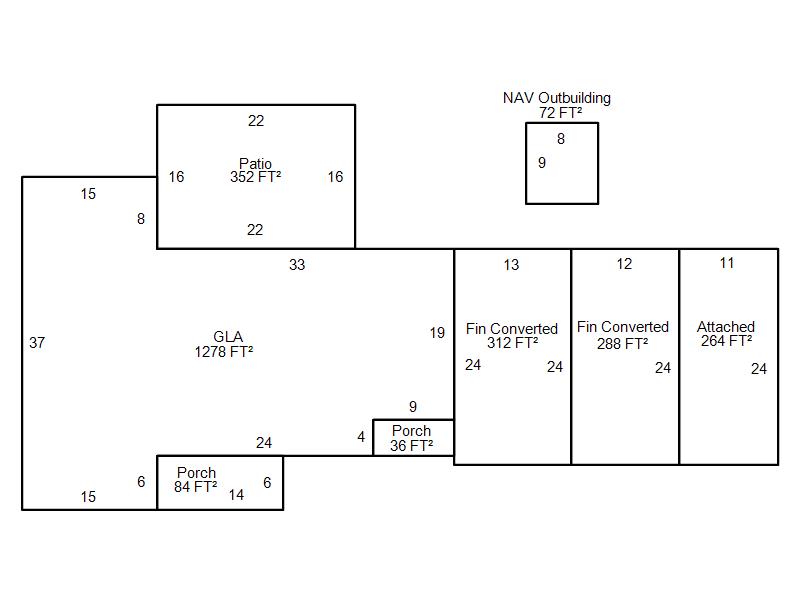
| Full Legal Description: FRUITLAND GARDEN ADD 009 000 E118FT OF W268FT & E20FT OF W150FT OF N105FT |
| Photo & Sketch (if available) | Comp Sales (ordered by relevancy) |
|
||||||||||||||||||
|
||||||||||||||||||||
| Value History (*The County Treasurer 405-713-1300 posts & collects actual tax amounts. Contact information HERE) | |||||||||||||
|---|---|---|---|---|---|---|---|---|---|---|---|---|---|
| Year | Market Value | Taxable Mkt Value | Gross Assessed | Exemption | Net Assessed | Millage | Est. Tax | Tax Savings | |||||
|
2025 |
180,500 |
180,500 |
19,855 |
0 |
19,855 |
122.14 |
$2,425 |
$0 |
|||||
|
2024 |
176,500 |
176,500 |
19,415 |
0 |
19,415 |
120.52 |
$2,340 |
$0 |
|||||
|
2023 |
165,500 |
71,769 |
7,893 |
0 |
7,893 |
123.06 |
$972 |
$1,269 |
|||||
|
2022 |
141,500 |
68,352 |
7,518 |
2,000 |
5,518 |
112.54 |
$621 |
$1,131 |
|||||
|
2021 |
120,500 |
68,352 |
7,518 |
2,000 |
5,518 |
112.07 |
$618 |
$867 |
|||||
| Property Account Status/Adjustments/Exemptions | ||
|---|---|---|
| Account # | Exemption Description | Amount |
|
R172744315 |
5% Capped Account |
0 |
| Property Deed Transaction History (Recorded in the County Clerk's Office) | |||||||
|---|---|---|---|---|---|---|---|
| Date | Type | Book | Page | Price | Grantor | Grantee | |
|
8/29/2023 |
|
Deeds |
$80,000 |
BLALOCK CLIFFORD RAY EST |
ALVAREZ WILMAR RONY VICENTE |
||
|
8/29/2023 |
|
Deeds |
$80,000 |
BLALOCK BILLY MACK |
ALVAREZ WILMAR RONY VICENTE |
||
|
2/16/2018 |
|
Hmstd Off & |
$0 |
BLALOCK MARGARET |
BLALOCK BILLY MACK |
||
|
11/14/1989 |
|
Historical |
$0 |
BLALOCK BILLY M & MARGARET |
BLALOCK MARGARET |
||
|
11/11/1911 |
|
Historical |
$0 |
|
BLALOCK BILLY M & MARGARET |
||
| Last Mailed Notice of Value (N.O.V.) Information/History | ||||||||
|---|---|---|---|---|---|---|---|---|
| Year | Date | Market Value | Taxable Market Value | Gross Assessed | Exemption | Net Assessed | ||
|
2026 |
02/23/2026 |
181,500 |
181,500 |
19,965 |
0 |
19,965 |
||
|
2025 |
02/14/2025 |
180,500 |
180,500 |
19,855 |
0 |
19,855 |
||
|
2024 |
02/13/2024 |
176,500 |
176,500 |
19,415 |
0 |
19,415 |
||
|
2023 |
02/14/2023 |
165,500 |
71,769 |
7,893 |
0 |
7,893 |
||
|
2022 |
03/15/2022 |
141,500 |
68,352 |
7,518 |
2,000 |
5,518 |
||
| Property Building Permit History | |||||||||||
|---|---|---|---|---|---|---|---|---|---|---|---|
| Issued | Permit # | Provided by | Bldg # | Description | Est Construction Cost | Status | |||||
| No Building Permit records returned. | |||||||||||
| Click button on building number to access detailed information: | ||||||
|---|---|---|---|---|---|---|
| Bldg # | Vacant/Improved Land | Bldg Description | Year Built | SqFt | # Stories | |
|
1 |
Improved |
Ranch 1 Story |
1949 |
1,278 |
1 Stories |
|