|
|
|
| Larry Stein Oklahoma County Assessor (405) 713-1200 - Public Access System |
|
|
|
|
|
|
| Real Property Display - Screen Produced 3/22/2026 1:57:44 PM | ||||
|---|---|---|---|---|
| Account: R172746637 | Type: Residential | Location: |
6500 NW 32ND ST |
|
| Building Name/Occupant: |
|
BETHANY |
||
| Owner Name 1: | UNITY PROPERTIES LLC |
Parcel PIN#: |
2881-17-274-6637 |
|
| Owner Name 2: | 1/4 section #: |
2881 |
||
| Owner Name 3: | Parent Acct: |
|
||
| Billing Address: | PO BOX 32501 | Tax District: |
|
|
| City, State, Zip | OKLAHOMA CITY, OK 73123 | School System: |
Putnam City #1 |
|
|
Country: (If noted) |
Land Size: |
0.1722 Acres |
||
|
Land Value: 26,250 |
|
|||
|
Sect 21-T12N-R4W Qtr NE |
FRUITLAND GARDEN ADD
Block
017
Lot
000
|
|||
| Full Legal Description: FRUITLAND GARDEN ADD 017 000 W50FT OF E404.95FT OF N 1/2 |
| Photo & Sketch (if available) | Comp Sales (ordered by relevancy) |
|
||||||||||||||||||
|
||||||||||||||||||||
| Value History (*The County Treasurer 405-713-1300 posts & collects actual tax amounts. Contact information HERE) | |||||||||||||
|---|---|---|---|---|---|---|---|---|---|---|---|---|---|
| Year | Market Value | Taxable Mkt Value | Gross Assessed | Exemption | Net Assessed | Millage | Est. Tax | Tax Savings | |||||
|
2025 |
109,000 |
91,768 |
10,093 |
0 |
10,093 |
122.14 |
$1,233 |
$232 |
|||||
|
2024 |
104,500 |
87,399 |
9,613 |
0 |
9,613 |
120.52 |
$1,159 |
$227 |
|||||
|
2023 |
102,000 |
83,238 |
9,156 |
0 |
9,156 |
123.06 |
$1,127 |
$254 |
|||||
|
2022 |
89,000 |
79,275 |
8,720 |
0 |
8,720 |
112.54 |
$981 |
$120 |
|||||
|
2021 |
75,500 |
75,500 |
8,305 |
0 |
8,305 |
112.07 |
$931 |
$0 |
|||||
| Property Account Status/Adjustments/Exemptions | ||
|---|---|---|
| Account # | Exemption Description | Amount |
|
R172746637 |
5% Capped Account |
0 |
| Property Deed Transaction History (Recorded in the County Clerk's Office) | ||||||||||
|---|---|---|---|---|---|---|---|---|---|---|
| Date | Type | Book | Page | Price | Grantor | Grantee | ||||
|
1/24/2020 |
|
Deeds |
$40,500 |
WOOD BARRY |
UNITY PROPERTIES LLC |
|||||
|
1/20/2020 |
|
Deeds |
$0 |
WOOD ROBERT & DELORES TRUST |
WOOD BARRY |
|||||
|
8/15/2005 |
|
Hmstd Off & |
$0 |
WOOD BARRY L SUCCESSOR TRS WOOD ROBERT & DOLORES TRUST |
WOOD BARRY |
|||||
|
9/17/2004 |
|
Hmstd Off & |
$0 |
WOOD ROBERT & DOLORES TRS WOOD ROBERT & DOLORES TRUST |
WOOD BARRY L SUCCESSOR TRS WOOD ROBERT & DOLORES TRUST |
|||||
|
11/22/1995 |
|
Historical |
$0 |
WOOD ROBERT D & DOLORES I |
WOOD ROBERT D & DOLORES I TRS |
|||||
| Last Mailed Notice of Value (N.O.V.) Information/History | ||||||||
|---|---|---|---|---|---|---|---|---|
| Year | Date | Market Value | Taxable Market Value | Gross Assessed | Exemption | Net Assessed | ||
|
2026 |
02/23/2026 |
110,000 |
96,356 |
10,598 |
0 |
10,598 |
||
|
2025 |
02/14/2025 |
109,000 |
91,768 |
10,093 |
0 |
10,093 |
||
|
2024 |
02/13/2024 |
104,500 |
87,399 |
9,613 |
0 |
9,613 |
||
|
2023 |
02/14/2023 |
102,000 |
83,238 |
9,156 |
0 |
9,156 |
||
|
2022 |
03/15/2022 |
89,000 |
79,275 |
8,720 |
0 |
8,720 |
||
| Property Building Permit History | |||||||||||
|---|---|---|---|---|---|---|---|---|---|---|---|
| Issued | Permit # | Provided by | Bldg # | Description | Est Construction Cost | Status | |||||
| No Building Permit records returned. | |||||||||||
| Click button on building number to access detailed information: | ||||||
|---|---|---|---|---|---|---|
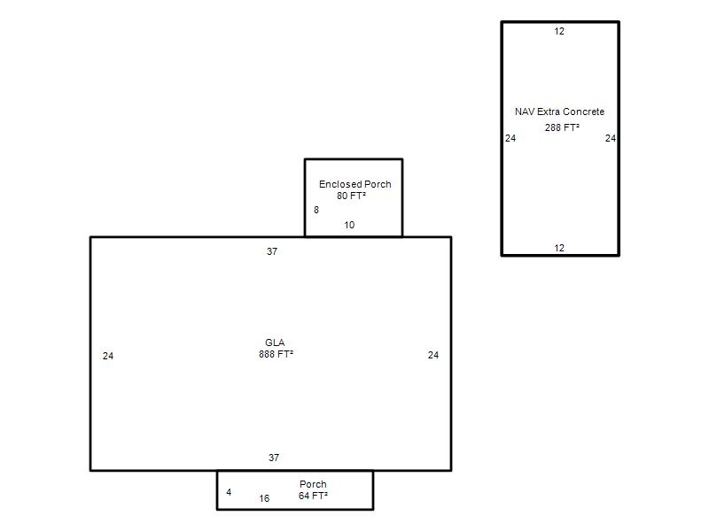
| Bldg # | Vacant/Improved Land | Bldg Description | Year Built | SqFt | # Stories | |
|
1 |
Improved |
Ranch 1 Story |
1952 |
888 |
1 Stories |
|