|
|
|
| Larry Stein Oklahoma County Assessor (405) 713-1200 - Public Access System |
|
|
|
|
|
|
| Real Property Display - Screen Produced 3/22/2026 1:59:08 PM | ||||
|---|---|---|---|---|
| Account: R172747950 | Type: Residential | Location: |
6417 NW 31ST ST |
|
| Building Name/Occupant: |
|
BETHANY |
||
| Owner Name 1: | MILLER JAMES & JANICE |
Parcel PIN#: |
2881-17-274-7950 |
|
| Owner Name 2: | 1/4 section #: |
2881 |
||
| Owner Name 3: | Parent Acct: |
|
||
| Billing Address: | 6417 NW 31ST ST | Tax District: |
|
|
| City, State, Zip | BETHANY, OK 73008-4111 | School System: |
Putnam City #1 |
|
|
Country: (If noted) |
Land Size: |
0.6887 Acres |
||
|
Land Value: 99,750 |
|
|||
|
Sect 21-T12N-R4W Qtr NE |
FRUITLAND GARDEN ADD
Block
024
Lot
000
|
|||
| Full Legal Description: FRUITLAND GARDEN ADD 024 000 E100FT OF W475FT |
| Photo & Sketch (if available) | Comp Sales (ordered by relevancy) |
|
||||||||||||||||||
|
||||||||||||||||||||
| Value History (*The County Treasurer 405-713-1300 posts & collects actual tax amounts. Contact information HERE) | |||||||||||||
|---|---|---|---|---|---|---|---|---|---|---|---|---|---|
| Year | Market Value | Taxable Mkt Value | Gross Assessed | Exemption | Net Assessed | Millage | Est. Tax | Tax Savings | |||||
|
2025 |
178,999 |
135,732 |
14,929 |
1,000 |
13,929 |
122.14 |
$1,701 |
$703 |
|||||
|
2024 |
160,355 |
131,779 |
14,495 |
1,000 |
13,495 |
120.52 |
$1,627 |
$499 |
|||||
|
2023 |
145,273 |
127,941 |
14,072 |
1,000 |
13,072 |
123.06 |
$1,609 |
$358 |
|||||
|
2022 |
144,444 |
124,215 |
13,662 |
1,000 |
12,662 |
112.54 |
$1,425 |
$363 |
|||||
|
2021 |
120,598 |
120,598 |
13,265 |
1,000 |
12,265 |
112.07 |
$1,375 |
$112 |
|||||
| Property Account Status/Adjustments/Exemptions | ||
|---|---|---|
| Account # | Exemption Description | Amount |
|
R172747950 |
Homestead |
1,000 |
|
R172747950 |
3% Cap Homestead |
0 |
| Property Deed Transaction History (Recorded in the County Clerk's Office) | |||||||
|---|---|---|---|---|---|---|---|
| Date | Type | Book | Page | Price | Grantor | Grantee | |
|
3/5/2001 |
|
Other |
$0 |
MILLER SHELTON B JR & BARBARA |
MILLER JAMES & JANICE |
||
|
12/7/1992 |
|
Historical |
$81,500 |
JAMES SHELTON M & CAROLYN |
MILLER SHELTON B JR & BARBARA |
||
|
11/11/1911 |
|
Historical |
$0 |
|
JAMES SHELTON M & CAROLYN |
||
| Last Mailed Notice of Value (N.O.V.) Information/History | ||||||||
|---|---|---|---|---|---|---|---|---|
| Year | Date | Market Value | Taxable Market Value | Gross Assessed | Exemption | Net Assessed | ||
|
2026 |
02/23/2026 |
164,500 |
139,803 |
15,377 |
1,000 |
14,377 |
||
|
2025 |
02/14/2025 |
178,999 |
135,732 |
14,929 |
1,000 |
13,929 |
||
|
2024 |
02/13/2024 |
160,355 |
131,779 |
14,495 |
1,000 |
13,495 |
||
|
2023 |
02/14/2023 |
145,273 |
127,941 |
14,072 |
1,000 |
13,072 |
||
|
2022 |
03/15/2022 |
144,444 |
124,215 |
13,662 |
1,000 |
12,662 |
||
| Property Building Permit History | |||||||||||
|---|---|---|---|---|---|---|---|---|---|---|---|
| Issued | Permit # | Provided by | Bldg # | Description | Est Construction Cost | Status | |||||
| No Building Permit records returned. | |||||||||||
| Click button on building number to access detailed information: | ||||||
|---|---|---|---|---|---|---|
| Bldg # | Vacant/Improved Land | Bldg Description | Year Built | SqFt | # Stories | |
|
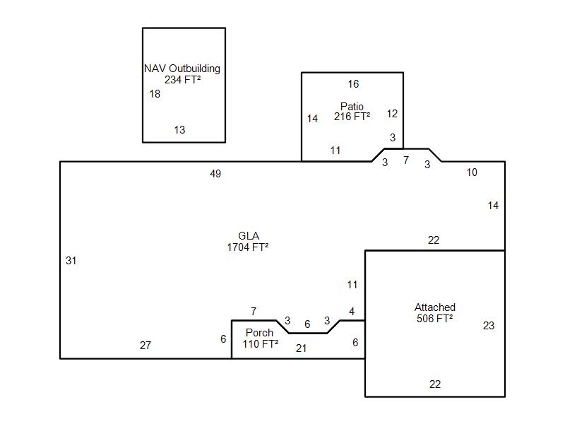
1 |
Improved |
Ranch 1 Story |
1977 |
1,704 |
1 Stories |
|