|
|
|
| Larry Stein Oklahoma County Assessor (405) 713-1200 - Public Access System |
|
|
|
|
|
|
| Real Property Display - Screen Produced 3/22/2026 2:03:26 PM | ||||
|---|---|---|---|---|
| Account: R172748840 | Type: Residential | Location: |
5915 NW 30TH ST |
|
| Building Name/Occupant: |
|
BETHANY |
||
| Owner Name 1: | VILLATORO LOPEZ HEYDI AZUCENA |
Parcel PIN#: |
2881-17-274-8840 |
|
| Owner Name 2: | 1/4 section #: |
2881 |
||
| Owner Name 3: | Parent Acct: |
|
||
| Billing Address: | 5915 NW 30TH ST | Tax District: |
|
|
| City, State, Zip | BETHANY, OK 73008-4259 | School System: |
Putnam City #1 |
|
|
Country: (If noted) |
Land Size: |
0.4050 Acres |
||
|
Land Value: 61,740 |
|
|||
|
Sect 21-T12N-R4W Qtr NE |
FRUITLAND GARDEN ADD
Block
029
Lot
000
|
|||
| Full Legal Description: FRUITLAND GARDEN ADD 029 000 W120FT OF E180FT OF W300FT OF S147.63FT |
| Photo & Sketch (if available) | Comp Sales (ordered by relevancy) |
|
||||||||||||||||||
|
||||||||||||||||||||
| Value History (*The County Treasurer 405-713-1300 posts & collects actual tax amounts. Contact information HERE) | |||||||||||||
|---|---|---|---|---|---|---|---|---|---|---|---|---|---|
| Year | Market Value | Taxable Mkt Value | Gross Assessed | Exemption | Net Assessed | Millage | Est. Tax | Tax Savings | |||||
|
2025 |
218,000 |
88,034 |
9,683 |
1,000 |
8,683 |
122.14 |
$1,061 |
$1,868 |
|||||
|
2024 |
216,500 |
88,034 |
9,683 |
1,000 |
8,683 |
120.52 |
$1,047 |
$1,824 |
|||||
|
2023 |
204,500 |
88,034 |
9,683 |
1,000 |
8,683 |
123.06 |
$1,069 |
$1,700 |
|||||
|
2022 |
178,500 |
88,034 |
9,683 |
1,000 |
8,683 |
112.54 |
$977 |
$1,232 |
|||||
|
2021 |
155,500 |
88,034 |
9,683 |
1,000 |
8,683 |
112.07 |
$973 |
$944 |
|||||
| Property Account Status/Adjustments/Exemptions | ||||||
|---|---|---|---|---|---|---|
| Account # | Exemption Description | Amount | ||||
| No adjustment/exemption records returned. | ||||||
| Property Deed Transaction History (Recorded in the County Clerk's Office) | |||||||
|---|---|---|---|---|---|---|---|
| Date | Type | Book | Page | Price | Grantor | Grantee | |
|
10/1/2025 |
|
Deeds |
$195,500 |
OLSON HELEN G |
VILLATORO LOPEZ HEYDI AZUCENA |
||
|
3/26/2008 |
|
Deeds |
$0 |
OLSON LEWIS A & HELEN G |
OLSON HELEN G |
||
|
11/1/1975 |
|
Historical |
$0 |
|
OLSON LEWIS A & HELEN G |
||
| Last Mailed Notice of Value (N.O.V.) Information/History | ||||||||
|---|---|---|---|---|---|---|---|---|
| Year | Date | Market Value | Taxable Market Value | Gross Assessed | Exemption | Net Assessed | ||
|
2026 |
02/23/2026 |
212,500 |
212,500 |
23,375 |
0 |
23,375 |
||
|
2025 |
02/14/2025 |
218,000 |
88,034 |
9,683 |
1,000 |
8,683 |
||
|
2024 |
02/13/2024 |
216,500 |
88,034 |
9,683 |
1,000 |
8,683 |
||
|
2023 |
02/14/2023 |
204,500 |
88,034 |
9,683 |
1,000 |
8,683 |
||
|
2022 |
03/15/2022 |
178,500 |
88,034 |
9,683 |
1,000 |
8,683 |
||
| Property Building Permit History | ||||||
|---|---|---|---|---|---|---|
| Issued | Permit # | Provided by | Bldg # | Description | Est Construction Cost | Status |
|
12/8/1999 |
10255608 |
BETHANY |
1 |
Remodeled |
1,000 |
Inactive |
| Click button on building number to access detailed information: | ||||||
|---|---|---|---|---|---|---|
| Bldg # | Vacant/Improved Land | Bldg Description | Year Built | SqFt | # Stories | |
|
1 |
Improved |
Ranch 1 Story |
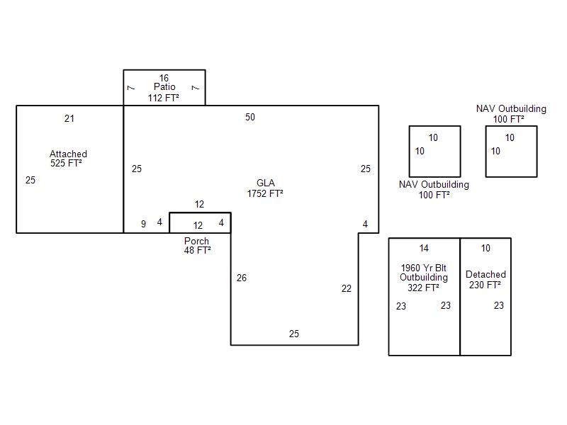
1960 |
1,752 |
1 Stories |
|