|
|
|
| Larry Stein Oklahoma County Assessor (405) 713-1200 - Public Access System |
|
|
|
|
|
|
| Real Property Display - Screen Produced 3/13/2026 1:36:18 PM | ||||
|---|---|---|---|---|
| Account: R153271230 | Type: Residential | Location: |
4929 MICHAEL PL |
|
| Building Name/Occupant: |
|
DEL CITY |
||
| Owner Name 1: | RUSK MITCHELL A & JENNIFER L |
Parcel PIN#: |
1417-15-327-1230 |
|
| Owner Name 2: | 1/4 section #: |
1417 |
||
| Owner Name 3: | Parent Acct: |
|
||
| Billing Address: | 3517 HUNTSMAN CT | Tax District: |
|
|
| City, State, Zip | EDMOND, OK 73003 | School System: |
Mid-Del #52 |
|
|
Country: (If noted) |
Land Size: |
0.1625 Acres |
||
|
Land Value: 24,780 |
|
|||
|
Sect 5-T11N-R2W Qtr NE |
DEL CREST HTS 4TH
Block
002
Lot
016
|
|||
| Full Legal Description: DEL CREST HTS 4TH 002 016 |
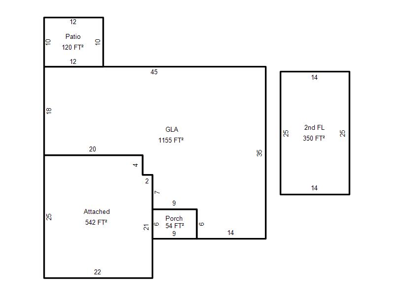
| Photo & Sketch (if available) | Comp Sales (ordered by relevancy) |
|
||||||||||||||||||
|
||||||||||||||||||||
| Value History (*The County Treasurer 405-713-1300 posts & collects actual tax amounts. Contact information HERE) | |||||||||||||
|---|---|---|---|---|---|---|---|---|---|---|---|---|---|
| Year | Market Value | Taxable Mkt Value | Gross Assessed | Exemption | Net Assessed | Millage | Est. Tax | Tax Savings | |||||
|
2025 |
164,000 |
111,352 |
12,248 |
0 |
12,248 |
114.72 |
$1,405 |
$664 |
|||||
|
2024 |
153,500 |
106,050 |
11,665 |
0 |
11,665 |
117.21 |
$1,367 |
$612 |
|||||
|
2023 |
101,000 |
101,000 |
11,110 |
0 |
11,110 |
112.46 |
$1,249 |
$0 |
|||||
|
2022 |
101,000 |
101,000 |
11,110 |
0 |
11,110 |
110.76 |
$1,231 |
$0 |
|||||
|
2021 |
108,000 |
102,375 |
11,261 |
0 |
11,261 |
114.70 |
$1,292 |
$71 |
|||||
| Property Account Status/Adjustments/Exemptions | ||
|---|---|---|
| Account # | Exemption Description | Amount |
|
R153271230 |
5% Capped Account |
0 |
| Property Deed Transaction History (Recorded in the County Clerk's Office) | |||||||
|---|---|---|---|---|---|---|---|
| Date | Type | Book | Page | Price | Grantor | Grantee | |
|
2/26/2021 |
|
Deeds |
$98,000 |
PARKER MARGARET L TRS |
RUSK MITCHELL A & JENNIFER L |
||
|
2/22/2007 |
|
Deeds |
$99,000 |
HENTHORN VIRGINIA & R E SR TRS HENTHORN VIRGINIA M REV TRUST |
PARKER MARGARET L TRS |
||
|
11/1/1995 |
|
Historical |
$0 |
HENTHORN ROBT E & VIRGINIA |
HENTHORN VIRGINIA & R E SR TRS |
||
|
11/11/1911 |
|
Historical |
$0 |
|
HENTHORN ROBT E & VIRGINIA |
||
| Last Mailed Notice of Value (N.O.V.) Information/History | ||||||||
|---|---|---|---|---|---|---|---|---|
| Year | Date | Market Value | Taxable Market Value | Gross Assessed | Exemption | Net Assessed | ||
|
2026 |
02/06/2026 |
164,500 |
116,919 |
12,860 |
0 |
12,860 |
||
|
2025 |
01/31/2025 |
164,000 |
111,352 |
12,248 |
0 |
12,248 |
||
|
2024 |
01/22/2024 |
153,500 |
106,050 |
11,665 |
0 |
11,665 |
||
|
2021 |
02/24/2021 |
108,000 |
102,375 |
11,261 |
0 |
11,261 |
||
|
2021 |
04/09/2021 |
108,000 |
102,375 |
11,261 |
0 |
11,261 |
||
| Property Building Permit History | |||||||||||
|---|---|---|---|---|---|---|---|---|---|---|---|
| Issued | Permit # | Provided by | Bldg # | Description | Est Construction Cost | Status | |||||
| No Building Permit records returned. | |||||||||||
| Click button on building number to access detailed information: | ||||||
|---|---|---|---|---|---|---|
| Bldg # | Vacant/Improved Land | Bldg Description | Year Built | SqFt | # Stories | |
|
1 |
Improved |
1½ Story Fin |
1965 |
1,505 |
1.5 Stories |
|