|
|
|
| Larry Stein Oklahoma County Assessor (405) 713-1200 - Public Access System |
|
|
|
|
|
|
| Real Property Display - Screen Produced 3/26/2026 3:52:16 AM | ||||
|---|---|---|---|---|
| Account: R188951400 | Type: Residential | Location: |
6208 NW 35TH ST |
|
| Building Name/Occupant: |
|
WARR ACRES |
||
| Owner Name 1: | OAK RIDGE CAPITAL LLC |
Parcel PIN#: |
2881-18-895-1400 |
|
| Owner Name 2: | 1/4 section #: |
2881 |
||
| Owner Name 3: | Parent Acct: |
|
||
| Billing Address: | 6208 NW 35TH ST | Tax District: |
|
|
| City, State, Zip | BETHANY, OK 73008 | School System: |
Putnam City #1 |
|
|
Country: (If noted) |
Land Size: |
0.1492 Acres |
||
|
Land Value: 19,825 |
|
|||
|
Sect 21-T12N-R4W Qtr NE |
COOLEYS SUB ADDITION
Block
002
Lot
003
|
|||
| Full Legal Description: COOLEYS SUB ADDITION 002 003 |
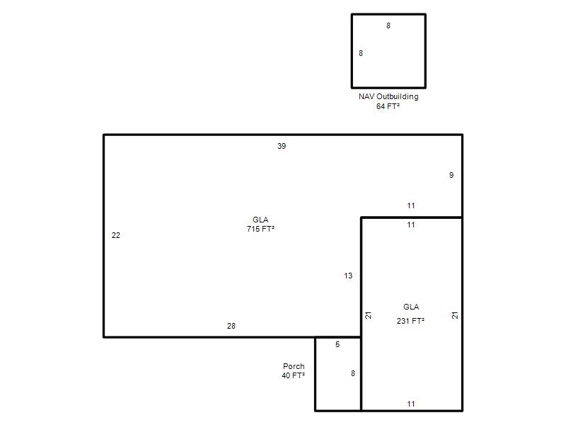
| Photo & Sketch (if available) | Comp Sales (ordered by relevancy) |
|
||||||||||||||||||
|
||||||||||||||||||||
| Value History (*The County Treasurer 405-713-1300 posts & collects actual tax amounts. Contact information HERE) | |||||||||||||
|---|---|---|---|---|---|---|---|---|---|---|---|---|---|
| Year | Market Value | Taxable Mkt Value | Gross Assessed | Exemption | Net Assessed | Millage | Est. Tax | Tax Savings | |||||
| No PropertyValuation records returned. | |||||||||||||
| Property Account Status/Adjustments/Exemptions | ||
|---|---|---|
| Account # | Exemption Description | Amount |
|
R188951400 |
5% Capped Account |
0 |
| Property Deed Transaction History (Recorded in the County Clerk's Office) | |||||||
|---|---|---|---|---|---|---|---|
| Date | Type | Book | Page | Price | Grantor | Grantee | |
|
2/18/2022 |
|
Hmstd Off & |
$0 |
WILLIAMS JACOB D & SHELBY G |
OAK RIDGE CAPITAL LLC |
||
|
9/2/2021 |
|
Deeds |
$99,000 |
PRICE SHARON L CO TRS ETAL |
WILLIAMS JACOB D & SHELBY G |
||
|
3/14/2019 |
|
Deeds |
$0 |
PRICE JERRY M & SHARON L |
PRICE SHARON L |
||
|
3/14/2019 |
|
Deeds |
$0 |
PRICE SHARON L |
PRICE SHARON L CO TRS ETAL |
||
|
11/11/1911 |
|
Historical |
$0 |
|
PRICE JERRY M & SHARON L |
||
| Last Mailed Notice of Value (N.O.V.) Information/History | ||||||||
|---|---|---|---|---|---|---|---|---|
| Year | Date | Market Value | Taxable Market Value | Gross Assessed | Exemption | Net Assessed | ||
| No Notice of Value N.O.V. records returned. | ||||||||
| Property Building Permit History | ||||||
|---|---|---|---|---|---|---|
| Issued | Permit # | Provided by | Bldg # | Description | Est Construction Cost | Status |
|
3/30/1999 |
10260942 |
WARR ACRES |
1 |
Storage Buil |
1,000 |
Inactive |
| Click button on building number to access detailed information: | ||||||
|---|---|---|---|---|---|---|
| Bldg # | Vacant/Improved Land | Bldg Description | Year Built | SqFt | # Stories | |
|
1 |
Improved |
Ranch 1 Story |
1958 |
946 |
1 Stories |
|