|
|
|
| Larry Stein Oklahoma County Assessor (405) 713-1200 - Public Access System |
|
|
|
|
|
|
| Real Property Display - Screen Produced 2/28/2026 12:43:50 AM | ||||
|---|---|---|---|---|
| Account: R144821005 | Type: Residential | Location: |
2620 N PENIEL AVE |
|
| Building Name/Occupant: |
|
OKLAHOMA CITY |
||
| Owner Name 1: | OAKLEY BRYAN P |
Parcel PIN#: |
2882-14-482-1005 |
|
| Owner Name 2: | 1/4 section #: |
2882 |
||
| Owner Name 3: | Parent Acct: |
|
||
| Billing Address: | PO BOX 101 | Tax District: |
|
|
| City, State, Zip | HERMOSA BEACH, CA 90254-0101 | School System: |
Putnam City #1 |
|
|
Country: (If noted) |
Land Size: |
0.2000 Acres |
||
|
Land Value: 34,840 |
|
|||
|
Sect 21-T12N-R4W Qtr SE |
TANGLEWOOD HILLS 4TH
Block
010
Lot
001
|
|||
| Full Legal Description: TANGLEWOOD HILLS 4TH 010 001 |
| Photo & Sketch (if available) | Comp Sales (ordered by relevancy) |
|
||||||||||||||||||
|
||||||||||||||||||||
| Value History (*The County Treasurer 405-713-1300 posts & collects actual tax amounts. Contact information HERE) | |||||||||||||
|---|---|---|---|---|---|---|---|---|---|---|---|---|---|
| Year | Market Value | Taxable Mkt Value | Gross Assessed | Exemption | Net Assessed | Millage | Est. Tax | Tax Savings | |||||
|
2025 |
177,500 |
140,389 |
15,442 |
0 |
15,442 |
123.17 |
$1,902 |
$503 |
|||||
|
2024 |
172,500 |
133,704 |
14,707 |
0 |
14,707 |
122.30 |
$1,799 |
$522 |
|||||
|
2023 |
168,000 |
127,338 |
14,007 |
0 |
14,007 |
121.91 |
$1,708 |
$545 |
|||||
|
2022 |
145,000 |
121,275 |
13,340 |
0 |
13,340 |
123.41 |
$1,646 |
$322 |
|||||
|
2021 |
120,500 |
115,500 |
12,705 |
0 |
12,705 |
122.23 |
$1,553 |
$67 |
|||||
| Property Account Status/Adjustments/Exemptions | ||
|---|---|---|
| Account # | Exemption Description | Amount |
|
R144821005 |
5% Capped Account |
0 |
| Property Deed Transaction History (Recorded in the County Clerk's Office) | ||||||||||
|---|---|---|---|---|---|---|---|---|---|---|
| Date | Type | Book | Page | Price | Grantor | Grantee | ||||
|
8/31/2010 |
|
Deeds |
$76,000 |
OAKLEY ALLEN L |
OAKLEY BRYAN P |
|||||
|
5/5/2010 |
|
Other |
$0 |
SECRETARY OF HOUSING & URBAN DEV |
OAKLEY ALLEN L |
|||||
|
11/16/2009 |
|
Other |
$0 |
BARNETT ROBERT |
SECRETARY OF HOUSING & URBAN DEV |
|||||
|
7/7/2009 |
|
Deeds |
$0 |
BARNETT ROBERT BARNETT BRENDA |
BARNETT ROBERT |
|||||
|
11/3/2006 |
|
Deeds |
$85,000 |
NELSON LAVONNA M |
BARNETT ROBERT BARNETT BRENDA |
|||||
| Last Mailed Notice of Value (N.O.V.) Information/History | ||||||||
|---|---|---|---|---|---|---|---|---|
| Year | Date | Market Value | Taxable Market Value | Gross Assessed | Exemption | Net Assessed | ||
|
2026 |
02/23/2026 |
175,000 |
147,408 |
16,214 |
0 |
16,214 |
||
|
2025 |
02/14/2025 |
177,500 |
140,389 |
15,442 |
0 |
15,442 |
||
|
2024 |
02/13/2024 |
172,500 |
133,704 |
14,707 |
0 |
14,707 |
||
|
2023 |
02/14/2023 |
168,000 |
127,338 |
14,007 |
0 |
14,007 |
||
|
2022 |
03/15/2022 |
145,000 |
121,275 |
13,340 |
0 |
13,340 |
||
| Property Building Permit History | |||||||||||
|---|---|---|---|---|---|---|---|---|---|---|---|
| Issued | Permit # | Provided by | Bldg # | Description | Est Construction Cost | Status | |||||
| No Building Permit records returned. | |||||||||||
| Click button on building number to access detailed information: | ||||||
|---|---|---|---|---|---|---|
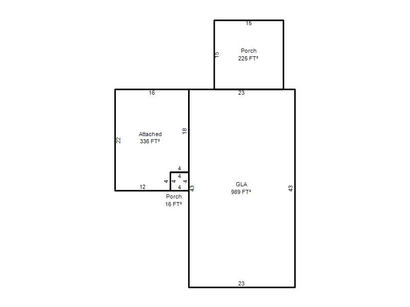
| Bldg # | Vacant/Improved Land | Bldg Description | Year Built | SqFt | # Stories | |
|
1 |
Improved |
Ranch 1 Story |
1964 |
989 |
1 Stories |
|