|
|
|
| Larry Stein Oklahoma County Assessor (405) 713-1200 - Public Access System |
|
|
|
|
|
|
| Real Property Display - Screen Produced 2/28/2026 12:43:51 AM | ||||
|---|---|---|---|---|
| Account: R144821205 | Type: Residential | Location: |
2700 N PENIEL AVE |
|
| Building Name/Occupant: |
|
OKLAHOMA CITY |
||
| Owner Name 1: | NUNEZ JOSE A & MANUELA MENDOZ DE |
Parcel PIN#: |
2882-14-482-1205 |
|
| Owner Name 2: | 1/4 section #: |
2882 |
||
| Owner Name 3: | Parent Acct: |
|
||
| Billing Address: | 2700 N PENIEL | Tax District: |
|
|
| City, State, Zip | OKLAHOMA CITY, OK 73127 | School System: |
Putnam City #1 |
|
|
Country: (If noted) |
Land Size: |
0.1907 Acres |
||
|
Land Value: 33,232 |
|
|||
|
Sect 21-T12N-R4W Qtr SE |
TANGLEWOOD HILLS 4TH
Block
011
Lot
010
|
|||
| Full Legal Description: TANGLEWOOD HILLS 4TH 011 010 |
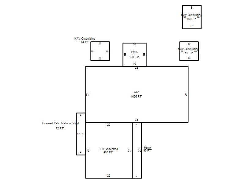
| Photo & Sketch (if available) | Comp Sales (ordered by relevancy) |
|
||||||||||||||||||
|
||||||||||||||||||||
| Value History (*The County Treasurer 405-713-1300 posts & collects actual tax amounts. Contact information HERE) | |||||||||||||
|---|---|---|---|---|---|---|---|---|---|---|---|---|---|
| Year | Market Value | Taxable Mkt Value | Gross Assessed | Exemption | Net Assessed | Millage | Est. Tax | Tax Savings | |||||
|
2025 |
181,000 |
132,667 |
14,592 |
0 |
14,592 |
123.17 |
$1,797 |
$655 |
|||||
|
2024 |
174,000 |
126,350 |
13,897 |
0 |
13,897 |
122.30 |
$1,700 |
$641 |
|||||
|
2023 |
168,500 |
120,334 |
13,236 |
0 |
13,236 |
121.91 |
$1,614 |
$646 |
|||||
|
2022 |
147,000 |
114,604 |
12,605 |
0 |
12,605 |
123.41 |
$1,556 |
$440 |
|||||
|
2021 |
125,500 |
109,147 |
12,005 |
0 |
12,005 |
122.23 |
$1,468 |
$220 |
|||||
| Property Account Status/Adjustments/Exemptions | ||
|---|---|---|
| Account # | Exemption Description | Amount |
|
R144821205 |
5% Capped Account |
0 |
| Property Deed Transaction History (Recorded in the County Clerk's Office) | |||||||
|---|---|---|---|---|---|---|---|
| Date | Type | Book | Page | Price | Grantor | Grantee | |
|
9/26/2003 |
|
Deeds |
$79,500 |
LONGACRE CHESTER W & CAROL A |
NUNEZ JOSE A & MANUELA MENDOZ DE |
||
|
9/19/2000 |
|
Deeds |
$37,500 |
BRYAN WILLIAM J BRYAN MARY LOU |
LONGACRE CHESTER W & CAROL A |
||
|
8/13/1987 |
|
Historical |
$0 |
BRYAN MARY LOU |
BRYAN WILLIAM J |
||
|
9/1/1985 |
|
Historical |
$0 |
|
BRYAN MARY LOU |
||
| Last Mailed Notice of Value (N.O.V.) Information/History | ||||||||
|---|---|---|---|---|---|---|---|---|
| Year | Date | Market Value | Taxable Market Value | Gross Assessed | Exemption | Net Assessed | ||
|
2026 |
02/23/2026 |
177,500 |
139,300 |
15,322 |
0 |
15,322 |
||
|
2025 |
02/14/2025 |
181,000 |
132,667 |
14,592 |
0 |
14,592 |
||
|
2024 |
02/13/2024 |
174,000 |
126,350 |
13,897 |
0 |
13,897 |
||
|
2023 |
02/14/2023 |
168,500 |
120,334 |
13,236 |
0 |
13,236 |
||
|
2022 |
03/15/2022 |
147,000 |
114,604 |
12,605 |
0 |
12,605 |
||
| Property Building Permit History | |||||||||||
|---|---|---|---|---|---|---|---|---|---|---|---|
| Issued | Permit # | Provided by | Bldg # | Description | Est Construction Cost | Status | |||||
| No Building Permit records returned. | |||||||||||
| Click button on building number to access detailed information: | ||||||
|---|---|---|---|---|---|---|
| Bldg # | Vacant/Improved Land | Bldg Description | Year Built | SqFt | # Stories | |
|
1 |
Improved |
Ranch 1 Story |
1963 |
1,056 |
1 Stories |
|