|
|
|
| Larry Stein Oklahoma County Assessor (405) 713-1200 - Public Access System |
|
|
|
|
|
|
| Real Property Display - Screen Produced 2/27/2026 7:33:52 PM | ||||
|---|---|---|---|---|
| Account: R144852840 | Type: Residential | Location: |
2520 N REEVES AVE |
|
| Building Name/Occupant: |
|
OKLAHOMA CITY |
||
| Owner Name 1: | KEENER DAVID K & NANCY A |
Parcel PIN#: |
2882-14-485-2840 |
|
| Owner Name 2: | 1/4 section #: |
2882 |
||
| Owner Name 3: | Parent Acct: |
|
||
| Billing Address: | 305 E SNOWMASS DR | Tax District: |
|
|
| City, State, Zip | YUKON, OK 73099-5928 | School System: |
Putnam City #1 |
|
|
Country: (If noted) |
Land Size: |
0.1503 Acres |
||
|
Land Value: 26,180 |
|
|||
|
Sect 21-T12N-R4W Qtr SE |
TANGLEWOOD HILLS
Block
007
Lot
020
|
|||
| Full Legal Description: TANGLEWOOD HILLS 007 020 |
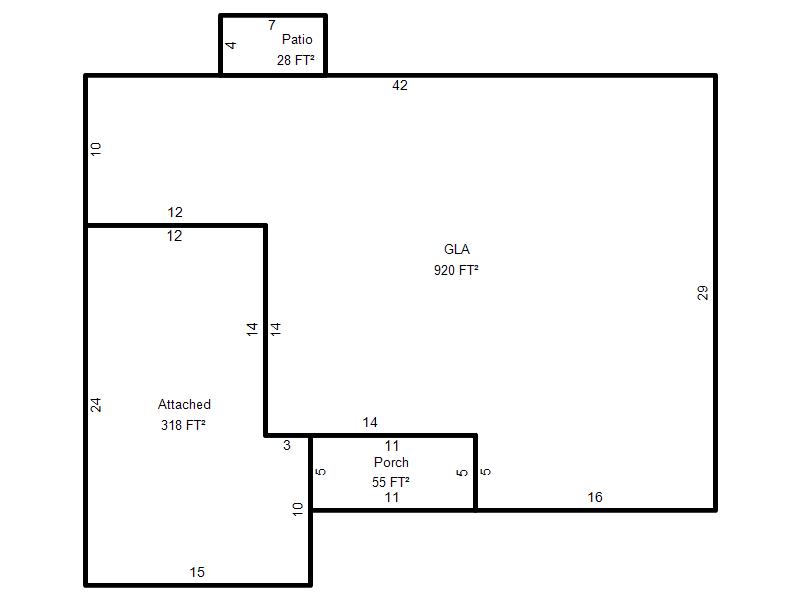
| Photo & Sketch (if available) | Comp Sales (ordered by relevancy) |
|
||||||||||||||||||
|
||||||||||||||||||||
| Value History (*The County Treasurer 405-713-1300 posts & collects actual tax amounts. Contact information HERE) | |||||||||||||
|---|---|---|---|---|---|---|---|---|---|---|---|---|---|
| Year | Market Value | Taxable Mkt Value | Gross Assessed | Exemption | Net Assessed | Millage | Est. Tax | Tax Savings | |||||
|
2025 |
130,000 |
102,102 |
11,230 |
0 |
11,230 |
123.17 |
$1,383 |
$378 |
|||||
|
2024 |
128,000 |
97,240 |
10,696 |
0 |
10,696 |
122.30 |
$1,308 |
$414 |
|||||
|
2023 |
124,500 |
92,610 |
10,187 |
0 |
10,187 |
121.91 |
$1,242 |
$428 |
|||||
|
2022 |
107,000 |
88,200 |
9,702 |
0 |
9,702 |
123.41 |
$1,197 |
$255 |
|||||
|
2021 |
89,000 |
84,000 |
9,240 |
0 |
9,240 |
122.23 |
$1,129 |
$67 |
|||||
| Property Account Status/Adjustments/Exemptions | ||
|---|---|---|
| Account # | Exemption Description | Amount |
|
R144852840 |
5% Capped Account |
0 |
| Property Deed Transaction History (Recorded in the County Clerk's Office) | |||||||
|---|---|---|---|---|---|---|---|
| Date | Type | Book | Page | Price | Grantor | Grantee | |
|
8/1/1982 |
|
Historical |
$0 |
|
KEENER DAVID K & NANCY A |
||
| Last Mailed Notice of Value (N.O.V.) Information/History | ||||||||
|---|---|---|---|---|---|---|---|---|
| Year | Date | Market Value | Taxable Market Value | Gross Assessed | Exemption | Net Assessed | ||
|
2026 |
02/23/2026 |
127,000 |
107,207 |
11,792 |
0 |
11,792 |
||
|
2025 |
02/14/2025 |
130,000 |
102,102 |
11,230 |
0 |
11,230 |
||
|
2024 |
02/13/2024 |
128,000 |
97,240 |
10,696 |
0 |
10,696 |
||
|
2023 |
02/14/2023 |
124,500 |
92,610 |
10,187 |
0 |
10,187 |
||
|
2022 |
03/15/2022 |
107,000 |
88,200 |
9,702 |
0 |
9,702 |
||
| Property Building Permit History | |||||||||||
|---|---|---|---|---|---|---|---|---|---|---|---|
| Issued | Permit # | Provided by | Bldg # | Description | Est Construction Cost | Status | |||||
| No Building Permit records returned. | |||||||||||
| Click button on building number to access detailed information: | ||||||
|---|---|---|---|---|---|---|
| Bldg # | Vacant/Improved Land | Bldg Description | Year Built | SqFt | # Stories | |
|
1 |
Improved |
Ranch 1 Story |
1961 |
920 |
1 Stories |
|