|
|
|
| Larry Stein Oklahoma County Assessor (405) 713-1200 - Public Access System |
|
|
|
|
|
|
| Real Property Display - Screen Produced 3/22/2026 2:02:45 PM | ||||
|---|---|---|---|---|
| Account: R173461550 | Type: Residential | Location: |
6905 NW 32ND ST |
|
| Building Name/Occupant: |
|
BETHANY |
||
| Owner Name 1: | BRAKE ANDREA KAY |
Parcel PIN#: |
2884-17-346-1550 |
|
| Owner Name 2: | 1/4 section #: |
2884 |
||
| Owner Name 3: | Parent Acct: |
|
||
| Billing Address: | 6905 NW 32ND ST | Tax District: |
|
|
| City, State, Zip | BETHANY, OK 73008-3907 | School System: |
Putnam City #1 |
|
|
Country: (If noted) |
Land Size: |
0.1517 Acres |
||
|
Land Value: 16,520 |
|
|||
|
Sect 21-T12N-R4W Qtr NW |
PAYNE CARSON ADD
Block
003
Lot
011
|
|||
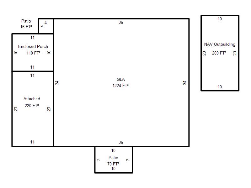
| Full Legal Description: PAYNE CARSON ADD 003 011 E59FT |
| Photo & Sketch (if available) | Comp Sales (ordered by relevancy) |
|
||||||||||||||||||
|
||||||||||||||||||||
| Value History (*The County Treasurer 405-713-1300 posts & collects actual tax amounts. Contact information HERE) | |||||||||||||
|---|---|---|---|---|---|---|---|---|---|---|---|---|---|
| Year | Market Value | Taxable Mkt Value | Gross Assessed | Exemption | Net Assessed | Millage | Est. Tax | Tax Savings | |||||
|
2025 |
134,500 |
84,379 |
9,281 |
1,000 |
8,281 |
122.14 |
$1,012 |
$796 |
|||||
|
2024 |
126,500 |
81,922 |
9,010 |
1,000 |
8,010 |
120.52 |
$966 |
$711 |
|||||
|
2023 |
121,000 |
79,536 |
8,748 |
1,000 |
7,748 |
123.06 |
$954 |
$684 |
|||||
|
2022 |
103,500 |
77,220 |
8,493 |
1,000 |
7,493 |
112.54 |
$843 |
$438 |
|||||
|
2021 |
89,000 |
74,971 |
8,246 |
1,000 |
7,246 |
112.07 |
$812 |
$285 |
|||||
| Property Account Status/Adjustments/Exemptions | ||
|---|---|---|
| Account # | Exemption Description | Amount |
|
R173461550 |
3% Cap Homestead |
0 |
|
R173461550 |
Homestead |
1,000 |
| Property Deed Transaction History (Recorded in the County Clerk's Office) | |||||||
|---|---|---|---|---|---|---|---|
| Date | Type | Book | Page | Price | Grantor | Grantee | |
|
1/9/2026 |
|
Hmstd Off & |
$0 |
THE THREE SISTERS TRUST |
BRAKE ANDREA KAY |
||
|
10/1/2006 |
|
Deeds |
$0 |
HENTHORN ROY L FAMILY TRUST BRAKE JANET K TRS |
THE THREE SISTERS TRUST |
||
|
3/5/1997 |
|
Historical |
$0 |
HENTHORN ROY L |
HENTHORN ROY L FAMILY TRUST |
||
|
11/13/1992 |
|
Historical |
$0 |
HENTHORN R L & NORMA |
HENTHORN ROY L |
||
|
11/11/1911 |
|
Historical |
$0 |
|
HENTHORN R L & NORMA |
||
| Last Mailed Notice of Value (N.O.V.) Information/History | ||||||||
|---|---|---|---|---|---|---|---|---|
| Year | Date | Market Value | Taxable Market Value | Gross Assessed | Exemption | Net Assessed | ||
|
2026 |
02/23/2026 |
137,000 |
86,910 |
9,559 |
1,000 |
8,559 |
||
|
2025 |
02/14/2025 |
134,500 |
84,379 |
9,281 |
1,000 |
8,281 |
||
|
2024 |
02/13/2024 |
126,500 |
81,922 |
9,010 |
1,000 |
8,010 |
||
|
2023 |
02/14/2023 |
121,000 |
79,536 |
8,748 |
1,000 |
7,748 |
||
|
2022 |
03/15/2022 |
103,500 |
77,220 |
8,493 |
1,000 |
7,493 |
||
| Property Building Permit History | |||||||||||
|---|---|---|---|---|---|---|---|---|---|---|---|
| Issued | Permit # | Provided by | Bldg # | Description | Est Construction Cost | Status | |||||
| No Building Permit records returned. | |||||||||||
| Click button on building number to access detailed information: | ||||||
|---|---|---|---|---|---|---|
| Bldg # | Vacant/Improved Land | Bldg Description | Year Built | SqFt | # Stories | |
|
1 |
Improved |
Ranch 1 Story |
1951 |
1,224 |
1 Stories |
|