|
|
|
| Larry Stein Oklahoma County Assessor (405) 713-1200 - Public Access System |
|
|
|
|
|
|
| Real Property Display - Screen Produced 3/22/2026 2:00:13 PM | ||||
|---|---|---|---|---|
| Account: R173462050 | Type: Residential | Location: |
3409 N MUELLER AVE |
|
| Building Name/Occupant: |
|
BETHANY |
||
| Owner Name 1: | HORSLEY CHARLES |
Parcel PIN#: |
2884-17-346-2050 |
|
| Owner Name 2: | 1/4 section #: |
2884 |
||
| Owner Name 3: | Parent Acct: |
|
||
| Billing Address: | PO BOX 987 | Tax District: |
|
|
| City, State, Zip | BETHANY, OK 73008-0987 | School System: |
Putnam City #1 |
|
|
Country: (If noted) |
Land Size: |
0.2050 Acres |
||
|
Land Value: 22,320 |
|
|||
|
Sect 21-T12N-R4W Qtr NW |
PAYNE CARSON ADD
Block
004
Lot
001
|
|||
| Full Legal Description: PAYNE CARSON ADD 004 001 |
| Photo & Sketch (if available) | Comp Sales (ordered by relevancy) |
|
||||||||||||||||||
|
||||||||||||||||||||
| Value History (*The County Treasurer 405-713-1300 posts & collects actual tax amounts. Contact information HERE) | |||||||||||||
|---|---|---|---|---|---|---|---|---|---|---|---|---|---|
| Year | Market Value | Taxable Mkt Value | Gross Assessed | Exemption | Net Assessed | Millage | Est. Tax | Tax Savings | |||||
|
2025 |
114,000 |
90,554 |
9,960 |
0 |
9,960 |
122.14 |
$1,217 |
$315 |
|||||
|
2024 |
109,500 |
86,242 |
9,485 |
0 |
9,485 |
120.52 |
$1,143 |
$308 |
|||||
|
2023 |
105,000 |
82,136 |
9,034 |
0 |
9,034 |
123.06 |
$1,112 |
$310 |
|||||
|
2022 |
88,500 |
78,225 |
8,604 |
0 |
8,604 |
112.54 |
$968 |
$127 |
|||||
|
2021 |
74,500 |
74,500 |
8,195 |
0 |
8,195 |
112.07 |
$918 |
$0 |
|||||
| Property Account Status/Adjustments/Exemptions | ||
|---|---|---|
| Account # | Exemption Description | Amount |
|
R173462050 |
5% Capped Account |
0 |
| Property Deed Transaction History (Recorded in the County Clerk's Office) | ||||||||||
|---|---|---|---|---|---|---|---|---|---|---|
| Date | Type | Book | Page | Price | Grantor | Grantee | ||||
|
8/16/2016 |
|
Deeds |
$69,000 |
JONES EUGENE REV TRUST |
HORSLEY CHARLES |
|||||
|
1/23/2002 |
|
Deeds |
$0 |
AFFIDAVIT OF SURVIVING JOINT TENANT |
JONES JONES EUGENE AKA CLARENCE E JONES |
|||||
|
1/17/2002 |
|
Deeds |
$0 |
MEMORANDUM OF TRUST |
JONES EUGENE CO TRS & DUMAS RENEA L CO TRS |
|||||
|
1/17/2002 |
|
Deeds |
$0 |
CLARENCE E JONES AKA EUGENE JONES |
JONES EUGENE CO TRS & DUMAS RENEA L CO TRS |
|||||
|
4/6/1994 |
|
Historical |
$20,000 |
SNOW PHILLIP NEAL |
JONES CLARENCE E & LINDA M |
|||||
| Last Mailed Notice of Value (N.O.V.) Information/History | ||||||||
|---|---|---|---|---|---|---|---|---|
| Year | Date | Market Value | Taxable Market Value | Gross Assessed | Exemption | Net Assessed | ||
|
2026 |
02/23/2026 |
116,500 |
95,081 |
10,458 |
0 |
10,458 |
||
|
2025 |
02/14/2025 |
114,000 |
90,554 |
9,960 |
0 |
9,960 |
||
|
2024 |
02/13/2024 |
109,500 |
86,242 |
9,485 |
0 |
9,485 |
||
|
2023 |
02/14/2023 |
105,000 |
82,136 |
9,034 |
0 |
9,034 |
||
|
2022 |
03/15/2022 |
88,500 |
78,225 |
8,604 |
0 |
8,604 |
||
| Property Building Permit History | |||||||||||
|---|---|---|---|---|---|---|---|---|---|---|---|
| Issued | Permit # | Provided by | Bldg # | Description | Est Construction Cost | Status | |||||
| No Building Permit records returned. | |||||||||||
| Click button on building number to access detailed information: | ||||||
|---|---|---|---|---|---|---|
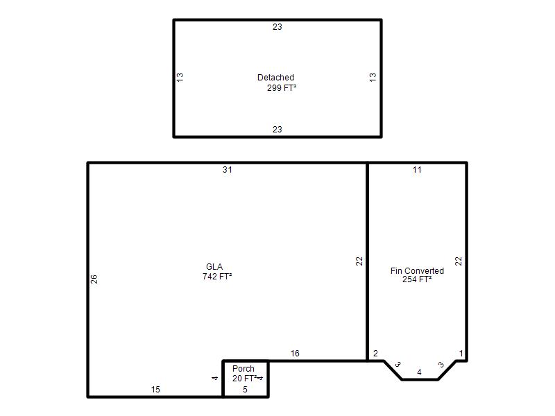
| Bldg # | Vacant/Improved Land | Bldg Description | Year Built | SqFt | # Stories | |
|
1 |
Improved |
Ranch 1 Story |
1950 |
742 |
1 Stories |
|