|
|
|
| Larry Stein Oklahoma County Assessor (405) 713-1200 - Public Access System |
|
|
|
|
|
|
| Real Property Display - Screen Produced 3/22/2026 2:00:13 PM | ||||
|---|---|---|---|---|
| Account: R173462450 | Type: Residential | Location: |
6801 NW 32ND ST |
|
| Building Name/Occupant: |
|
BETHANY |
||
| Owner Name 1: | REDMON LISA ANN |
Parcel PIN#: |
2884-17-346-2450 |
|
| Owner Name 2: | 1/4 section #: |
2884 |
||
| Owner Name 3: | Parent Acct: |
|
||
| Billing Address: | 6801 NW 32ND ST | Tax District: |
|
|
| City, State, Zip | BETHANY , OK 73008-3905 | School System: |
Putnam City #1 |
|
|
Country: (If noted) |
Land Size: |
0.1983 Acres |
||
|
Land Value: 21,600 |
|
|||
|
Sect 21-T12N-R4W Qtr NW |
PAYNE CARSON ADD
Block
004
Lot
009
|
|||
| Full Legal Description: PAYNE CARSON ADD 004 009 |
| Photo & Sketch (if available) | Comp Sales (ordered by relevancy) |
|
||||||||||||||||||
|
||||||||||||||||||||
| Value History (*The County Treasurer 405-713-1300 posts & collects actual tax amounts. Contact information HERE) | |||||||||||||
|---|---|---|---|---|---|---|---|---|---|---|---|---|---|
| Year | Market Value | Taxable Mkt Value | Gross Assessed | Exemption | Net Assessed | Millage | Est. Tax | Tax Savings | |||||
|
2025 |
111,500 |
87,516 |
9,626 |
0 |
9,626 |
122.14 |
$1,176 |
$322 |
|||||
|
2024 |
106,500 |
83,349 |
9,167 |
0 |
9,167 |
120.52 |
$1,105 |
$307 |
|||||
|
2023 |
102,000 |
79,380 |
8,731 |
0 |
8,731 |
123.06 |
$1,075 |
$306 |
|||||
|
2022 |
86,000 |
75,600 |
8,316 |
0 |
8,316 |
112.54 |
$936 |
$129 |
|||||
|
2021 |
72,000 |
72,000 |
7,920 |
0 |
7,920 |
112.07 |
$888 |
$0 |
|||||
| Property Account Status/Adjustments/Exemptions | ||
|---|---|---|
| Account # | Exemption Description | Amount |
|
R173462450 |
5% Capped Account |
0 |
| Property Deed Transaction History (Recorded in the County Clerk's Office) | ||||||||||
|---|---|---|---|---|---|---|---|---|---|---|
| Date | Type | Book | Page | Price | Grantor | Grantee | ||||
|
10/23/2017 |
|
Deeds |
$66,000 |
CUDE DONALD ROGER |
REDMON LISA ANN |
|||||
|
9/15/2015 |
|
Hmstd Off & |
$0 |
ALTRAMA LLC |
CUDE DONALD ROGER |
|||||
|
4/27/2005 |
|
Deeds |
$39,500 |
FEDERAL NATIONAL MTG ASSOCIATION |
ALTRAMA LLC |
|||||
|
12/28/2004 |
|
Other |
$0 |
CORNETT BARBARA D & BILLY |
FEDERAL NATIONAL MTG ASSOCIATION |
|||||
|
10/20/2000 |
|
Deeds |
$35,000 |
ROY RHONDA A |
CORNETT BARBARA D & BILLY |
|||||
| Last Mailed Notice of Value (N.O.V.) Information/History | ||||||||
|---|---|---|---|---|---|---|---|---|
| Year | Date | Market Value | Taxable Market Value | Gross Assessed | Exemption | Net Assessed | ||
|
2026 |
02/23/2026 |
113,500 |
91,891 |
10,107 |
0 |
10,107 |
||
|
2025 |
02/14/2025 |
111,500 |
87,516 |
9,626 |
0 |
9,626 |
||
|
2024 |
02/13/2024 |
106,500 |
83,349 |
9,167 |
0 |
9,167 |
||
|
2023 |
02/14/2023 |
102,000 |
79,380 |
8,731 |
0 |
8,731 |
||
|
2022 |
03/15/2022 |
86,000 |
75,600 |
8,316 |
0 |
8,316 |
||
| Property Building Permit History | |||||||||||
|---|---|---|---|---|---|---|---|---|---|---|---|
| Issued | Permit # | Provided by | Bldg # | Description | Est Construction Cost | Status | |||||
| No Building Permit records returned. | |||||||||||
| Click button on building number to access detailed information: | ||||||
|---|---|---|---|---|---|---|
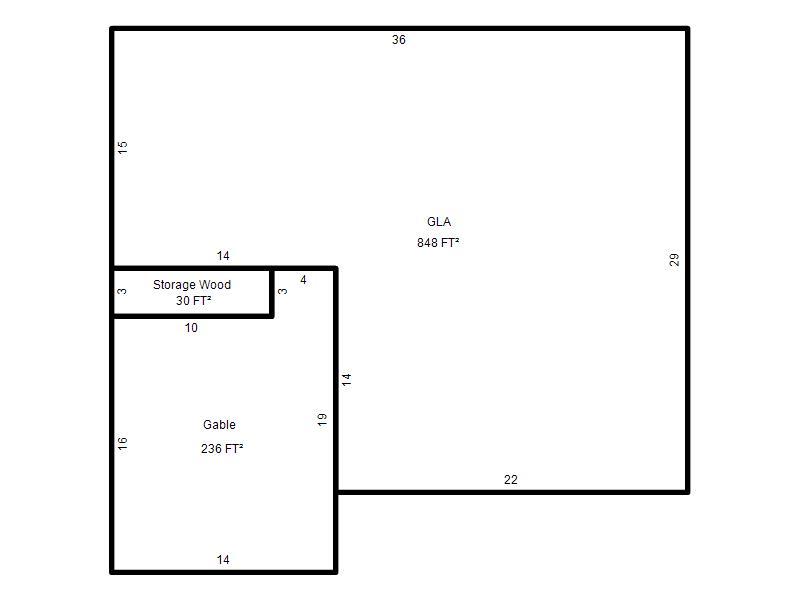
| Bldg # | Vacant/Improved Land | Bldg Description | Year Built | SqFt | # Stories | |
|
1 |
Improved |
Ranch 1 Story |
1950 |
848 |
1 Stories |
|