|
|
|
| Larry Stein Oklahoma County Assessor (405) 713-1200 - Public Access System |
|
|
|
|
|
|
| Real Property Display - Screen Produced 3/22/2026 2:02:45 PM | ||||
|---|---|---|---|---|
| Account: R173462850 | Type: Residential | Location: |
3402 N WILLOW AVE |
|
| Building Name/Occupant: |
|
BETHANY |
||
| Owner Name 1: | ANA INVESTMENT PROPERTIES LLC |
Parcel PIN#: |
2884-17-346-2850 |
|
| Owner Name 2: | 1/4 section #: |
2884 |
||
| Owner Name 3: | Parent Acct: |
|
||
| Billing Address: | 22888 E 780 RD | Tax District: |
|
|
| City, State, Zip | KINGFISHER, OK 73750 | School System: |
Putnam City #1 |
|
|
Country: (If noted) |
Land Size: |
0.2050 Acres |
||
|
Land Value: 22,320 |
|
|||
|
Sect 21-T12N-R4W Qtr NW |
PAYNE CARSON ADD
Block
004
Lot
017
|
|||
| Full Legal Description: PAYNE CARSON ADD 004 017 |
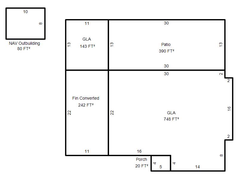
| Photo & Sketch (if available) | Comp Sales (ordered by relevancy) |
|
||||||||||||||||||
|
||||||||||||||||||||
| Value History (*The County Treasurer 405-713-1300 posts & collects actual tax amounts. Contact information HERE) | |||||||||||||
|---|---|---|---|---|---|---|---|---|---|---|---|---|---|
| Year | Market Value | Taxable Mkt Value | Gross Assessed | Exemption | Net Assessed | Millage | Est. Tax | Tax Savings | |||||
|
2025 |
121,500 |
94,291 |
10,371 |
0 |
10,371 |
122.14 |
$1,267 |
$366 |
|||||
|
2024 |
113,500 |
89,801 |
9,877 |
0 |
9,877 |
120.52 |
$1,191 |
$314 |
|||||
|
2023 |
108,500 |
85,525 |
9,406 |
0 |
9,406 |
123.06 |
$1,158 |
$311 |
|||||
|
2022 |
92,500 |
81,453 |
8,958 |
0 |
8,958 |
112.54 |
$1,008 |
$137 |
|||||
|
2021 |
78,500 |
77,575 |
8,532 |
0 |
8,532 |
112.07 |
$956 |
$11 |
|||||
| Property Account Status/Adjustments/Exemptions | ||
|---|---|---|
| Account # | Exemption Description | Amount |
|
R173462850 |
5% Capped Account |
0 |
| Property Deed Transaction History (Recorded in the County Clerk's Office) | ||||||||||
|---|---|---|---|---|---|---|---|---|---|---|
| Date | Type | Book | Page | Price | Grantor | Grantee | ||||
|
2/6/2019 |
|
Hmstd Off & |
$0 |
SCHOMMER DEBORAH A & WAYNE A |
ANA INVESTMENT PROPERTIES LLC |
|||||
|
7/25/2011 |
|
Deeds |
$0 |
SCHOMMER DEBORAH ANN |
SCHOMMER DEBORAH A & WAYNE A |
|||||
|
9/10/2010 |
|
Deeds |
$38,500 |
DEUTSCHE BANK NATIONAL TRUST CO |
SCHOMMER DEBORAH ANN |
|||||
|
7/26/2010 |
|
Hmstd Off & |
$0 |
GRAHAM JAMES R |
DEUTSCHE BANK NATIONAL TRUST CO |
|||||
|
10/20/1998 |
|
Historical |
$0 |
GRAHAM JAMES R & SHARON L |
GRAHAM JAMES R |
|||||
| Last Mailed Notice of Value (N.O.V.) Information/History | ||||||||
|---|---|---|---|---|---|---|---|---|
| Year | Date | Market Value | Taxable Market Value | Gross Assessed | Exemption | Net Assessed | ||
|
2026 |
02/23/2026 |
125,000 |
99,005 |
10,890 |
0 |
10,890 |
||
|
2025 |
02/14/2025 |
121,500 |
94,291 |
10,371 |
0 |
10,371 |
||
|
2024 |
02/13/2024 |
113,500 |
89,801 |
9,877 |
0 |
9,877 |
||
|
2023 |
02/14/2023 |
108,500 |
85,525 |
9,406 |
0 |
9,406 |
||
|
2022 |
03/15/2022 |
92,500 |
81,453 |
8,958 |
0 |
8,958 |
||
| Property Building Permit History | |||||||||||
|---|---|---|---|---|---|---|---|---|---|---|---|
| Issued | Permit # | Provided by | Bldg # | Description | Est Construction Cost | Status | |||||
| No Building Permit records returned. | |||||||||||
| Click button on building number to access detailed information: | ||||||
|---|---|---|---|---|---|---|
| Bldg # | Vacant/Improved Land | Bldg Description | Year Built | SqFt | # Stories | |
|
1 |
Improved |
Ranch 1 Story |
1950 |
891 |
1 Stories |
|