|
|
|
| Larry Stein Oklahoma County Assessor (405) 713-1200 - Public Access System |
|
|
|
|
|
|
| Real Property Display - Screen Produced 3/22/2026 1:59:26 PM | ||||
|---|---|---|---|---|
| Account: R173463000 | Type: Residential | Location: |
3408 N WILLOW AVE |
|
| Building Name/Occupant: |
|
BETHANY |
||
| Owner Name 1: | TAYLOR DEBORAH |
Parcel PIN#: |
2884-17-346-3000 |
|
| Owner Name 2: | 1/4 section #: |
2884 |
||
| Owner Name 3: | Parent Acct: |
|
||
| Billing Address: | 3408 N WILLOW AVE | Tax District: |
|
|
| City, State, Zip | BETHANY , OK 73008-3956 | School System: |
Putnam City #1 |
|
|
Country: (If noted) |
Land Size: |
0.2050 Acres |
||
|
Land Value: 22,320 |
|
|||
|
Sect 21-T12N-R4W Qtr NW |
PAYNE CARSON ADD
Block
004
Lot
020
|
|||
| Full Legal Description: PAYNE CARSON ADD 004 020 |
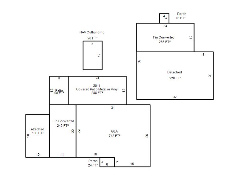
| Photo & Sketch (if available) | Comp Sales (ordered by relevancy) |
|
||||||||||||||||||
|
||||||||||||||||||||
| Value History (*The County Treasurer 405-713-1300 posts & collects actual tax amounts. Contact information HERE) | |||||||||||||
|---|---|---|---|---|---|---|---|---|---|---|---|---|---|
| Year | Market Value | Taxable Mkt Value | Gross Assessed | Exemption | Net Assessed | Millage | Est. Tax | Tax Savings | |||||
|
2025 |
137,000 |
80,441 |
8,848 |
1,000 |
7,848 |
122.14 |
$959 |
$882 |
|||||
|
2024 |
130,500 |
80,441 |
8,848 |
1,000 |
7,848 |
120.52 |
$946 |
$784 |
|||||
|
2023 |
124,000 |
80,441 |
8,848 |
1,000 |
7,848 |
123.06 |
$966 |
$713 |
|||||
|
2022 |
106,500 |
80,441 |
8,847 |
1,000 |
7,847 |
112.54 |
$883 |
$435 |
|||||
|
2021 |
90,000 |
78,099 |
8,590 |
1,000 |
7,590 |
112.07 |
$851 |
$259 |
|||||
| Property Account Status/Adjustments/Exemptions | ||
|---|---|---|
| Account # | Exemption Description | Amount |
|
R173463000 |
Freeze Senior Valuation |
0 |
|
R173463000 |
3% Cap Homestead |
0 |
|
R173463000 |
Homestead |
1,000 |
| Property Deed Transaction History (Recorded in the County Clerk's Office) | |||||||
|---|---|---|---|---|---|---|---|
| Date | Type | Book | Page | Price | Grantor | Grantee | |
|
8/20/2018 |
|
Deeds |
$0 |
TAYLOR DEBORAH & BOBBY |
TAYLOR DEBORAH |
||
|
4/30/2014 |
|
Deeds |
$40,000 |
TAYLOR DEBORAH |
TAYLOR DEBORAH & BOBBY |
||
|
10/1/1983 |
|
Historical |
$0 |
|
TAYLOR DEBORAH |
||
| Last Mailed Notice of Value (N.O.V.) Information/History | ||||||||
|---|---|---|---|---|---|---|---|---|
| Year | Date | Market Value | Taxable Market Value | Gross Assessed | Exemption | Net Assessed | ||
|
2025 |
02/14/2025 |
137,000 |
80,441 |
8,848 |
1,000 |
7,848 |
||
|
2024 |
02/13/2024 |
130,500 |
80,441 |
8,848 |
1,000 |
7,848 |
||
|
2023 |
02/14/2023 |
124,000 |
80,441 |
8,848 |
1,000 |
7,848 |
||
|
2022 |
03/15/2022 |
106,500 |
80,441 |
8,847 |
1,000 |
7,847 |
||
|
2021 |
03/19/2021 |
90,000 |
78,099 |
8,590 |
1,000 |
7,590 |
||
| Property Building Permit History | |||||||||||
|---|---|---|---|---|---|---|---|---|---|---|---|
| Issued | Permit # | Provided by | Bldg # | Description | Est Construction Cost | Status | |||||
| No Building Permit records returned. | |||||||||||
| Click button on building number to access detailed information: | ||||||
|---|---|---|---|---|---|---|
| Bldg # | Vacant/Improved Land | Bldg Description | Year Built | SqFt | # Stories | |
|
1 |
Improved |
Ranch 1 Story |
1950 |
742 |
1 Stories |
|