|
|
|
| Larry Stein Oklahoma County Assessor (405) 713-1200 - Public Access System |
|
|
|
|
|
|
| Real Property Display - Screen Produced 3/26/2026 7:48:21 AM | ||||
|---|---|---|---|---|
| Account: R175935600 | Type: Residential | Location: |
3107 N MUELLER AVE |
|
| Building Name/Occupant: |
|
BETHANY |
||
| Owner Name 1: | ROJAS GUADALUPE DE LARA |
Parcel PIN#: |
2884-17-593-5600 |
|
| Owner Name 2: | BALTAZAR ADRIANA MARTINEZ | 1/4 section #: |
2884 |
|
| Owner Name 3: | Parent Acct: |
|
||
| Billing Address: | 3107 N MUELLER AVE | Tax District: |
|
|
| City, State, Zip | BETHANY, OK 73008 | School System: |
Putnam City #1 |
|
|
Country: (If noted) |
Land Size: |
0.8004 Acres |
||
|
Land Value: 65,374 |
|
|||
|
Sect 21-T12N-R4W Qtr NW |
HOLLOWAY ACRES
Block
003
Lot
000
|
|||
| Full Legal Description: HOLLOWAY ACRES 003 000 ALL OF LOT 9 EX S15FT |
| Photo & Sketch (if available) | Comp Sales (ordered by relevancy) |
|
||||||||||||||||||
|
||||||||||||||||||||
| Value History (*The County Treasurer 405-713-1300 posts & collects actual tax amounts. Contact information HERE) | |||||||||||||
|---|---|---|---|---|---|---|---|---|---|---|---|---|---|
| Year | Market Value | Taxable Mkt Value | Gross Assessed | Exemption | Net Assessed | Millage | Est. Tax | Tax Savings | |||||
|
2026 |
187,000 |
187,000 |
20,570 |
1,000 |
19,570 |
122.14 |
$2,390 |
$122 |
|||||
|
2025 |
190,500 |
190,500 |
20,955 |
1,000 |
19,955 |
122.14 |
$2,437 |
$122 |
|||||
|
2024 |
192,000 |
192,000 |
21,120 |
1,000 |
20,120 |
120.52 |
$2,425 |
$121 |
|||||
|
2023 |
215,000 |
215,000 |
23,650 |
0 |
23,650 |
123.06 |
$2,910 |
$0 |
|||||
|
2022 |
160,500 |
100,820 |
11,090 |
1,000 |
10,090 |
112.54 |
$1,136 |
$851 |
|||||
| Property Account Status/Adjustments/Exemptions | ||
|---|---|---|
| Account # | Exemption Description | Amount |
|
R175935600 |
3% Cap Homestead |
0 |
|
R175935600 |
Homestead |
1,000 |
| Property Deed Transaction History (Recorded in the County Clerk's Office) | ||||||||||
|---|---|---|---|---|---|---|---|---|---|---|
| Date | Type | Book | Page | Price | Grantor | Grantee | ||||
|
11/28/2022 |
|
Hmstd Off & |
$0 |
MEYER LINGREEN CAROL TRS |
MEYER MEREDITH M SUCC TRS |
|||||
|
11/28/2022 |
|
Deeds |
$215,000 |
MEYER MEREDITH M SUCC TRS |
ROJAS GUADALUPE DE LARA |
|||||
|
12/7/2017 |
|
Deeds |
$0 |
LINGREEN TODD A & CAROL J |
LINGREEN CAROL J |
|||||
|
12/7/2017 |
|
Deeds |
$0 |
LINGREEN CAROL J |
MEYER LINGREEN CAROL TRS |
|||||
|
3/6/1998 |
|
Historical |
$0 |
MEYER CAROL J |
LINGREEN TODD A & CAROL J |
|||||
| Last Mailed Notice of Value (N.O.V.) Information/History | ||||||||
|---|---|---|---|---|---|---|---|---|
| Year | Date | Market Value | Taxable Market Value | Gross Assessed | Exemption | Net Assessed | ||
|
2023 |
02/14/2023 |
215,000 |
215,000 |
23,650 |
0 |
23,650 |
||
|
2022 |
03/15/2022 |
160,500 |
100,820 |
11,090 |
1,000 |
10,090 |
||
|
2021 |
03/19/2021 |
138,000 |
100,820 |
11,090 |
1,000 |
10,090 |
||
|
2020 |
03/10/2020 |
127,500 |
100,820 |
11,090 |
1,000 |
10,090 |
||
|
2019 |
04/02/2019 |
120,000 |
100,820 |
11,090 |
1,000 |
10,090 |
||
| Property Building Permit History | |||||||||||
|---|---|---|---|---|---|---|---|---|---|---|---|
| Issued | Permit # | Provided by | Bldg # | Description | Est Construction Cost | Status | |||||
| No Building Permit records returned. | |||||||||||
| Click button on building number to access detailed information: | ||||||
|---|---|---|---|---|---|---|
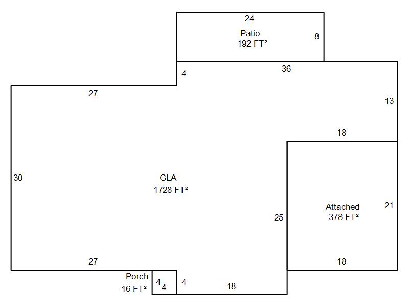
| Bldg # | Vacant/Improved Land | Bldg Description | Year Built | SqFt | # Stories | |
|
1 |
Improved |
Ranch 1 Story |
1955 |
1,728 |
1 Stories |
|