|
|
|
| Larry Stein Oklahoma County Assessor (405) 713-1200 - Public Access System |
|
|
|
|
|
|
| Real Property Display - Screen Produced 2/27/2026 6:23:12 AM | ||||
|---|---|---|---|---|
| Account: R145691065 | Type: Residential | Location: |
4525 NW 34TH ST |
|
| Building Name/Occupant: |
|
OKLAHOMA CITY |
||
| Owner Name 1: | FIELDS WENDY D |
Parcel PIN#: |
2885-14-569-1065 |
|
| Owner Name 2: | 1/4 section #: |
2885 |
||
| Owner Name 3: | Parent Acct: |
|
||
| Billing Address: | 4525 NW 34TH ST | Tax District: |
|
|
| City, State, Zip | OKLAHOMA CITY, OK 73122-1414 | School System: |
Putnam City #1 |
|
|
Country: (If noted) |
Land Size: |
0.1683 Acres |
||
|
Land Value: 24,929 |
|
|||
|
Sect 22-T12N-R4W Qtr NE |
MERIDIAN COURT
Block
001
Lot
007
|
|||
| Full Legal Description: MERIDIAN COURT 001 007 |
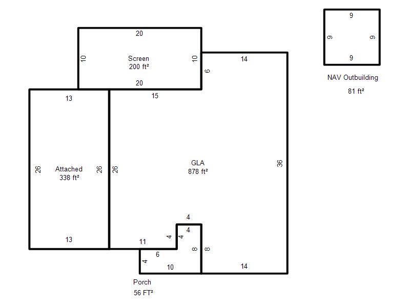
| Photo & Sketch (if available) | Comp Sales (ordered by relevancy) |
|
||||||||||||||||||
|
||||||||||||||||||||
| Value History (*The County Treasurer 405-713-1300 posts & collects actual tax amounts. Contact information HERE) | |||||||||||||
|---|---|---|---|---|---|---|---|---|---|---|---|---|---|
| Year | Market Value | Taxable Mkt Value | Gross Assessed | Exemption | Net Assessed | Millage | Est. Tax | Tax Savings | |||||
|
2025 |
144,000 |
87,628 |
9,638 |
1,000 |
8,638 |
123.17 |
$1,064 |
$887 |
|||||
|
2024 |
143,500 |
85,076 |
9,357 |
1,000 |
8,357 |
122.30 |
$1,022 |
$908 |
|||||
|
2023 |
135,500 |
82,599 |
9,085 |
1,000 |
8,085 |
121.91 |
$986 |
$831 |
|||||
|
2022 |
115,000 |
80,194 |
8,820 |
1,000 |
7,820 |
123.41 |
$965 |
$596 |
|||||
|
2021 |
97,500 |
77,859 |
8,564 |
1,000 |
7,564 |
122.23 |
$925 |
$386 |
|||||
| Property Account Status/Adjustments/Exemptions | ||
|---|---|---|
| Account # | Exemption Description | Amount |
|
R145691065 |
3% Cap Homestead |
0 |
|
R145691065 |
Homestead |
1,000 |
| Property Deed Transaction History (Recorded in the County Clerk's Office) | |||||||
|---|---|---|---|---|---|---|---|
| Date | Type | Book | Page | Price | Grantor | Grantee | |
|
11/22/2004 |
|
Deeds |
$62,000 |
FISHER SHANNON L |
FIELDS WENDY D |
||
|
11/4/1998 |
|
Historical |
$42,000 |
MCLELLAND MERNA F |
FISHER SHANNON L |
||
|
5/1/1978 |
|
Historical |
$0 |
|
MCLELLAND MERNA F |
||
| Last Mailed Notice of Value (N.O.V.) Information/History | ||||||||
|---|---|---|---|---|---|---|---|---|
| Year | Date | Market Value | Taxable Market Value | Gross Assessed | Exemption | Net Assessed | ||
|
2026 |
02/23/2026 |
140,000 |
90,256 |
9,928 |
1,000 |
8,928 |
||
|
2025 |
02/14/2025 |
144,000 |
87,628 |
9,638 |
1,000 |
8,638 |
||
|
2024 |
02/13/2024 |
143,500 |
85,076 |
9,357 |
1,000 |
8,357 |
||
|
2023 |
02/14/2023 |
135,500 |
82,599 |
9,085 |
1,000 |
8,085 |
||
|
2022 |
03/15/2022 |
115,000 |
80,194 |
8,820 |
1,000 |
7,820 |
||
| Property Building Permit History | |||||||||||
|---|---|---|---|---|---|---|---|---|---|---|---|
| Issued | Permit # | Provided by | Bldg # | Description | Est Construction Cost | Status | |||||
| No Building Permit records returned. | |||||||||||
| Click button on building number to access detailed information: | ||||||
|---|---|---|---|---|---|---|
| Bldg # | Vacant/Improved Land | Bldg Description | Year Built | SqFt | # Stories | |
|
1 |
Improved |
Ranch 1 Story |
1955 |
878 |
1 Stories |
|