|
|
|
| Larry Stein Oklahoma County Assessor (405) 713-1200 - Public Access System |
|
|
|
|
|
|
| Real Property Display - Screen Produced 2/27/2026 6:24:31 AM | ||||
|---|---|---|---|---|
| Account: R145691085 | Type: Residential | Location: |
4533 NW 34TH ST |
|
| Building Name/Occupant: |
|
OKLAHOMA CITY |
||
| Owner Name 1: | TIDWELL PROPERTIES NW 34TH LLC |
Parcel PIN#: |
2885-14-569-1085 |
|
| Owner Name 2: | 1/4 section #: |
2885 |
||
| Owner Name 3: | Parent Acct: |
|
||
| Billing Address: | 6324 SW 119TH ST | Tax District: |
|
|
| City, State, Zip | OKLAHOMA CITY, OK 73173 | School System: |
Putnam City #1 |
|
|
Country: (If noted) |
Land Size: |
0.2083 Acres |
||
|
Land Value: 28,600 |
|
|||
|
Sect 22-T12N-R4W Qtr NE |
MERIDIAN COURT
Block
001
Lot
009
|
|||
| Full Legal Description: MERIDIAN COURT 001 009 |
| Photo & Sketch (if available) | Comp Sales (ordered by relevancy) |
|
||||||||||||||||||
|
||||||||||||||||||||
| Value History (*The County Treasurer 405-713-1300 posts & collects actual tax amounts. Contact information HERE) | |||||||||||||
|---|---|---|---|---|---|---|---|---|---|---|---|---|---|
| Year | Market Value | Taxable Mkt Value | Gross Assessed | Exemption | Net Assessed | Millage | Est. Tax | Tax Savings | |||||
|
2025 |
143,000 |
107,844 |
11,861 |
0 |
11,861 |
123.17 |
$1,461 |
$476 |
|||||
|
2024 |
142,500 |
102,709 |
11,297 |
0 |
11,297 |
122.30 |
$1,382 |
$535 |
|||||
|
2023 |
131,500 |
97,819 |
10,759 |
0 |
10,759 |
121.91 |
$1,312 |
$452 |
|||||
|
2022 |
110,500 |
93,161 |
10,246 |
0 |
10,246 |
123.41 |
$1,265 |
$235 |
|||||
|
2021 |
94,000 |
88,725 |
9,759 |
0 |
9,759 |
122.23 |
$1,193 |
$71 |
|||||
| Property Account Status/Adjustments/Exemptions | ||
|---|---|---|
| Account # | Exemption Description | Amount |
|
R145691085 |
5% Capped Account |
0 |
| Property Deed Transaction History (Recorded in the County Clerk's Office) | ||||||||||
|---|---|---|---|---|---|---|---|---|---|---|
| Date | Type | Book | Page | Price | Grantor | Grantee | ||||
|
11/9/2017 |
|
Hmstd Off & |
$0 |
TIDWELL NICK |
TIDWELL PROPERTIES NW 34TH LLC |
|||||
|
2/13/2017 |
|
Deeds |
$77,500 |
ROBERTS EVAN |
TIDWELL NICK |
|||||
|
8/23/2007 |
|
Other |
$0 |
SECRETARY OF HOUSING & URBAN DEV |
ROBERTS EVAN |
|||||
|
3/5/2007 |
|
Hmstd Off & |
$0 |
RODRIGUEZ ARACELI |
SECRETARY OF HOUSING & URBAN DEV |
|||||
|
5/10/2004 |
|
Deeds |
$74,500 |
MOODY JAMES A & MICAH S |
RODRIGUEZ ARACELI |
|||||
| Last Mailed Notice of Value (N.O.V.) Information/History | ||||||||
|---|---|---|---|---|---|---|---|---|
| Year | Date | Market Value | Taxable Market Value | Gross Assessed | Exemption | Net Assessed | ||
|
2026 |
02/23/2026 |
141,000 |
113,236 |
12,455 |
0 |
12,455 |
||
|
2025 |
02/14/2025 |
143,000 |
107,844 |
11,861 |
0 |
11,861 |
||
|
2024 |
02/13/2024 |
142,500 |
102,709 |
11,297 |
0 |
11,297 |
||
|
2023 |
02/14/2023 |
131,500 |
97,819 |
10,759 |
0 |
10,759 |
||
|
2022 |
03/15/2022 |
110,500 |
93,161 |
10,246 |
0 |
10,246 |
||
| Property Building Permit History | |||||||||||
|---|---|---|---|---|---|---|---|---|---|---|---|
| Issued | Permit # | Provided by | Bldg # | Description | Est Construction Cost | Status | |||||
| No Building Permit records returned. | |||||||||||
| Click button on building number to access detailed information: | ||||||
|---|---|---|---|---|---|---|
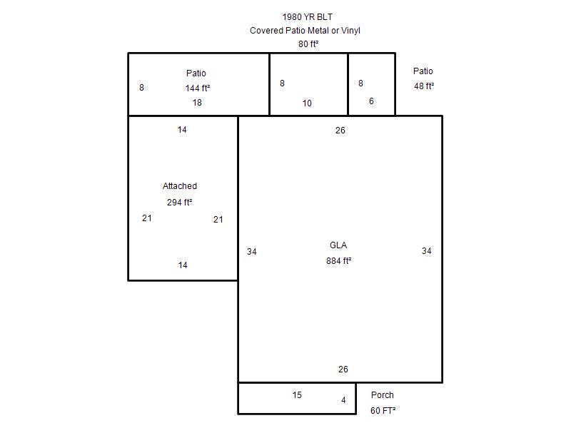
| Bldg # | Vacant/Improved Land | Bldg Description | Year Built | SqFt | # Stories | |
|
1 |
Improved |
Ranch 1 Story |
1955 |
884 |
1 Stories |
|