|
|
|
| Larry Stein Oklahoma County Assessor (405) 713-1200 - Public Access System |
|
|
|
|
|
|
| Real Property Display - Screen Produced 2/27/2026 5:00:52 AM | ||||
|---|---|---|---|---|
| Account: R145691105 | Type: Residential | Location: |
3425 N MERIDIAN CT |
|
| Building Name/Occupant: |
|
OKLAHOMA CITY |
||
| Owner Name 1: | MOON MICHAEL W |
Parcel PIN#: |
2885-14-569-1105 |
|
| Owner Name 2: | 1/4 section #: |
2885 |
||
| Owner Name 3: | Parent Acct: |
|
||
| Billing Address: | 3425 N MERIDIAN CT | Tax District: |
|
|
| City, State, Zip | OKLAHOMA CITY, OK 73122-1401 | School System: |
Putnam City #1 |
|
|
Country: (If noted) |
Land Size: |
0.2191 Acres |
||
|
Land Value: 28,600 |
|
|||
|
Sect 22-T12N-R4W Qtr NE |
MERIDIAN COURT
Block
001
Lot
011
|
|||
| Full Legal Description: MERIDIAN COURT 001 011 |
| Photo & Sketch (if available) | Comp Sales (ordered by relevancy) |
|
||||||||||||||||||
|
||||||||||||||||||||
| Value History (*The County Treasurer 405-713-1300 posts & collects actual tax amounts. Contact information HERE) | |||||||||||||
|---|---|---|---|---|---|---|---|---|---|---|---|---|---|
| Year | Market Value | Taxable Mkt Value | Gross Assessed | Exemption | Net Assessed | Millage | Est. Tax | Tax Savings | |||||
|
2025 |
123,000 |
93,133 |
10,243 |
0 |
10,243 |
123.17 |
$1,262 |
$405 |
|||||
|
2024 |
122,000 |
88,699 |
9,756 |
0 |
9,756 |
122.30 |
$1,193 |
$448 |
|||||
|
2023 |
112,000 |
84,476 |
9,291 |
0 |
9,291 |
121.91 |
$1,133 |
$369 |
|||||
|
2022 |
94,500 |
80,454 |
8,849 |
0 |
8,849 |
123.41 |
$1,092 |
$191 |
|||||
|
2021 |
80,500 |
76,623 |
8,428 |
0 |
8,428 |
122.23 |
$1,030 |
$52 |
|||||
| Property Account Status/Adjustments/Exemptions | ||
|---|---|---|
| Account # | Exemption Description | Amount |
|
R145691105 |
5% Capped Account |
0 |
| Property Deed Transaction History (Recorded in the County Clerk's Office) | |||||||
|---|---|---|---|---|---|---|---|
| Date | Type | Book | Page | Price | Grantor | Grantee | |
|
3/14/2005 |
|
Deeds |
$55,500 |
GOODMAN JACK D & LILLIE |
MOON MICHAEL W |
||
|
12/24/1991 |
|
Hmstd Off & |
$0 |
STOWE EDNA M |
GOODMAN JACK D & LILLIE |
||
|
4/1/1977 |
|
Historical |
$0 |
|
STOWE EDNA M |
||
| Last Mailed Notice of Value (N.O.V.) Information/History | ||||||||
|---|---|---|---|---|---|---|---|---|
| Year | Date | Market Value | Taxable Market Value | Gross Assessed | Exemption | Net Assessed | ||
|
2026 |
02/23/2026 |
121,500 |
97,789 |
10,756 |
0 |
10,756 |
||
|
2025 |
02/14/2025 |
123,000 |
93,133 |
10,243 |
0 |
10,243 |
||
|
2024 |
02/13/2024 |
122,000 |
88,699 |
9,756 |
0 |
9,756 |
||
|
2023 |
02/14/2023 |
112,000 |
84,476 |
9,291 |
0 |
9,291 |
||
|
2022 |
03/15/2022 |
94,500 |
80,454 |
8,849 |
0 |
8,849 |
||
| Property Building Permit History | |||||||||||
|---|---|---|---|---|---|---|---|---|---|---|---|
| Issued | Permit # | Provided by | Bldg # | Description | Est Construction Cost | Status | |||||
| No Building Permit records returned. | |||||||||||
| Click button on building number to access detailed information: | ||||||
|---|---|---|---|---|---|---|
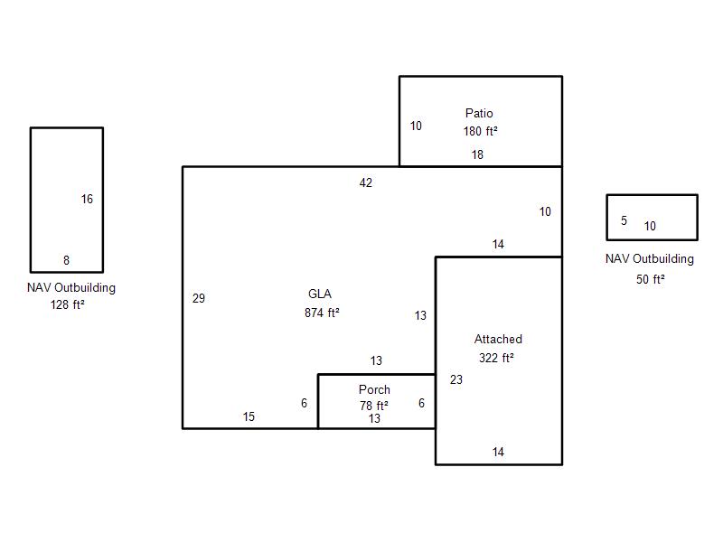
| Bldg # | Vacant/Improved Land | Bldg Description | Year Built | SqFt | # Stories | |
|
1 |
Improved |
Ranch 1 Story |
1955 |
874 |
1 Stories |
|