|
|
|
| Larry Stein Oklahoma County Assessor (405) 713-1200 - Public Access System |
|
|
|
|
|
|
| Real Property Display - Screen Produced 2/27/2026 6:22:15 AM | ||||
|---|---|---|---|---|
| Account: R145691165 | Type: Residential | Location: |
4512 NW 34TH ST |
|
| Building Name/Occupant: |
|
OKLAHOMA CITY |
||
| Owner Name 1: | WARDINGLEY ANN |
Parcel PIN#: |
2885-14-569-1165 |
|
| Owner Name 2: | 1/4 section #: |
2885 |
||
| Owner Name 3: | Parent Acct: |
|
||
| Billing Address: | 4512 NW 34TH ST | Tax District: |
|
|
| City, State, Zip | OKLAHOMA CITY, OK 73122 | School System: |
Putnam City #1 |
|
|
Country: (If noted) |
Land Size: |
0.1671 Acres |
||
|
Land Value: 24,752 |
|
|||
|
Sect 22-T12N-R4W Qtr NE |
MERIDIAN COURT
Block
002
Lot
004
|
|||
| Full Legal Description: MERIDIAN COURT 002 004 |
| Photo & Sketch (if available) | Comp Sales (ordered by relevancy) |
|
||||||||||||||||||
|
||||||||||||||||||||
| Value History (*The County Treasurer 405-713-1300 posts & collects actual tax amounts. Contact information HERE) | |||||||||||||
|---|---|---|---|---|---|---|---|---|---|---|---|---|---|
| Year | Market Value | Taxable Mkt Value | Gross Assessed | Exemption | Net Assessed | Millage | Est. Tax | Tax Savings | |||||
|
2025 |
107,000 |
45,060 |
4,956 |
0 |
4,956 |
123.17 |
$611 |
$839 |
|||||
|
2024 |
104,000 |
42,915 |
4,719 |
0 |
4,719 |
122.30 |
$577 |
$822 |
|||||
|
2023 |
97,500 |
40,872 |
4,495 |
0 |
4,495 |
121.91 |
$548 |
$759 |
|||||
|
2022 |
83,000 |
38,926 |
4,281 |
1,000 |
3,281 |
123.41 |
$405 |
$722 |
|||||
|
2021 |
71,500 |
38,926 |
4,281 |
1,000 |
3,281 |
122.23 |
$401 |
$560 |
|||||
| Property Account Status/Adjustments/Exemptions | ||
|---|---|---|
| Account # | Exemption Description | Amount |
|
R145691165 |
5% Capped Account |
0 |
| Property Deed Transaction History (Recorded in the County Clerk's Office) | ||||||||||
|---|---|---|---|---|---|---|---|---|---|---|
| Date | Type | Book | Page | Price | Grantor | Grantee | ||||
|
5/9/2023 |
|
Hmstd Off & |
$0 |
PALMER JAMES P |
WARDINGLEY ANN |
|||||
|
3/2/2022 |
|
Deeds |
$0 |
PALMER JAMES P & HALGENE |
PALMER JAMES P |
|||||
|
3/2/2022 |
|
Deeds |
$0 |
PALMER JAMES P |
PALMER JAMES P |
|||||
|
6/13/2008 |
|
Deeds |
$0 |
PALMER J P & HALGENE |
PALMER JAMES P |
|||||
|
6/13/2008 |
|
Deeds |
$0 |
PALMER JAMES P |
PALMER FREDA E & JAMES P |
|||||
| Last Mailed Notice of Value (N.O.V.) Information/History | ||||||||
|---|---|---|---|---|---|---|---|---|
| Year | Date | Market Value | Taxable Market Value | Gross Assessed | Exemption | Net Assessed | ||
|
2026 |
02/23/2026 |
107,500 |
47,313 |
5,203 |
0 |
5,203 |
||
|
2025 |
02/14/2025 |
107,000 |
45,060 |
4,956 |
0 |
4,956 |
||
|
2024 |
02/13/2024 |
104,000 |
42,915 |
4,719 |
0 |
4,719 |
||
|
2023 |
02/14/2023 |
97,500 |
38,926 |
4,281 |
1,000 |
3,281 |
||
|
2022 |
03/15/2022 |
83,000 |
38,926 |
4,281 |
1,000 |
3,281 |
||
| Property Building Permit History | |||||||||||
|---|---|---|---|---|---|---|---|---|---|---|---|
| Issued | Permit # | Provided by | Bldg # | Description | Est Construction Cost | Status | |||||
| No Building Permit records returned. | |||||||||||
| Click button on building number to access detailed information: | ||||||
|---|---|---|---|---|---|---|
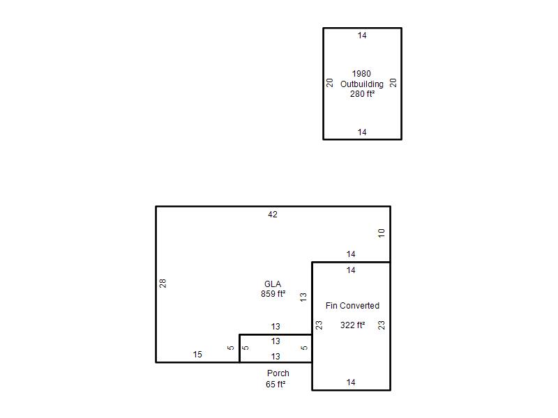
| Bldg # | Vacant/Improved Land | Bldg Description | Year Built | SqFt | # Stories | |
|
1 |
Improved |
Ranch 1 Story |
1953 |
859 |
1 Stories |
|