|
|
|
| Larry Stein Oklahoma County Assessor (405) 713-1200 - Public Access System |
|
|
|
|
|
|
| Real Property Display - Screen Produced 2/27/2026 5:00:52 AM | ||||
|---|---|---|---|---|
| Account: R145691175 | Type: Residential | Location: |
4516 NW 34TH ST |
|
| Building Name/Occupant: |
|
OKLAHOMA CITY |
||
| Owner Name 1: | GOLDEN SUNRISE HOMES LLC |
Parcel PIN#: |
2885-14-569-1175 |
|
| Owner Name 2: | 1/4 section #: |
2885 |
||
| Owner Name 3: | Parent Acct: |
|
||
| Billing Address: | 4616 N INDIANA AVE | Tax District: |
|
|
| City, State, Zip | OKLAHOMA CITY, OK 73118 | School System: |
Putnam City #1 |
|
|
Country: (If noted) |
Land Size: |
0.1671 Acres |
||
|
Land Value: 24,752 |
|
|||
|
Sect 22-T12N-R4W Qtr NE |
MERIDIAN COURT
Block
002
Lot
005
|
|||
| Full Legal Description: MERIDIAN COURT 002 005 |
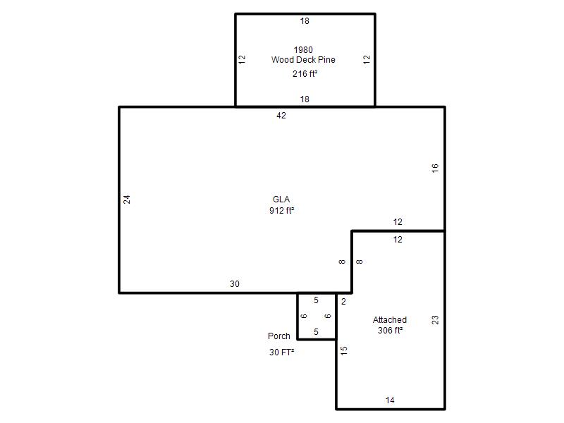
| Photo & Sketch (if available) | Comp Sales (ordered by relevancy) |
|
||||||||||||||||||
|
||||||||||||||||||||
| Value History (*The County Treasurer 405-713-1300 posts & collects actual tax amounts. Contact information HERE) | |||||||||||||
|---|---|---|---|---|---|---|---|---|---|---|---|---|---|
| Year | Market Value | Taxable Mkt Value | Gross Assessed | Exemption | Net Assessed | Millage | Est. Tax | Tax Savings | |||||
|
2025 |
120,500 |
120,393 |
13,242 |
0 |
13,242 |
123.17 |
$1,631 |
$1 |
|||||
|
2024 |
119,000 |
114,660 |
12,612 |
0 |
12,612 |
122.30 |
$1,543 |
$58 |
|||||
|
2023 |
112,000 |
109,200 |
12,012 |
0 |
12,012 |
121.91 |
$1,464 |
$38 |
|||||
|
2022 |
104,000 |
104,000 |
11,440 |
0 |
11,440 |
123.41 |
$1,412 |
$0 |
|||||
|
2021 |
81,500 |
81,500 |
8,965 |
0 |
8,965 |
122.23 |
$1,096 |
$0 |
|||||
| Property Account Status/Adjustments/Exemptions | ||
|---|---|---|
| Account # | Exemption Description | Amount |
|
R145691175 |
5% Capped Account |
0 |
| Property Deed Transaction History (Recorded in the County Clerk's Office) | ||||||||||
|---|---|---|---|---|---|---|---|---|---|---|
| Date | Type | Book | Page | Price | Grantor | Grantee | ||||
|
1/24/2022 |
|
Hmstd Off & |
$0 |
VU CONG |
GOLDEN SUNRISE HOMES LLC |
|||||
|
9/7/2021 |
|
Deeds |
$107,000 |
WALK RICKEY L & VICKI ANN |
VU CONG |
|||||
|
11/25/2020 |
|
Other |
$0 |
JONES ROBERT M |
WALK RICKEY L & VICKI ANN |
|||||
|
11/6/2019 |
|
Hmstd Off & |
$0 |
JONES SYLVIA |
WALK VICKI ANN |
|||||
|
11/6/2019 |
|
Hmstd Off & |
$0 |
WALK VICKI ANN |
JONES ROBERT M |
|||||
| Last Mailed Notice of Value (N.O.V.) Information/History | ||||||||
|---|---|---|---|---|---|---|---|---|
| Year | Date | Market Value | Taxable Market Value | Gross Assessed | Exemption | Net Assessed | ||
|
2025 |
02/14/2025 |
120,500 |
120,393 |
13,242 |
0 |
13,242 |
||
|
2024 |
02/13/2024 |
119,000 |
114,660 |
12,612 |
0 |
12,612 |
||
|
2023 |
02/14/2023 |
112,000 |
109,200 |
12,012 |
0 |
12,012 |
||
|
2022 |
03/15/2022 |
104,000 |
104,000 |
11,440 |
0 |
11,440 |
||
|
2021 |
03/19/2021 |
81,500 |
81,500 |
8,965 |
0 |
8,965 |
||
| Property Building Permit History | |||||||||||
|---|---|---|---|---|---|---|---|---|---|---|---|
| Issued | Permit # | Provided by | Bldg # | Description | Est Construction Cost | Status | |||||
| No Building Permit records returned. | |||||||||||
| Click button on building number to access detailed information: | ||||||
|---|---|---|---|---|---|---|
| Bldg # | Vacant/Improved Land | Bldg Description | Year Built | SqFt | # Stories | |
|
1 |
Improved |
Ranch 1 Story |
1955 |
912 |
1 Stories |
|