|
|
|
| Larry Stein Oklahoma County Assessor (405) 713-1200 - Public Access System |
|
|
|
|
|
|
| Real Property Display - Screen Produced 2/27/2026 6:21:03 AM | ||||
|---|---|---|---|---|
| Account: R145691295 | Type: Residential | Location: |
4500 NW 33RD ST |
|
| Building Name/Occupant: |
|
OKLAHOMA CITY |
||
| Owner Name 1: | MURPHY LAURA ELIZABETH |
Parcel PIN#: |
2885-14-569-1295 |
|
| Owner Name 2: | 1/4 section #: |
2885 |
||
| Owner Name 3: | Parent Acct: |
|
||
| Billing Address: | 4500 NW 33RD ST | Tax District: |
|
|
| City, State, Zip | OKLAHOMA CITY, OK 73122-1413 | School System: |
Putnam City #1 |
|
|
Country: (If noted) |
Land Size: |
0.1928 Acres |
||
|
Land Value: 28,560 |
|
|||
|
Sect 22-T12N-R4W Qtr NE |
MERIDIAN COURT
Block
003
Lot
001
|
|||
| Full Legal Description: MERIDIAN COURT 003 001 |
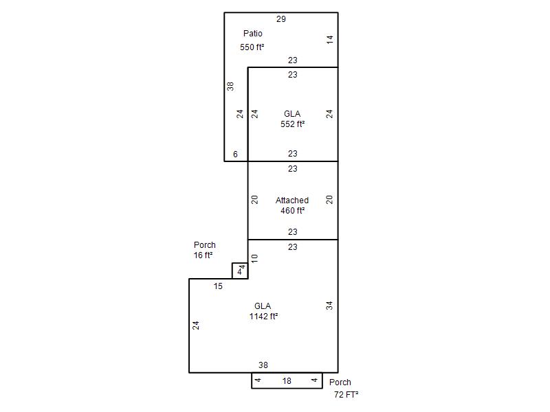
| Photo & Sketch (if available) | Comp Sales (ordered by relevancy) |
|
||||||||||||||||||
|
||||||||||||||||||||
| Value History (*The County Treasurer 405-713-1300 posts & collects actual tax amounts. Contact information HERE) | |||||||||||||
|---|---|---|---|---|---|---|---|---|---|---|---|---|---|
| Year | Market Value | Taxable Mkt Value | Gross Assessed | Exemption | Net Assessed | Millage | Est. Tax | Tax Savings | |||||
|
2025 |
169,000 |
99,427 |
10,936 |
0 |
10,936 |
123.17 |
$1,347 |
$943 |
|||||
|
2024 |
169,500 |
94,693 |
10,416 |
0 |
10,416 |
122.30 |
$1,274 |
$1,006 |
|||||
|
2023 |
157,500 |
90,184 |
9,919 |
0 |
9,919 |
121.91 |
$1,209 |
$903 |
|||||
|
2022 |
134,000 |
85,890 |
9,446 |
0 |
9,446 |
123.41 |
$1,166 |
$653 |
|||||
|
2021 |
114,500 |
81,800 |
8,997 |
0 |
8,997 |
122.23 |
$1,100 |
$440 |
|||||
| Property Account Status/Adjustments/Exemptions | ||
|---|---|---|
| Account # | Exemption Description | Amount |
|
R145691295 |
5% Capped Account |
0 |
| Property Deed Transaction History (Recorded in the County Clerk's Office) | |||||||
|---|---|---|---|---|---|---|---|
| Date | Type | Book | Page | Price | Grantor | Grantee | |
|
3/4/2024 |
|
Hmstd Off & |
$0 |
MURPHY JACQUELINE |
MURPHY LAURA ELIZABETH |
||
|
12/28/2017 |
|
Deeds |
$0 |
MURPHY JACQUELINE |
MURPHY JACQUELINE |
||
|
10/3/2017 |
|
Deeds |
$0 |
MURPHY WILLIAM S JR & JACQUELINE |
MURPHY JACQUELINE |
||
|
11/9/2000 |
|
Deeds |
$33,000 |
QUINDT LEO W & MARGARET F |
MURPHY WILLIAM S JR & JACQUELINE |
||
|
2/1/1984 |
|
Historical |
$0 |
|
QUINDT LEO W & MARGARET F |
||
| Last Mailed Notice of Value (N.O.V.) Information/History | ||||||||
|---|---|---|---|---|---|---|---|---|
| Year | Date | Market Value | Taxable Market Value | Gross Assessed | Exemption | Net Assessed | ||
|
2026 |
02/23/2026 |
162,500 |
104,398 |
11,482 |
0 |
11,482 |
||
|
2025 |
02/14/2025 |
169,000 |
99,427 |
10,936 |
0 |
10,936 |
||
|
2024 |
02/13/2024 |
169,500 |
94,693 |
10,416 |
0 |
10,416 |
||
|
2024 |
04/05/2024 |
169,500 |
94,693 |
10,416 |
0 |
10,416 |
||
|
2023 |
02/14/2023 |
157,500 |
90,184 |
9,919 |
0 |
9,919 |
||
| Property Building Permit History | |||||||||||
|---|---|---|---|---|---|---|---|---|---|---|---|
| Issued | Permit # | Provided by | Bldg # | Description | Est Construction Cost | Status | |||||
| No Building Permit records returned. | |||||||||||
| Click button on building number to access detailed information: | ||||||
|---|---|---|---|---|---|---|
| Bldg # | Vacant/Improved Land | Bldg Description | Year Built | SqFt | # Stories | |
|
1 |
Improved |
Ranch 1 Story |
1955 |
1,694 |
1 Stories |
|