|
|
|
| Larry Stein Oklahoma County Assessor (405) 713-1200 - Public Access System |
|
|
|
|
|
|
| Real Property Display - Screen Produced 2/27/2026 5:00:52 AM | ||||
|---|---|---|---|---|
| Account: R145691305 | Type: Residential | Location: |
4504 NW 33RD ST |
|
| Building Name/Occupant: |
|
OKLAHOMA CITY |
||
| Owner Name 1: | SUTTON VENORAL L |
Parcel PIN#: |
2885-14-569-1305 |
|
| Owner Name 2: | 1/4 section #: |
2885 |
||
| Owner Name 3: | Parent Acct: |
|
||
| Billing Address: | 4504 NW 33RD ST | Tax District: |
|
|
| City, State, Zip | OKLAHOMA CITY, OK 73122-1413 | School System: |
Putnam City #1 |
|
|
Country: (If noted) |
Land Size: |
0.1659 Acres |
||
|
Land Value: 24,575 |
|
|||
|
Sect 22-T12N-R4W Qtr NE |
MERIDIAN COURT
Block
003
Lot
002
|
|||
| Full Legal Description: MERIDIAN COURT 003 002 |
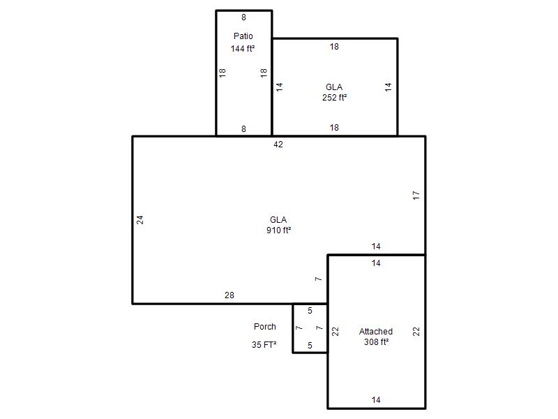
| Photo & Sketch (if available) | Comp Sales (ordered by relevancy) |
|
||||||||||||||||||
|
||||||||||||||||||||
| Value History (*The County Treasurer 405-713-1300 posts & collects actual tax amounts. Contact information HERE) | |||||||||||||
|---|---|---|---|---|---|---|---|---|---|---|---|---|---|
| Year | Market Value | Taxable Mkt Value | Gross Assessed | Exemption | Net Assessed | Millage | Est. Tax | Tax Savings | |||||
|
2025 |
131,500 |
64,150 |
7,056 |
1,000 |
6,056 |
123.17 |
$746 |
$1,036 |
|||||
|
2024 |
130,000 |
64,150 |
7,056 |
1,000 |
6,056 |
122.30 |
$741 |
$1,008 |
|||||
|
2023 |
120,000 |
64,150 |
7,056 |
1,000 |
6,056 |
121.91 |
$738 |
$871 |
|||||
|
2022 |
101,500 |
64,150 |
7,056 |
1,000 |
6,056 |
123.41 |
$747 |
$630 |
|||||
|
2021 |
87,500 |
64,150 |
7,056 |
1,000 |
6,056 |
122.23 |
$740 |
$436 |
|||||
| Property Account Status/Adjustments/Exemptions | ||
|---|---|---|
| Account # | Exemption Description | Amount |
|
R145691305 |
Freeze Senior Valuation |
0 |
|
R145691305 |
3% Cap Homestead |
0 |
|
R145691305 |
Homestead |
1,000 |
| Property Deed Transaction History (Recorded in the County Clerk's Office) | |||||||
|---|---|---|---|---|---|---|---|
| Date | Type | Book | Page | Price | Grantor | Grantee | |
|
10/8/1991 |
|
Historical |
$0 |
SUTTON CHARLIE G & VENORAL L |
SUTTON VENORAL L |
||
|
12/1/1978 |
|
Historical |
$0 |
|
SUTTON CHARLIE G & VENORAL L |
||
| Last Mailed Notice of Value (N.O.V.) Information/History | ||||||||
|---|---|---|---|---|---|---|---|---|
| Year | Date | Market Value | Taxable Market Value | Gross Assessed | Exemption | Net Assessed | ||
|
2025 |
02/14/2025 |
131,500 |
64,150 |
7,056 |
1,000 |
6,056 |
||
|
2024 |
02/13/2024 |
130,000 |
64,150 |
7,056 |
1,000 |
6,056 |
||
|
2023 |
02/14/2023 |
120,000 |
64,150 |
7,056 |
1,000 |
6,056 |
||
|
2022 |
03/15/2022 |
101,500 |
64,150 |
7,056 |
1,000 |
6,056 |
||
|
2021 |
03/19/2021 |
87,500 |
64,150 |
7,056 |
1,000 |
6,056 |
||
| Property Building Permit History | |||||||||||
|---|---|---|---|---|---|---|---|---|---|---|---|
| Issued | Permit # | Provided by | Bldg # | Description | Est Construction Cost | Status | |||||
| No Building Permit records returned. | |||||||||||
| Click button on building number to access detailed information: | ||||||
|---|---|---|---|---|---|---|
| Bldg # | Vacant/Improved Land | Bldg Description | Year Built | SqFt | # Stories | |
|
1 |
Improved |
Ranch 1 Story |
1955 |
1,162 |
1 Stories |
|