|
|
|
| Larry Stein Oklahoma County Assessor (405) 713-1200 - Public Access System |
|
|
|
|
|
|
| Real Property Display - Screen Produced 2/27/2026 6:25:02 AM | ||||
|---|---|---|---|---|
| Account: R145691415 | Type: Residential | Location: |
3409 N MERIDIAN CT |
|
| Building Name/Occupant: |
|
OKLAHOMA CITY |
||
| Owner Name 1: | ESTEVA DORIANNE M |
Parcel PIN#: |
2885-14-569-1415 |
|
| Owner Name 2: | 1/4 section #: |
2885 |
||
| Owner Name 3: | Parent Acct: |
|
||
| Billing Address: | 3409 N MERIDIAN CT | Tax District: |
|
|
| City, State, Zip | OKLAHOMA CITY, OK 73122 | School System: |
Putnam City #1 |
|
|
Country: (If noted) |
Land Size: |
0.1749 Acres |
||
|
Land Value: 25,908 |
|
|||
|
Sect 22-T12N-R4W Qtr NE |
MERIDIAN COURT
Block
003
Lot
013
|
|||
| Full Legal Description: MERIDIAN COURT 003 013 |
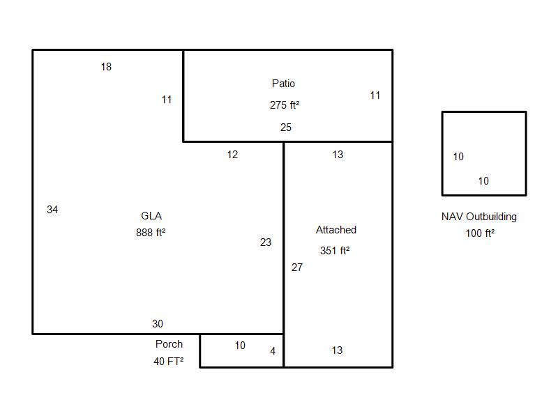
| Photo & Sketch (if available) | Comp Sales (ordered by relevancy) |
|
||||||||||||||||||
|
||||||||||||||||||||
| Value History (*The County Treasurer 405-713-1300 posts & collects actual tax amounts. Contact information HERE) | |||||||||||||
|---|---|---|---|---|---|---|---|---|---|---|---|---|---|
| Year | Market Value | Taxable Mkt Value | Gross Assessed | Exemption | Net Assessed | Millage | Est. Tax | Tax Savings | |||||
|
2025 |
168,500 |
127,627 |
14,038 |
0 |
14,038 |
123.17 |
$1,729 |
$554 |
|||||
|
2024 |
168,000 |
121,550 |
13,369 |
0 |
13,369 |
122.30 |
$1,635 |
$625 |
|||||
|
2023 |
155,000 |
115,762 |
12,733 |
0 |
12,733 |
121.91 |
$1,552 |
$526 |
|||||
|
2022 |
131,000 |
110,250 |
12,127 |
0 |
12,127 |
123.41 |
$1,497 |
$282 |
|||||
|
2021 |
112,000 |
105,000 |
11,550 |
0 |
11,550 |
122.23 |
$1,412 |
$94 |
|||||
| Property Account Status/Adjustments/Exemptions | ||
|---|---|---|
| Account # | Exemption Description | Amount |
|
R145691415 |
5% Capped Account |
0 |
| Property Deed Transaction History (Recorded in the County Clerk's Office) | ||||||||||
|---|---|---|---|---|---|---|---|---|---|---|
| Date | Type | Book | Page | Price | Grantor | Grantee | ||||
|
7/9/2019 |
|
Deeds |
$105,000 |
DAVIS PAUL E JR & REBECCA A |
ESTEVA DORIANNE M |
|||||
|
4/29/2016 |
|
Deeds |
$76,000 |
METOYER PATRICIA ROSE |
DAVIS PAUL E JR & REBECCA A |
|||||
|
6/24/2005 |
|
Deeds |
$65,000 |
ABRAHAM BETSY S |
METOYER PATRICIA ROSE |
|||||
|
5/3/2002 |
|
Deeds |
$0 |
AFFIDAVIT OF SURVIVING JOINT TENANT |
ABRAHAM ADLI |
|||||
|
5/3/2002 |
|
Hmstd Off & |
$0 |
ABRAHAM ADLI |
ABRAHAM BETSY S |
|||||
| Last Mailed Notice of Value (N.O.V.) Information/History | ||||||||
|---|---|---|---|---|---|---|---|---|
| Year | Date | Market Value | Taxable Market Value | Gross Assessed | Exemption | Net Assessed | ||
|
2026 |
02/23/2026 |
168,000 |
134,008 |
14,739 |
0 |
14,739 |
||
|
2025 |
02/14/2025 |
168,500 |
127,627 |
14,038 |
0 |
14,038 |
||
|
2024 |
02/13/2024 |
168,000 |
121,550 |
13,369 |
0 |
13,369 |
||
|
2023 |
02/14/2023 |
155,000 |
115,762 |
12,733 |
0 |
12,733 |
||
|
2022 |
03/15/2022 |
131,000 |
110,250 |
12,127 |
0 |
12,127 |
||
| Property Building Permit History | |||||||||||
|---|---|---|---|---|---|---|---|---|---|---|---|
| Issued | Permit # | Provided by | Bldg # | Description | Est Construction Cost | Status | |||||
| No Building Permit records returned. | |||||||||||
| Click button on building number to access detailed information: | ||||||
|---|---|---|---|---|---|---|
| Bldg # | Vacant/Improved Land | Bldg Description | Year Built | SqFt | # Stories | |
|
1 |
Improved |
Ranch 1 Story |
1956 |
888 |
1 Stories |
|