Larry Stein Oklahoma County Assessor (405) 713-1200 - Public Access System
Home Contact Us Guest Book Map Search New Search
Real Property Display - Screen Produced   4/29/2026 9:47:38 AM 
Account: R146171245  Type: Residential

  

Location:

4616 NW 33RD TER

Building Name/Occupant:

 

OKLAHOMA CITY

Owner Name 1:  KRUG SANDRA

Parcel PIN#:

2885-14-617-1245

Owner Name 2:    1/4 section #:

2885

Owner Name 3:    Parent Acct:

 

Billing Address:  4616 NW 33RD TER Tax District:

City, State, Zip  OKLAHOMA CITY, OK  73122-1328 School System:

Putnam City #1

Country: (If noted)

  

Land Size:

0.2259  Acres

Personal Property

Land Value: 41,328 

Treasurer:

Sect 22-T12N-R4W Qtr NE

 WINDSOR HILLS 5TH   Block 017  Lot 020   Subdivision Sales
 Full Legal Description:  WINDSOR HILLS 5TH 017 020

NOTE:  The following sales may or may not be used to determine Fair Market Value

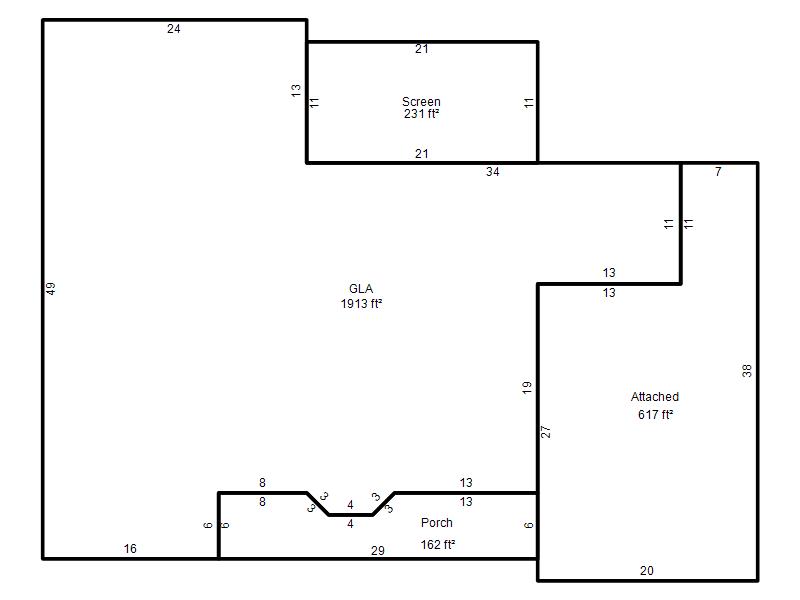
Photo & Sketch (if available) Sales  Sales Report

 2704 N HARVARD AVE OKLAHOMA CITY, OK

11/14/2025

 $240,000 

 4604 NW 32ND PL OKLAHOMA CITY, OK

10/03/2025

 $212,000 

 3113 TUDOR RD OKLAHOMA CITY, OK

08/20/2025

 $255,000 

 3200 ASTORIA BLVD OKLAHOMA CITY, OK

04/25/2025

 $245,500 

 3112 TUDOR RD OKLAHOMA CITY, OK

10/04/2024

 $245,000 

 4609 NW 31ST ST OKLAHOMA CITY, OK

05/12/2025

 $221,000 

Value History  (*The County Treasurer 405-713-1300 posts & collects actual tax amounts.  Contact information  HERE)
Year Market Value Taxable Mkt Value Gross Assessed Exemption Net Assessed Millage Est. Tax Tax Savings

2026

224,500 

104,614 

11,507 

2,000 

9,507 

123.17 

$1,171 

$1,871 

2025

231,500 

104,614 

11,507 

2,000 

9,507 

123.17 

$1,171 

$1,965 

2024

232,000 

104,614 

11,507 

2,000 

9,507 

122.30 

$1,163 

$1,958 

[1/10]
Property Account Status/Adjustments/Exemptions
Account # Exemption Description Amount

R146171245

Freeze Senior Valuation

R146171245

Senior Additional Homestead

1,000 

R146171245

3% Cap Homestead

R146171245

Homestead

1,000 

Property Deed Transaction History   (Recorded in the County Clerk's Office)
Date Type Book Page Price Grantor Grantee

9/1/1974

Historical

4184

1553

 $0 

 

KRUG SANDRA

Last Mailed Notice of Value (N.O.V.) Information/History
Year Date Market Value Taxable Market Value Gross Assessed Exemption Net Assessed

2024

02/13/2024

232,000 

104,614 

11,507 

2,000 

9,507 

2023

02/14/2023

222,000 

104,614 

11,507 

2,000 

9,507 

2022

03/15/2022

197,000 

104,614 

11,507 

2,000 

9,507 

[1/3]
Property Building Permit History
Issued Permit # Provided by Bldg # Description Est Construction Cost Status
No Building Permit records returned.
Click button below to access detailed information and additional property photos:
  Bldg # Vacant/Improved Land Bldg Description Year Built SqFt # Stories

Click

1

Improved

Ranch 1 Story

1963

1,913 

1 Stories