Larry Stein Oklahoma County Assessor (405) 713-1200 - Public Access System
Home Contact Us Guest Book Map Search New Search
Real Property Display - Screen Produced   4/29/2026 9:47:38 AM 
Account: R146171705  Type: Residential

  

Location:

3124 WINDSOR TER

Building Name/Occupant:

 

OKLAHOMA CITY

Owner Name 1:  KYLE PAUL G & GARI L TRS

Parcel PIN#:

2885-14-617-1705

Owner Name 2:  KYLE 2006 REVOCABLE TRUST 1/4 section #:

2885

Owner Name 3:    Parent Acct:

 

Billing Address:  1713 STEPPING STONE TRAIL Tax District:

City, State, Zip  EDMOND, OK  73013 School System:

Putnam City #1

Country: (If noted)

  

Land Size:

0.2652  Acres

Personal Property

Land Value: 48,510 

Treasurer:

Sect 22-T12N-R4W Qtr NE

 WINDSOR HILLS 5TH   Block 020  Lot 032   Subdivision Sales
 Full Legal Description:  WINDSOR HILLS 5TH 020 032

NOTE:  The following sales may or may not be used to determine Fair Market Value

Photo & Sketch (if available) Sales  Sales Report

 4621 NW 34TH ST OKLAHOMA CITY, OK

11/14/2025

 $260,000 

 3113 TUDOR RD OKLAHOMA CITY, OK

08/20/2025

 $255,000 

 3508 N ANN ARBOR PL OKLAHOMA CITY, OK

11/25/2025

 $230,000 

 3200 ASTORIA BLVD OKLAHOMA CITY, OK

04/25/2025

 $245,500 

 4604 NW 32ND PL OKLAHOMA CITY, OK

10/03/2025

 $212,000 

 3112 TUDOR RD OKLAHOMA CITY, OK

10/04/2024

 $245,000 

Value History  (*The County Treasurer 405-713-1300 posts & collects actual tax amounts.  Contact information  HERE)
Year Market Value Taxable Mkt Value Gross Assessed Exemption Net Assessed Millage Est. Tax Tax Savings

2026

264,000 

207,265 

22,799 

1,000 

21,799 

123.17 

$2,685 

$892 

2025

273,000 

201,229 

22,134 

1,000 

21,134 

123.17 

$2,603 

$1,096 

2024

273,500 

195,368 

21,489 

1,000 

20,489 

122.30 

$2,506 

$1,173 

[1/10]
Property Account Status/Adjustments/Exemptions
Account # Exemption Description Amount

R146171705

3% Cap Homestead

R146171705

Homestead

1,000 

Property Deed Transaction History   (Recorded in the County Clerk's Office)
Date Type Book Page Price Grantor Grantee

6/13/2006

Deeds

10145

1110

 $0 

KYLE PAUL G & GARI L

KYLE PAUL G & GARI L TRS

11/11/1911

Historical

0006

0000

 $0 

 

KYLE PAUL G & GARI L

Last Mailed Notice of Value (N.O.V.) Information/History
Year Date Market Value Taxable Market Value Gross Assessed Exemption Net Assessed

2026

02/23/2026

264,000 

207,265 

22,799 

1,000 

21,799 

2025

02/14/2025

273,000 

201,229 

22,134 

1,000 

21,134 

2024

02/13/2024

273,500 

195,368 

21,489 

1,000 

20,489 

[1/5]
Property Building Permit History
Issued Permit # Provided by Bldg # Description Est Construction Cost Status
No Building Permit records returned.
Click button below to access detailed information and additional property photos:
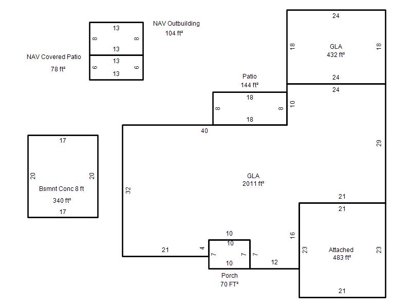
  Bldg # Vacant/Improved Land Bldg Description Year Built SqFt # Stories

Click

1

Improved

Ranch 1 Story

1964

2,443 

1 Stories