Larry Stein Oklahoma County Assessor (405) 713-1200 - Public Access System
Home Contact Us Guest Book Map Search New Search
Real Property Display - Screen Produced   4/29/2026 5:45:35 AM 
Account: R146181190  Type: Residential

  

Location:

3301 TUDOR RD

Building Name/Occupant:

 

OKLAHOMA CITY

Owner Name 1:  BLACK HARRY A & IVETTA S CO TRS

Parcel PIN#:

2885-14-618-1190

Owner Name 2:  BLACK LIVING TRUST 1/4 section #:

2885

Owner Name 3:    Parent Acct:

 

Billing Address:  3301 TUDOR RD Tax District:

City, State, Zip  OKLAHOMA CITY, OK  73122-1347 School System:

Putnam City #1

Country: (If noted)

  

Land Size:

0.2267  Acres

Personal Property

Land Value: 41,475 

Treasurer:

Sect 22-T12N-R4W Qtr NE

 WINDSOR HILLS 6TH   Block 029  Lot 004   Subdivision Sales
 Full Legal Description:  WINDSOR HILLS 6TH 029 004

NOTE:  The following sales may or may not be used to determine Fair Market Value

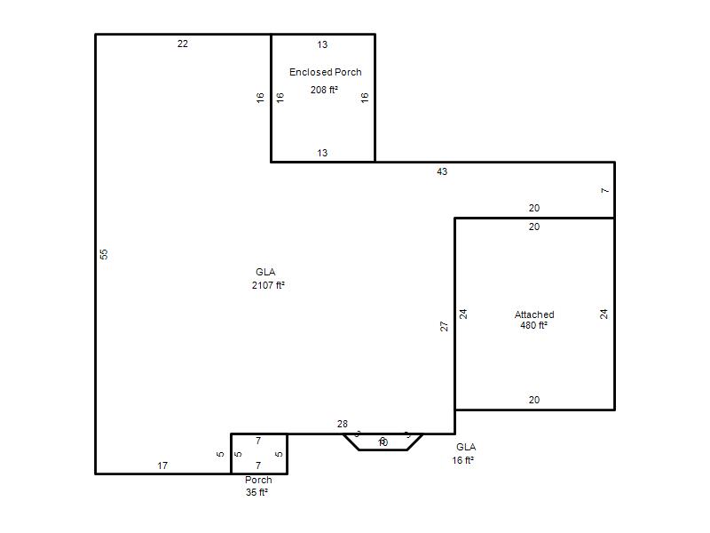
Photo & Sketch (if available) Sales  Sales Report

 2704 N STERLING AVE OKLAHOMA CITY, OK

10/25/2024

 $252,500 

 3121 TUDOR RD OKLAHOMA CITY, OK

04/12/2024

 $190,000 

 2704 N HARVARD AVE OKLAHOMA CITY, OK

11/14/2025

 $240,000 

 3113 TUDOR RD OKLAHOMA CITY, OK

08/20/2025

 $255,000 

 4613 NW 34TH ST OKLAHOMA CITY, OK

09/13/2024

 $165,000 

 2705 TUDOR RD OKLAHOMA CITY, OK

08/28/2024

 $270,000 

Value History  (*The County Treasurer 405-713-1300 posts & collects actual tax amounts.  Contact information  HERE)
Year Market Value Taxable Mkt Value Gross Assessed Exemption Net Assessed Millage Est. Tax Tax Savings

2026

248,000 

193,467 

21,280 

1,000 

20,280 

123.17 

$2,498 

$862 

2025

255,000 

187,833 

20,660 

1,000 

19,660 

123.17 

$2,422 

$1,033 

2024

254,000 

182,363 

20,059 

1,000 

19,059 

122.30 

$2,331 

$1,086 

[1/10]
Property Account Status/Adjustments/Exemptions
Account # Exemption Description Amount

R146181190

3% Cap Homestead

R146181190

Homestead

1,000 

Property Deed Transaction History   (Recorded in the County Clerk's Office)
Date Type Book Page Price Grantor Grantee

11/18/2016

Deeds

13290

397

 $0 

BLACK HARRY A & IVETTA S

BLACK HARRY A & IVETTA S CO TRS

5/22/2012

Hmstd Off &

11930

1255

 $0 

WILDMAN CATHERINE EDNA TRS WILDMAN CATHERINE E TRUST

COX SHERYL KAY TRS WILDMAN CATHERINE E TRUST

5/22/2012

Deeds

11930

1260

 $138,000 

COX SHERYL KAY TRS WILDMAN CATHERINE E TRUST

BLACK HARRY A & IVETTA S

[1/2]
Last Mailed Notice of Value (N.O.V.) Information/History
Year Date Market Value Taxable Market Value Gross Assessed Exemption Net Assessed

2026

02/23/2026

248,000 

193,467 

21,280 

1,000 

20,280 

2025

02/14/2025

255,000 

187,833 

20,660 

1,000 

19,660 

2024

02/13/2024

254,000 

182,363 

20,059 

1,000 

19,059 

[1/4]
Property Building Permit History
Issued Permit # Provided by Bldg # Description Est Construction Cost Status
No Building Permit records returned.
Click button below to access detailed information and additional property photos:
  Bldg # Vacant/Improved Land Bldg Description Year Built SqFt # Stories

Click

1

Improved

Ranch 1 Story

1966

2,123 

1 Stories